Основные правила и принципы кладки банной печи. Заливка монолитного фундамента
- Основные правила и принципы кладки банной печи. Заливка монолитного фундамента
- Как сложить печь для бани. Расчёт веса печи для выбора основания
- Печка в баню из шамотного кирпича. Выбор материала для возведения печи
- Как сложить кирпичную печь в бане. Как сложить печь для бани из кирпича
- Кладка банной печи. Материалы для кладки печи
- Бюджетная печь для бани из кирпича. Преимущества и недостатки каменки для бани из кирпича
- Проекты кирпичных печей для бани. Проекты банных печей с порядовкой
Основные правила и принципы кладки банной печи. Заливка монолитного фундамента

Осуществляется по правилам установки печи в бане, точно по схеме необходимо:
- Проводить основные земляные работы – аккуратно выкопать небольшой вертикальный котлован глубиной 1,5 м с тем расчетом, чтобы по всем сторонам периметра он был шире будущего основания сантиметров на 10. Для ускорения процесса можно и даже рекомендуется использовать спецтехнику.
- Обустроить песчано-щебневую подушку – засыпать дно речным песком, утрамбовать, поливая водой. Параллельно смешивать мелкофракционный материал в пропорции 1 к 1, после чего уложить его ровным слоем в 15-20 см.
- Замешать «молочко», то есть не густой цементный раствор, затем постепенно вливать его в котлован. Дать время для застывания, чтобы щебень с гравием прочно схватились.
- Гидроизолировать начальные слои основы с помощью рубероида или жидкого битума.
- Собрать опалубку – сделать щиты из фанеры (как вариант, досок), сколачивая гвоздями или скрепляя саморезами, после чего разместить их в котловане. Выравниваете по вертикали (высота конструкций должна здесь подниматься вплоть до чистового пола), проверяете диагонали, убеждаясь, что готовая подошва будет в форме прямоугольника (квадрата).
- Армировать – связать каркас (на 10 см меньше периметра и высоты опалубки) проволокой и размещаете его внутри.
- Залить – приготовить раствор (в пропорции 1 к 2,5 к 4 из песка, цемента и щебня соответственно), тщательно перемешивая, и послойно связать им все, что уложено в котлован ранее. Не забыть уплотнить глубинным виброустройством или обычным прутком. Дать высохнуть в течение 3 недель, а затем вытащить опалубку и засыпать образовавшиеся пустоты смесью песка и грунта.
- Гидроизолировать уже готовую бетонную плиту, предварительно выровняв ее затиркой (если необходимо). Для этого уложить рубероид в два слоя, скрепляя каждый жидкой мастикой из битума.
Как сложить печь для бани. Расчёт веса печи для выбора основания
Стандартный настил из доски-сороковки по лагам, уложенным с шагом до 1 метра, выдержит нагрузку до 700 кг. Поэтому при желании обойтись без бетонного фундамента перед тем, как установить печку в бане, нужно убедиться в том, что её вес не превышает указанного значения.
Как правило, металлические конструкции гораздо легче, но в расчёт принимается не только их вес, но и вся сопутствующая нагрузка. А именно:
- вес полного бака с горячей водой (складывается масса самого бака и вмещаемой им воды);
- вес каменки с камнями;
- вес дымовой трубы;
- вес кирпичной облицовки, если она планируется.
К внешним габаритам печи прибавляют 5-10 см в каждую сторону для создания воздушного зазора между кирпичом и металлическим корпусом, и получают периметр облицовки. Так как кладка обычно ведётся в полкирпича, рассчитывают его количество, необходимое на один ряд, разделив периметр на длину кирпича (25 см).
Затем высчитывают количество рядов кладки до нужной высоты, разделив её на 7 см (6,5 см – высота кирпича + 0,5 см – толщина шва).
Печка в баню из шамотного кирпича. Выбор материала для возведения печи
В настоящее время существует множество доступных схем возведения печи, однако начинающему мастеру рекомендуется выбрать самый простой чертеж.
Из какого кирпича стоит возводить печку? Выбрать подходящий строительный материал нелегко. При незначительных финансовых возможностях можно выбрать красный кирпич сомнительного качества.
Однако размеры подобного материала редко соответствуют принятым стандартам, по этой причине могут получаться достаточно широкие швы – до 11 мм, что абсолютно недопустимо при возведении печи.
Зачастую банная печь возводится из шамотного кирпича, который на 75 % состоит из жаростойкой глины . Такой материал устойчив к перегревам и повышенной влажности, растрескиванию и деформации. По техническим и эксплуатационным характеристикам шамотный кирпич превосходит все существующие аналоги, но и цена гораздо выше.
Из шамотного кирпича возводится топка, а из огнеупорного красного кирпича лучше обустраивать дымоход.
Для строительных работ понадобится глина, которую можно раздобыть самостоятельно либо приобрести в специализированной точке совместно с кирпичом.
Чтобы сложить печь из кирпича, необходимо подготовить следующие материалы:
- шамот;
- жаростойкий кирпич;
- глину и песок крупной зернистости;
- решетку, дверку для поддувала и топочной части, чистящие колодцы, чугунную плиту и колосник;
- шнур из асбеста;
- нагревательный бак ;
- цинковую проволоку;
- уголок;
- рубероид.
Этих материалов достаточно, чтобы возвести простую печь из кирпича собственноручно.
Как сложить кирпичную печь в бане. Как сложить печь для бани из кирпича
Невзирая на многообразие дровяных отопителей для бани из металла и чугуна, предлагаемых на рынке, традиционная конструкция печи из кирпича остается актуальной и востребованной. Это неудивительно, ведь она хорошо прогревает парную, долго сохраняет тепло и обеспечивает ее сухим паром. Также кирпичная печка помимо парилки может обогревать и 2—3 смежных помещения (моечную, предбанник). В данной статье мы расскажем, как правильно сложить печь для бани из кирпича своими руками, поделимся опытом в части подготовительных работ и устройства фундамента.
Виды печей для бань
В первую очередь нужно подобрать подходящий готовый проект печи. Опытные печные мастера умеют разрабатывать собственные схемы применительно к условиям кладки и эксплуатации. Значит, нужно воспользоваться их опытом и взять готовую схему, а для этого надо понимать, какие существуют кирпичные печи для бани.

Четко классифицировать отопители по видам весьма затруднительно, их слишком много, но условно все разработки можно разделить на группы по таким критериям:
- способ передачи тепла в помещение;
- расположение каменки;
- способ подогрева воды.
Эффективность теплоотдачи во многом зависит от конструкции и принципа действия отопителя. По данному критерию существующие виды печей можно поделить на:
- канальные: название явствует о том, что печка имеет один или множество каналов (газоходов) для дымовых газов. Последние, проходя по этим каналам, отдают тепло кирпичным стенкам. Газоходы могут проходить в теле печи как вертикально, так и горизонтально;
- колпаковые печи И. В. Кузнецова: здесь принцип теплоотдачи иной, продукты горения отдают теплоту, скапливаясь в пространстве под специально сделанным колпаком. Причем выйти оттуда они могут только после остывания, поэтому печь выходит очень теплоемкой.
Совет. Колпаковые печи весьма сложны в исполнении, домашнему мастеру без опыта построить такой вряд ли удастся. Поэтому новичку лучше начинать осваивать кладку кирпичных печей канального типа.
Засыпка из камней (каменка) может располагаться как внутри печи, так и быть открытой. На качество работы этот критерий особо не влияет. А вот способ подогрева воды может повлиять на длительность протапливания парной. Здесь существуют такие технические решения:
- регистр из стальных труб или бак из нержавейки, встроенный в тело печи, а точнее, в газоход;
- варочная плита: вода подогревается на ней в больших емкостях.
Нужно учесть, что хорошая печка из кирпича с варочной плитой хоть и прогреет парилку быстрее, но неудобства с горячей водой в кастрюлях не сравнить с проточным теплообменником внутри газохода, соединенным с накопительным баком.
Проекты печей для бань
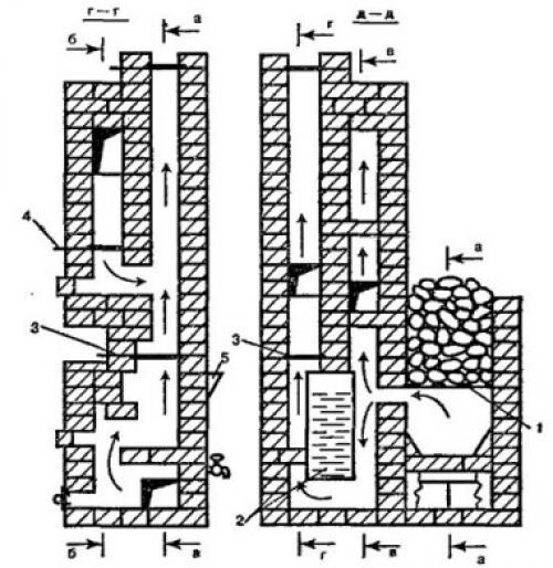
Как уже говорилось, различных проектов кирпичных печей существует великое множество. Мы предложим несколько типовых схем, вы можете воспользоваться ними либо найти что-то подходящее в технической литературе. Итак, первая — схема печи для бани из кирпича с открытой каменкой и встроенным баком для нагрева воды:



Примечание. На этой схеме и в дальнейшем используются следующие условные обозначения:

Для возведения данной печи понадобится 415 шт. кирпича и такие комплектующие, как:
- дверца топки 210 х 250 мм и поддувала – 140 х 140 мм;
- дверки для прочистки 140 х 70 мм – 2 шт.;
- бак из нержавейки 200 х 300 х 490 мм;
- плита чугунная 410 х 410 мм;
- решетка колосниковая 175 х 255 мм;
- задвижка 120 х 230 мм и 2 задвижки 130 х 130 мм.
На следующей схеме показана порядовка банной печи:



Печь-каменка с греющей плитой
Данный отопитель для бани вместо встроенного бака оборудован плитой на 2 конфорки, а каменка находится в теле печи, прямо над топкой. Хотя конструкция предусматривает возможность установки внутреннего водогрейного котла, это отображают соответствующие схемы кладки печей для бань:


На строительство отопителя потребуется 650 кирпичей, а также печная фурнитура:
- дверца топки 210 х 250 мм и поддувала – 140 х 140 мм;
- дверки для прочистки 140 х 70 мм – 4 шт.;
- плита чугунная 410 х 710 мм;
- решетка колосниковая 175 х 255 мм;
- круг стальной Ø20 мм – 3 м;
- бак для воды из нержавеющей стали 220 х 380 х 630 мм – при необходимости.
В этом варианте порядовка кладки для печей выглядит следующим образом:

Банная печь с нижним прогревом
Это небольшая кирпичная печка, в силу особенностей конструкции требующая хорошего фундамента. По сути, на его устройство уйдет больше времени, чем на выполнение самой кладки. Вот схема отопителя в разрезе:

Помимо 260 шт. кирпичей на строительство еще понадобится:
- дверца топки 210 х 250 мм и поддувала – 140 х 140 мм;
- дверки для прочистки 140 х 140 мм – 2 шт.;
- дверцы камеры для камней 210 х 250 мм – 2 шт.;
- плита чугунная 410 х 410 мм;
- решетка колосниковая 175 х 255 мм;
- задвижки 130 х 240 мм и 130 х 130 мм.


Кладка банной печи. Материалы для кладки печи
При выборе материала, главное выбрать кирпич качественный и хорошо обожженный. Кирпич должен быть с ровными гранями, без трещин и сколов. При падении он должен развалиться на несколько крупных кусков. Если получилось много мелочи — партия не подходит.

Кирпич для кладки банной печи должен быть с ровными гранями, без сколов и трещин
Для кладки надо применять керамический огнеупорный кирпич, который называют еще печным. В идеале, весь он должен быть стандартного размера — 125х250х65 мм. Но реалии таковы, что габариты отличаются не только у разных производителей, но может быть также существенная разница между партиями того же производителя. Потому приходится внимательно подбирать их по размеру. Многие печники сначала выкладывают каждый ряд без раствора, выставляют кирпичи один за одним, оставляя зазоры на швы. Так можно избежать многих ошибок.

Можно сначала выложить ряд кирпичей без раствора, подобрать подходящего размера
Есть еще специальный печной кирпич : у него обожженные только три стороны. Один ложок оставляют без обжига. И неровную необожженную сторону укладывают наружу (из топки). Но это — достаточно большая редкость. Большинство пользуется обычным красным керамическим.
Для кладки топливной зоны применяется шамотный кирпич Ш5 белого, светло розового или чуть желтоватого цвета. Он выдерживает высокие температуры. Его габариты несколько отличаются. Но особой роли это не играет — в большинстве печей топка, выкладываемая из шамота, не связана с корпусом печи, и подгонять под один уровень ряды нет необходимости. Но если, вдруг, выровнять нужно, можно подпилить, добившись требуемого соответствия.

Шамотный кирпич может быть разным. Для кладки топливной зоны банной печи используют Ш-5
Важно! Использовать шамотный кирпич для кладки всей печи не рекомендуют. И дело не только в цене (он прилично дороже красного)
Дело в том, что шамот быстро остывает. Его задача не аккумулировать тепло, а выдерживать высокие температуры.
Приготовление раствора для шамотного кирпича проводится из шамотной огнеупорной глины — белого цвета. Она продается в специализированных магазинах строительных материалов. Можно использовать готовые составы для кладки шамота. Но вот на этот раствор класть всю печь нельзя: при температуре 600-800оС этот состав спекается в монолит. В наружной кладке таких температур просто нет, так что со временем раствор просто растаскивается и высыпается, а кладка разрушается.
Для остальной конструкции печи используют раствор из глины и кварцевого песка. Соотношение растворной смеси 1:5 (1 часть глины, 5 частей песка). Песок можно использовать карьерного или речного происхождения. Речной несколько хуже — у него песчинки обкатанные, круглые, и такой раствор имеет худшие характеристики. Чтобы печь стояла долго, лучше купите карьерного песка. Его надо просеять через сито с ячейками 2-2.5 мм, чтобы исключить попадание крупных частиц в растворе.

Кладку печи выполняют на глиняно-песчаном растворе
Глина подходит добытая из карьеров, глубиной не менее 2-х метров. К ее выбору надо относиться внимательно. Проверить качество глины можно самостоятельно. Замочить небольшое количество в воде на одни сутки (200 гр). Скатать руками колобок и оставить для просушки под навесом. Через два дня проверить его на растрескивание. Для этого надо с высоты 170 см «уронить» на плиту или каменную плитку. Если колобок рассыпался на несколько крупных кусков, значит, глина подходит для кладки печи.
Выбрав подходящую глину ее нужно приготовить: размочить в воде до пастообразного состояния и протереть через сито. Сначала с более крупными ячейками, затем через мелкую ячею.
Так же потребуется проволока диаметром 2-3 мм. Она будет применяться для крепления топочной и поддувальной дверцей.
Бюджетная печь для бани из кирпича. Преимущества и недостатки каменки для бани из кирпича
Большинство хозяев предпочитают оборудовать проверенные конструкции из кирпича.
Достоинства каменки для бани :
- Энергонезависимость. При наличии сбоев подачи электроэнергии и отсутствии газификации, кирпичная каменка для бани – идеальный вариант.
- Комфорт. Печь дает мягкое тепло и насыщенный, но в тоже время легкий пар. В парилке дышится легко, что важно для тех, кто любит часто париться.
- Теплоемкость. Печь сохраняет тепло на протяжении 8 часов и способна прогреть сразу несколько комнат.
- Экономичность. Нет необходимости монтировать электрику или подводить газопровод, а затем оплачивать счета за потребленные энергоресурсы. Дрова – дешевый вариант обогрева бани.
- Пожарная безопасность. Печи из кирпича, благодаря особенностям конструкции, полностью соответствуют требованиям.
- Экологичность. Выкладывают каменки из кирпича, а растапливают ее дровами. Все материалы безопасны для здоровья человека.
- Дизайн. Благодаря оформлению, некоторые печи — настоящее произведение искусства.

Недостатки кирпичной печи:
- Уход. Необходимо постоянно чистить зольник и как минимум раз в год – дымоход.
- Возведение. Кладка печи – сложный процесс, который под силу только грамотному печнику.
- Габариты. Каменка большого размера заберет много полезной площади парилки.

Проекты кирпичных печей для бани. Проекты банных печей с порядовкой
Кирпичная печь: порядовка и проектирование
Существуют готовые проекты, однако они зачастую не удовлетворяют всем потребностям. Такая печь, порядовка которой уже спроектирована, зачастую требует доработки. Изменение порядовки должно фиксироваться в проекте с точной прорисовкой каждого ряда кирпичной кладки. Чтобы быть уверенным на все 100%, после корректировки проекта его необходимо показать специалисту и согласовать с ним все нюансы будущей печи.

Готовый проект печи
Главное правило, которое нужно учитывать при проектировании печи – это безопасность ее эксплуатации, поэтому консультация специалиста является необходимой мерой.
Внося поправки и изменения в готовый проект следует учитывать особенности строительства:
- топка в каменках должна быть большой;
- колоссники укладываются вдоль поддувальной части печи;
- при сооружении каменки, возвышающейся на топкой, необходимо обеспечить высоту топливника равную примерно девяти рядам кирпичной кладки;
- расстояние между печью и прочей обстановкой бани, выполненной из дерева, должно быть не менее 35 см;
- каждый ряд кладки проверяется с помощью строительного уровня;
- кладка начинается от установленных створок печки;
- дымоход печки на отрезке между каменкой и крышей обязательно покрывается теплоизолятором.
При строительстве топливника, следует учитывать его назначение – обеспечение хорошего горения. Для нормального функционирования необходимо обеспечить достаточный приток воздуха. Этому способствует большой размер топки. По этой же причине поддувало также должно отличаться большими габаритами.
Колоссники большого размера обеспечивают необходимый приток воздуха, однако их зачастую бывает сложно подобрать. Выходом из этой ситуации является установка нескольких колоссников.
Высоту топливника следует сделать не менее 50 см, то есть около 9 кладок. Это обеспечит равномерное прогревание кирпичей. Если же высота топливника будет меньше, температура кирпичей упадет, а между ними постоянно будет скапливаться сажа.
Начиная кладку от створок, необходимо запастись полосками или асбестовыми шнурами для обмотки той части дверцы, которая примыкает к кирпичной кладке. В этой части кладка закрепляется с помощью прочной проволоки для фиксации швов. Чтобы обеспечить необходимую жесткость конструкции, рекомендуется проложить специальные канавки или пазы, в которые ляжет проволока.
Ниже представлен наглядный пример проекта, в котором бак, нагревающий воду, соприкасается непосредственно с каменкой. Это позволяет обеспечить дополнительный нагрев от дымохода.