Выбор оптимальной стали для печи в баню. Какая марка стали лучше для банной печки
- Выбор оптимальной стали для печи в баню. Какая марка стали лучше для банной печки
- Лучшая самодельная печь для бани. Делаем фундамент
- 09г2с для печи. Печи из котловой стали 09г2с — улучшенная версия печей из «черной» стали по той же цене
- Из какой толщины металла лучше печь в баню. Поделиться 1 17-01-2013 17:37:30
- Почему прогорает банная печь. Как решить проблему с прогоревшей топкой
Выбор оптимальной стали для печи в баню. Какая марка стали лучше для банной печки
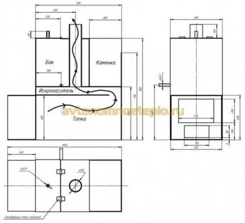
Температура нагрева дымовых газов внутри печи, достигает 450-550°С. При нагреве такой интенсивности, наблюдается деформация металла.
Непосредственное воздействие огня приводит к прогоранию стали. Конечно, можно попросту использовать металл толщиной 10 мм и более, но тогда придется подолгу протапливать парную, тратить большое количество топлива для прогрева. По причине использования толстостенных стальных листов, долговечная печь станет экономически невыгодной.
Задача, стоящая перед мастером – сделать конструкцию достаточно прочную, чтобы предотвратить деформацию, прогорание и одновременно имеющую хорошую теплопроводимость. В заводских условиях, для изготовления банных печей используется металл с высокой степенью жаропрочности.
Легированная сталь отличается от конструкционной стали следующими характеристиками:
Устойчивость к влаге – легированная сталь, применяемая при изготовлении печей для бани, нержавеющая. Отсутствует склонность к коррозии даже при интенсивном нагреве. Отечественная марка жаропрочной высоколегированной нержавеющей стали 08Х17Т. В некоторых источниках указывается на практически полную идентичность характеристик жаростойких сталей данного типа. Конструкционное железо не отличается коррозионной стойкостью, что приходится учитывать при расчете толщины стенок топки.
Время эксплуатации – срок службы печей из конструкционной стали, 3-4 года. AISI 430 приходит в негодность за 5-8 лет.
Возможность ремонтных работ – марки жаростойких сталей для изготовления дровяных банных печей, AISI 430 и 08Х17Т, имеют низкое содержание углерода, что делает возможным проведение сварочных работ. Конструкционное железо содержит соединения серы и фосфора, предающие ему хрупкость и ломкость.
Жаростойкость – марки жаропрочной стали для печи в баню, AISI 430 и 08Х17Т, выдерживают нагрев до 850°С без изменения структуры металла и его кристаллической решетки. При поднятии температуры до 600 °С, предел прочности остается в районе 145 Мпа. Образование окалины происходит только при разогреве до 8500°С. Металл в банной печи при интенсивной топке нагревается до температуры 450-550°С. У конструкционного материала, параметры жаростойкости меньше.

Хромосодержащая жаростойкая сталь стоит дорого, к тому же не все узлы испытывают одинаковую термическую и коррозионную нагрузку. По этой причине, конструкцию банной печи делают из нескольких металлов:
- Топка – для топочной камеры используют AISI 430 или аналог 08Х17Т. При самостоятельном производстве, применяют сталь 10 ГОСТ 1050-88.
Экран – конвекционные каналы не испытывают такой же нагрузки как топка, поэтому, для их производства берут 08ПС или 08Ю ГОСТ 19904-90.
Корпус печи для бани делают из листовой конструкционной стали.

Лучшая самодельная печь для бани. Делаем фундамент
Бани чаще всего делают из дерева: бруса или бревна. Так что, как и в любой другой постройке из дерева, несколько лет в бане идет усадка древесины. Бани из бревен теряют при усадке 8–12 см за 3–5 лет, а из бруса — до 6 см за 3 года. Усадка — это уже довольно ощутимая сила, а теперь представьте, что ей противостоит еще одна — вес печи. Даже небольшая кирпичная печь весит около 3 тонн, она тяжелее самой бани. Вот и получается, что все эти годы усадка давит в одно место, а кирпичная печь — в другое. Нагрузка распределяется неравномерно, и баню со временем перекашивает. Если баня и дом стоят на одном фундаменте, может «повести» весь дом.
Именно поэтому печь планируют еще на этапе проектирования бани, и если масса печи превышает 700 кг, то для нее делают отдельный фундамент — монолитную плиту на песчаной подушке. Высота печного фундамента должна быть такой же, как и высота фундамента бани.

Как сделать отдельный фундамент для печи:
- Обозначьте площадь будущего фундамента, вбив колышки в землю по его углам и периметру. Между колышками натяните веревку, чтобы было проще ориентироваться.
- На этом месте выройте котлован глубиной около 60 см. Нижние 10–15 см расширьте на 5–10 см в каждую сторону для устойчивости.
- На дно положите слой геотекстиля для гидроизоляции и насыпьте 15 см песка. Утрамбуйте его, проливая водой и досыпая песок так, чтобы толщина слоя осталась неизменной.
- Проложите еще слой геотекстиля и насыпьте несколько сантиметров песка. Этот слой нужен для того, чтобы последующий слой щебня не повредил ткань. На песок насыпьте 10 см щебня и также утрамбуйте.
- По контурам котлована постройте опалубку из досок и скрепите их гвоздями или саморезами.
- Положите на щебень армирующую сетку с ячейками размером 15 х 15 см. Арматура не должна касаться щебня, для этого используйте подставку-фиксатор «стульчик» , чтобы между щебнем и сеткой остался зазор в 5 см. Сетку свяжите из арматурных прутов диаметром 1 см и зафиксируйте места соединения прутов проволокой. Между стенками котлована и арматурной сеткой также оставьте зазор в 5 см.
- Приготовьте бетонный раствор. Смешайте 1 часть цемента маркировки от М400, 3 части песка , 5 частей щебня . Сухие компоненты добавьте в бетономешалку и постепенно разбавляйте водой — по инструкции на упаковке цемента.
- Залейте бетон в опалубку так, чтобы он оставался на 15 см ниже грунта. Выровняйте его по уровню и оставьте на 10 дней или больше, чтобы фундамент набрал прочность. После снимите опалубку, а в пустоты засыпьте гравий.
- Покройте фундамент горячим битумом , а сверху положите рубероид — затем повторите слои, чтобы защитить печь от грунтовой влаги.
09г2с для печи. Печи из котловой стали 09г2с — улучшенная версия печей из «черной» стали по той же цене
Сталь 09г2с — это та же конструкционная сталь, но с добавлением легирующих элементов. Котловая сталь 09г2с по свойствам занимает среднюю позицию между черной сталью и нержавейкой.

Артеменко Вячеслав
Заведующий магазином на ул. Коллонтай, 18
Легирующие элементы - специальные присадки, которые увеличивают термостойкость стали.
Термостойкость такого материала находится в пределах 500 градусов по Цельсию. Соответственно, ее также необходимо компенсировать толщиной, но уже меньшей. Из котловой стали выпускаются топки толщиной не более 3-6 мм, но при этом срок эксплуатации таких печей выше, чем аналогичные топки из черной стали.
Температура прогорания топки из стали 09г2с составляет 500 градусов по Цельсию. Толщина: 3-6 мм. Срок службы составляет от 7 до 10 лет.
Отметим еще один приятный момент для банщиков — несмотря на лучшие потребительские свойства материала (повышенная долговечность), печи из стали 09Г2С по цене пока такие же, как и печи из черной стали. Ключевое слово “пока” — что будет в ближайшем будущем, загадывать не будем.
Что касается скорости нагрева парной и времени остывания, котловая сталь 09г2с имеет такие же показатели, как и “черная” сталь. Кстати, если вас интересует вопрос сохранения тепла в парной, то обратите внимание на статью “Выбор камня для банной печи” .
Сталь 09г2с является не хрупким материалом, поэтому основное преимущество перед черной сталью — это все-таки долговечность.
Немного истории… Котловую сталь 09г2с производители впервые начали использовать только в 2017 году, а массовый тренд на нее подхватили только в 2020 году. Благодаря преимуществам материала, на рынке появляется все больше брендов, которые отдают предпочтение именно стали 09г2с. Один из таких брендов — компания Grill'D, которая все свои модели печей выпускает из этого материала (искл. модели PRO, выполненные из нержавейки). Еще одним популярным производителем, который выпускает модели печей из этого материала, является компания Везувий.
Печи из котловой стали 09г2с - это улучшенная версия печей из "черной" стали по той же цене.
Сталь 09г2с - это та же конструкционная сталь, но с добавлением легирующих элементов, которые увеличивают термостойкость стали.
Термостойкость такого материала находится в пределах 500 градусов по Цельсию. Соответственно, ее также необходимо компенсировать толщиной, но уже меньшей.
Из котловой стали выпускаются топки толщиной не более 3-6 мм, но при этом срок эксплуатации таких печей выше, чем аналогичные топки из черной стали.
Характеристики
- Температура прогорания: 500 градусов по Цельсию
- Толщина: 3-6 мм
- Срок службы: от 7 до 10 лет
Отметим еще один приятный момент для банщиков - несмотря на лучшие потребительские свойства материала (повышенная долговечность), печи из стали 09Г2С по цене пока такие же, как и печи из черной стали.
Ключевое слово "пока" - что будет в ближайшем будущем, загадывать не будем.
Сравнение с черной сталью
Котловая сталь 09г2с имеет такие же показатели скорости нагрева парной и времени остывания, как и "черная" сталь.
Если вас интересует вопрос сохранения тепла в парной, то обратите внимание на статью "Выбор камня для банной печи".
Преимущества перед черной сталью
Сталь 09г2с является не хрупким материалом, поэтому основное преимущество перед черной сталью - это все-таки долговечность.
История
Котловую сталь 09г2с производители впервые начали использовать только в 2017 году, а массовый тренд на нее подхватили только в 2020 году.
Благодаря преимуществам материала, на рынке появляется все больше брендов, которые отдают предпочтение именно стали 09г2с.
Один из таких брендов - компания Grill'D, которая все свои модели печей выпускает из этого материала (искл. модели PRO, выполненные из нержавейки).
Еще одним популярным производителем, который выпускает модели печей из этого материала, является компания Везувий.
Из какой толщины металла лучше печь в баню. Поделиться 1 17-01-2013 17:37:30
- Участник
- Откуда: Луганск
- Приглашений: 0
- Сообщений: 80
- Уважение: +2
- Позитив: 0
- Пол: Мужской
- Возраст: 61
- Провел на форуме:
1 день 18 часов - Последний визит:
Варю печь и задумался о теме сообщения. В народе бытует устойчивое мнение, что чем толще - тем лучше. Мол, чем толще, тем дольше не прогорит.
Я, например, слышал рекомендации 4мм нержавейка или 8 мм черная сталь.С точки зрения долговечности с этим доводом трудно не согласиться. Но давайте подойдем с функциональной стороны. Для чего вообще нужна печка? Понятное дело, что бы нагревать.
Допустим, мы хотим нагреть парилку до 100гр. Для этого нам нужно сильнее топить печку. Допустим у нас есть 2 печки одинаковой конструкции, но одна сделана из толстого железа, другая из тонкого. Какая печь сможет быстрее нагреть до 100 гр?
Однозначно можно сказать, что печь тонкая. А нагреет ли толстая печка до 100гр. Что бы это случилось, нужно что-бы определенное к-во тепла передалось сначала от топки к печке, а потом уже печка должна передать нужное количество тепла парной. Для этого нужно время. И чем металл толще, тем это время больше.
В реальности, если металл будет очень толстым, из-за теплопотерь самой парилки, температуры в 100гр. можно вообще не достигнуть.
Температура 100гр. для окружающей нас среды запредельная температура. Что бы ее достигнуть нужно приложить усилия. И похоже большая толщина металла печки может препятствовать достижению этой температуры.
Ps Кстати, производители печей используют тонкую сталь, хотя черная немного более толстая сталь дешевле. !
В связи с вышесказанным, считаю металл 8мм не пригодным для достижения в парилке высоких температур.
Своим сообщением я хочу сказать, что во всем нужна мера и толщиной металла увлекатся не стоит. Потому что это палка о двух концах.
Уважаемые парильщики! Попрошу вас, как людей знакомых с процесом не только в теории (как я), но и на практике, согласиться с моей точкой зрения или опровергнуть ее.
Почему прогорает банная печь. Как решить проблему с прогоревшей топкой
| vadim-ufa | |
Сообщений: 1 | Здравствуйте! Я, в 2007г.купил и установил в бане печь Сахара 16 ЛК.Установка печи была согласно инструции,все комплектующие завода Теплодар.Печь использовалась 1 раз в неделю ,топилась дровами,в качестве камней в каменке использовался карельскйй диабаз.За весь период эксплуатации нареканий нет, но летом 2012 через каменку стал поступать дым.Убрав камни,я, увидел ,что по обе стороны конструктивной щели разошлись швы, а дно каменки в одном месте прогорело, диаметр примерно 2-3 см. Можно ли как-то устранить эту проблему? |
| Константин Белый | |
Сообщений: 8646 | Только менять печь, в следующую не загружайте камни горкой. Сахара имеет нерациональную конструкцию топки, и в случае установки плохого качества стали (что в последнее время встречается все больше) ее рвет по швам, а прогар металла по центру как раз и указывает на низкое качество стали. А у печи Русь нагрузка идет сразу на стенку топки, так что проблем меньше, замените Сахару на Русь или лучше установите печь Костер - она не убиваемая. |
| Гость | |
| Счастливчик 5 лет, а у меня за год лопнул шов в каменке Сахары, вот теперь думаю заварить или новую печку ставить? Что посоветуете? Сахару не предлагать. | |
| Константин Белый | |
Сообщений: 8646 | А я Сахару не предлагал даже когда работал с Теплодаром. А теперь скажу что лучше печи Казачка нет.
|
| Гость | |
| Слышал, что Казачка сделана из металла толщиной 2,5 мм так что она не прогорает? У Сахары - прогорела, а у Казачки не прогорит? | |
| Константин Белый | |
Сообщений: 8646 | Печь Казачка значительно устойчивее к прогаранию, за счет того что конструкция печи Казачка не имеют напряженных зон. Сварных швов у печи Казачка значительно меньше чем у других печей. В печи Казачка правильно организовано горение с дожигом газов. |
| Гость | |
| Подскажите, кто сталкивался. Дно каменки вначале провисло в топку, а потом лопнуло. Печке 3 года, выбрасывать жалко, как можно отремонтировать? | |
| Константин Белый | |
Сообщений: 8646 | Такие печи уже лучше не эксплуатировать. Замените. |
| Гость | |
| Константин Белый | |
Сообщений: 8646 | Угарного газа можете надышаться, а это как раз и страшно! |