Мангал из газового баллона своими руками чертежи. Мангал из газового баллона своими руками — чертежи с размерами: казан, барбекю, паровоз, гриль, коптильня + фото мангала
- Мангал из газового баллона своими руками чертежи. Мангал из газового баллона своими руками — чертежи с размерами: казан, барбекю, паровоз, гриль, коптильня + фото мангала
- Мангал из газового баллона 27 литров. Как сделать мангал из газового баллона своими руками? Чертеж и размеры мангала
- Мангал из газового баллона с казаном. Как сделать мангал из газового баллона своими руками
- Гриль смокер мангал из газового баллона чертежи. Особенности и виды конструкции
- Мангал из газового баллона минусы. Покраска
- Мангал из газового баллона размеры. Как сделать мангал из газового баллона своими руками
- Мангал из газового баллона 3 в одном. Чертежи, размеры и схемы мангалов-коптилен из газового баллона
Мангал из газового баллона своими руками чертежи. Мангал из газового баллона своими руками — чертежи с размерами: казан, барбекю, паровоз, гриль, коптильня + фото мангала
В летний период наступает время для выходов на лоно природы, а какой отдых на природе без шашлычков и печёных овощей. Имеется много способов готовки пищи в естественных условиях, где пригодится мангал. Можно прикупить подготовленную конструкцию в торговой сети или заказать в мастерской.

Однако лучшая затея – смастерить мангал из газового баллона собственноручно. Тем самым можно заполучить авторское изделие, согласующееся с предъявляемыми требованиями и пожеланиями владельца.

В чём своеобразие мангала, сконструированного из баллона
Баллоны от газа содержат разные размеры. Лучший размер для формировки мангала, типа стандартного, выступает d: 300 мм и удлинением 980 мм. Но нужно понять, что такой мангал окажется стационарным, транспортировать его за собой на природу будет неудобно.

Описываемые в статье конструкции больше подходят для отдельного дома, дачной делянки или гаража. Стандартизированные баллоны из-под газа отыскать затруднительно. Их возможно прикупить на любой заправочной станции.

Эти ёмкости обладают конкретным сроком службы, а по прохождении, его применение для хранения газа запрещается. Однако отслужившая свой срок ёмкость отлично подойдёт для формирования мангала.

Плюсы
Рассмотрим подробнее достоинства этих приспособлений:
- Мангалы создаются из баллонов от пропана или кислорода, содержащих высококачественный металл.
- Этим приспособлениям свойственны внушительные стандартизированные габариты, верная геометрия, неплохая вместимость, возможность разложить немалое число шампуров.
- Можно регулировать вышину сооружения под рост владельца, чего не получится ожидать от изделий с завода. Это позволит пользователю не гнуть спину при готовке мяса, а стоять выравненным.
- Люди с опытом работы с металлом, могут здесь задействовать свою фантазию, использовав арматуру, сваривание и металл. В итоге выйдут эксклюзивные предметы, что будут отличительным украшением особняка или дачного участка.
- Структура такого мангала проста в формировании. Здесь хватит хорошо исследовать чертёж мангала собственными силами и воспользоваться минимумом навыков, чтобы смастерить конструкцию. Такой вариант станет самым недорогим. Основа конструкции выходит из ненужного состаренного баллона, потому станет бесплатной. Общая стоимость мангала будет оцениваться по дополнительным компонентам, расходуемым для него.
- Учитывая, что баллон от газа содержит утолщённые стенки, подготовленная структура сможет выдерживать большущий натиск и высокую температуру без влияния искажения изделия. Срок действия мангала увеличивается. Его дно не прогорит от длительного горения, после приготовления пищи не понадобится заливать его водичкой.
- Если смастерить мангал с откидывающейся крышей, то его возможно поставить на улице, не боясь отрицательного влияния погодных явлений. Ещё мангал с дверцей возможно задействовать под роль домашней коптильни.
Мангал из газового баллона 27 литров. Как сделать мангал из газового баллона своими руками? Чертеж и размеры мангала
Здравствуйте, гости моего блога! Думаю все у кого есть дача или свой огород возле дома мечтают о классном и красивом мангале. Который в свою очередь прослужит очень долго. А самое главное такому искусству можно позавидовать.
В одной из моих статей уже было рассказано, как сделать мангал из металла своими руками . Но по просьбе читателей, которых интересуют такие заготовки, было решено показать ещё интересные способы изготовления.
Но запомните, так как будем работать с газовым баллоном, то будьте предельно осторожны. Следуйте всем инструкциям, чтобы не произошло взрыва и других не нужных последствий, вроде травм.

Что нам нужно, чтобы собрать красивый и качественный мангал? Ну конечно же сам газовый баллон. Без болгарки и сварочного аппарата с электродами тоже не обойтись. Также мел, карандаш или чертилку по металлу. Ну и соответственно куски листового железа с профильными трубами. А чтобы навести приятный вид и красоту, это конечно же зачистной диск и термостойкая краска.
Да кстати, не забудьте определиться с местом куда его поставить. Так как он очень тяжёлый и с одного места на другое, одному человеку мангал не потаскать. Ну ладно не будем ходить вокруг да около, давайте уже приступим к самому устройству.
Самодельный мангал из газового баллона с чертежами и размерами
Когда-то у нас в доме был сжиженный газ в баллонах. Но совсем не давно протянули природный и сами газовые ёмкости стали практически не нужны. Долго думал, что с ними делать, хотел уже продавать. Но пересмотрел интернет, посоветовался с друзьями и было решено сварить мангал. Можете посмотреть, что из этого получилось.

Но прежде чем начать, нужно подготовить баллон к разрезу. А чтобы это было безопасно нужно следовать точным инструкциям.
Помните, любая газовая ёмкость, полная или пустая, очень опасна. Поэтому открытый огонь или механическое повреждение может стоить жизни.
Что нам сделать, чтобы обезопасить себя:
1. Для начала нужно открыть вентиль. Делается это против часовой стрелки, как показано на каждом баллоне.

2. В открытом состоянии оставляем его на сутки, чтобы все газы максимально улетучились.
3. Теперь нужно слить конденсат, как его ещё называют газолин. Он тоже сильно горюч, поэтому очень опасен. Практически не испаряется, примерно такой же как бензин.
Когда будете его сливать, то лучше делать это где-нибудь подальше от гаража. Так как запах очень не приятный и остаётся на долгое время. Вашим соседям такое точно не понравится.
4. Теперь избавляемся от остатков газа. Лучше всего это сделать наполнением баллона водой. Но для этого нам нужно осторожно спилить ножовкой по металлу фиксатор на вентиле. Их может быть один или два.

С другой стороны вытаскиваем стержень фиксатора.

5. Гаечным ключом откручиваем верхушку вентиля.

6. У нас появилось отверстие, через которое мы будем заливать воду.

7. Чтобы, как можно быстрее залить воду в баллон, идём в авто магазин и покупаем переходник для топлива.

Болгаркой по всей длине делаем на нём насечки

8. Надеваем на трубку тоненький шланг, а саму её втыкаем в баллон. Таким образом заполняя ёмкость водой, скопившиеся газы будут выходить через проделанные разрезы. Далее берём ведро с водой и краном и надеваем на него другой конец шланга. Заполняем баллон жидкостью.

9. Переходим к распилу. В верху где был вентиль, болгаркой аккуратно пилим по кругу. Воду из баллона выливать не нужно. Делаем это вместе с ней.
Не нужно делать сразу глубокий рез, иначе диск от болгарки закусит, он может разлететься, а это приведет к травмам.

10. Теперь, когда вентиль срезали, можно сливать воду и приступать к разметке баллона. Но в начале с помощью болгарки и лепесткового круга нужно очистить его от родной краски. Конечно работа не из лёгких, так как на это было затрачено 2,5 часа.
Мангал из газового баллона с казаном. Как сделать мангал из газового баллона своими руками
Если газовый баллон имеет хотя бы небольшой дефект, использовать его по прямому назначению запрещается. Но и выкидывать изделие из такого качественного материала жалко.
По этой причине можно сделать из старого газового баллона мангал. Из-за качественного материала такое устройство прослужит очень долго.

Плюсы и минусы мангала из газового баллона
Достоинств у мангала из газового баллона довольно много. Среди них:
- Оригинальный дизайн. Даже если делать мангал по чертежу из интернета, работа получится уникальной. Также можно добавить к конструкции разнообразные детали, ковку, чтобы мангал стал украшением участка.
- Длительная эксплуатация. Газовый баллон создается с целью выдерживать нагрузку в несколько атмосфер, поэтому его производят из качественных материалов.
- Стоимость. Учитывая тот факт, что сейчас газовые баллоны используются крайне редко, их легко можно купить с рук у дачников или автомобилистов за символическую плату.
- Простое изготовление мангала. Простые модели можно изготовить буквально за один день, даже не имея соответствующего опыта.
- Переносная конструкция. Ее с легкостью можно перемещать, если возникает такая необходимость.

Из недостатков такого мангала стоит выделить:
- Техника безопасности. Этот вопрос нужно детально изучить перед тем, как приступать к работе. В противном случае при взаимодействии с болгаркой и другими инструментами баллон может взорваться и нанести увечья человеку. Это происходит, если не выпустить газ полностью.
- Вес. Из-за толщины используемого металла мангал довольно массивен. По этой причине его достаточно сложно переносить одному. Для решения этой проблемы к устройству приделывают колесики.
- Ограниченность в выборе сырья. Из-за ограниченной глубины использовать дрова для растопки довольно сложно.

Всех указанных недостатков при желании можно избежать. Достаточно соблюдать технику безопасности и проявлять креативность в этой творческой работе.
Принцип работы коптильни
В бак кладется топливо (лучше всего использовать уголь). Он растапливается, вентиляция осуществляется через дырки в баке.
Шампуры кладут на срез. Если мангал имеет крышку, ее можно закрыть, чтобы мясо лучше прожаривалось.
В итоге мясо не горит из-за равномерного распределения тепла. Дым и гарь выходят через вентиляцию.

Проекты, схемы, варианты исполнения
Существует множество способов создания мангала из газовых баллонов. Нередко для этой ели используется не один, а несколько баков.
Из 3-х баллонов
Из трех баллонов можно сделать устройство, которое позволит и жарить, и коптить продукты. Они соединяются посредством вентиляции. В одном баллоне располагается топливо, в соседнем — еда. Третий баллон может работать автономно от двух других (в него помещают и топливо, и продукты).

Из 2-х баллонов
Из двух газовых баллонов можно сделать более сложную конструкцию.
Особенность заключается в том, что в один бак помещается топливо, а в другой — продукты. Такая конструкция позволяет коптить горячим и холодным способом.

Из одного баллона
В мангале, сделанном из одного баллона, можно только жарить еду. На дно бака помещают топливо, а выше, на решетке или шампурах, располагается еда.

Пошаговая инструкция по изготовлению простого мангала
Самый простой мангал изготавливается следующим образом:
- Баллон очищается при помощи воды от остатков газа.
- Наносится разметка.
Гриль смокер мангал из газового баллона чертежи. Особенности и виды конструкции
Гриль, выполненный из газового баллона, может быть мобильным или стационарным и совмещать в себе несколько функций одновременно, для чего изготавливается сразу с коптильней, барбекю или мангалом.
Гриль состоит из корпуса, решётки (она может быть съёмной или приваренной), поддува и крышки, а сама конструкция базируется на устойчивой подставке с ножками. В смокер-гриле холодного копчения камеры соединяются дымоходом, в обычном гриле использование трубы для дымоотвода не обязательно, температура в жаровне регулируется посредством периодического открывания крышки поддува.
Использовать гриль можно для приготовления разнообразных блюд независимо от условий. Многофункциональность, пожалуй, главный козырь, обеспечивающий быстрорастущую популярность данному приспособлению, отодвигающему традиционный мангал на второй план.
Среди преимуществ самостоятельного изготовления гриля из газового баллона:
- прочность материала, долговечность конструкции;
- выбор нужного объёма и размера (баллоны можно также скрепить);
- удобная форма баллона;
- минимум затрат;
- возможность выполнить задачу в собственном креативном исполнении;
- простота эксплуатации.
Грили отличаются конструктивным исполнением и из газового баллона можно сделать устройство в различных вариациях:
- портативная конструкция, материалом для которой послужит баллон небольшого объёма. Мобильный угольный гриль легко поместится в багажник и будет удобен для вылазок на природу;
- переносной гриль уже будет габаритнее, однако по необходимости может быть перемещён в пределах участка. Даже достаточно крупный мангал может оснащаться колёсами и перебазироваться в другое место. Конструкция разборная, при этом на большие расстояния перемещать оборудование не очень удобно;
- стационарный гриль из газового баллона обычно мультифункционален, он может использоваться, в том числе и как барбекю, коптильня и мангал. Такой агрегат уже не будет перенесён, конструкция обычно монтируется в бетонный фундамент и не подразумевает перемещений. Стационарные модели могут работать и на дровах, для чего потребуется оборудовать гриль специальным отсеком, для отвода дыма конструкция оснащается трубой.
Мангал из газового баллона минусы. Покраска
Для окрашивания подобных конструкций применяется термостойкая краска, выдерживающая температуры порядка 800 градусов. Покрытие защищает от резких изменений температур, воздействия коррозии. Состав не должен распространять при нагревании токсическихэлементов или взаимодействовать с остальными веществами.

Перед покраской с поверхности изделия удаляется старое покрытие при помощи щетки для металла или наждачки. Затем обезжиривают поверхность ацетоном либо растворителем, и обрабатывают специальным грунтом. Перед нанесением, состав хорошо размешивают, чтобы получить однородное состояние, удаляют сгустки, образовавшийся осадок.

Краску наносят распылителем либо при помощи кисточки. Для получения красивого, ровного покрытия потребуется 2-3 слоя. Прежде чем наносить следующий слой, предыдущий должен полностью просохнуть при температуре окружающего воздуха около 20 градусов.
К наиболее популярным жаростойким эмалям относятся акриловые составы, выпускаемые в баллончиках. Это эффективные, долговечные, абсолютно безопасные краски. Которые быстро сохнут. Кроме того, им характерны повышенные антикоррозионные свойства. Большое разнообразие оттенков позволяет создать уникальный дизайн мангала. Однако к наиболее распространенным относятся черный и серебристый цвета.
| Технические характеристики | |||||||
| Параметры | Объем, л | ||||||
| 5 | 8 | 9, 2 | 12 | 18 | 27 | 50 | |
| Масса сжиженного газа, кг | 2,0 | 3,5 | 4,0 | 5,0 | 7,5 | 11,4 | 21,2 |
| Масса пустого баллона | 3,3 | 4,2 | 4,7 | 6,0 | 7,6 | 12,0 | 19,5 |
| Рабочее давление, МПа | 1,6 | 1,6 | 1,6 | 1,6 | 1,6 | 1,6 | 1,6 |
| Испытательное давление, МПа | 2,5 | 2,5 | 2,5 | 2,5 | 2,5 | 2,5 | 2,5 |
| Толщина стенок, мм | 2,0 | 2,0 | 2,0 | 2,0 | 2,0 | 2,5 | 2,5 |
| Вентиль | ВБ-1, ВБ-2 | ВБ-1, ВБ-2 | ВБ-1, ВБ-2 | ВБ-1, ВБ-2 | ВБ-1, ВБ-2 | ВБ-2 | ВБ-2 |
| Упаковка | Картон | Поли-этилен | Картон | Поли-этилен | Поли-этилен | Поли-этилен | Поли-этилен |
| Габаритные размеры | |||||||
| Высота, мм | 272 | 295 | 350 | 485 | 530 | 600 | 970 |
| Диаметр, мм | 222 | 222 | 260 | 222 | 260 | 292 | 292 |
Старые ненужные газовые баллоны встречаются то тут, то там. Кто-то пройдет мимо, а пытливые мастера обязательно найдут им применение. Из этой статьи вы узнаете, как сделать мангал из газового баллона своими руками.

Почему именно баллон?
Несмотря на видимые достоинства покупной жаровни, металл в ней быстро прогорает от систематического нагрева. Тонкие металлические листы становятся слишком хрупкими, что приводит к разрастающимся дырам и распадающимся швам коробки. Толстый лист металла нужного размера стоит слишком дорого, даже в металлоприемке, а попавший под списаниепропановый либо кислородный баллон можно приобрести за копейки. Кроме того, толщина стенок, даже малогабаритных баллонов, превышает 3 мм. Этого хватит для создания полноценного мангала.

Плюсы и минусы
Кроме низкой цены, мангал из газового баллона отличается еще массой преимуществ:
- Простота изготовления. Для сооружения конструкции достаточно внимательного изучения чертежей и наличия минимальных навыков.
- Длительность эксплуатации. Толстостенная емкость способна выдерживать достаточное давление, приличные температуры. Она не деформируются и не прогорают, что значительно продлевает срок эксплуатации.
- Невосприимчивость к атмосферным катаклизмам.Жаровню можно оставлять без накрытия, ей не страшны снег, дождь.
- Функциональность. Конструкция может послужить коптильней, грилем либо барбекю.
К недостаткам подобной конструкции относятся большой вес, значительные габариты, мало места для размещения поленьев. Хотя, вместо дров, можно использовать уголь.
Мангал из газового баллона размеры. Как сделать мангал из газового баллона своими руками
Достаточно несколько часов, чтобы соорудить мангал из газового баллона своими руками. Удобная в использовании конструкция отличается сравнительно небольшими размерами и возможностью любого стилистического оформления. Такой мангал можно использовать в качестве барбекю или коптильни, что позволяет расширить его функциональность.

Почему именно баллон?
Несмотря на видимые достоинства покупной жаровни, металл в ней быстро прогорает от систематического нагрева. Тонкие металлические листы становятся слишком хрупкими, что приводит к разрастающимся дырам и распадающимся швам коробки. Толстый лист металла нужного размера стоит слишком дорого, даже в металлоприемке, а попавший под списаниепропановый либо кислородный баллон можно приобрести за копейки. Кроме того, толщина стенок, даже малогабаритных баллонов, превышает 3 мм. Этого хватит для создания полноценного мангала.

Плюсы и минусы
Кроме низкой цены, мангал из газового баллона отличается еще массой преимуществ:
- Простота изготовления. Для сооружения конструкции достаточно внимательного изучения чертежей и наличия минимальных навыков.
- Длительность эксплуатации. Толстостенная емкость способна выдерживать достаточное давление, приличные температуры. Она не деформируются и не прогорают, что значительно продлевает срок эксплуатации.
- Невосприимчивость к атмосферным катаклизмам.Жаровню можно оставлять без накрытия, ей не страшны снег, дождь.
- Функциональность. Конструкция может послужить коптильней, грилем либо барбекю.
К недостаткам подобной конструкции относятся большой вес, значительные габариты, мало места для размещения поленьев. Хотя, вместо дров, можно использовать уголь.
Типы мангалов
К наиболее простому варианту относится открытая жаровня, у которой отсутствует крышка и многие функциональные возможности. Однако при желании, можно соорудить более сложную многофункциональную жаровню.
Барбекю
У баллона частично отрезают боковую стенку, фиксируют петли. Получается своеобразная печка с дверцей истопного отсека. Внутрь помещают металлическую сетку, предназначенную для раскладывания приготовляемых продуктов.

Гриль
Фактически, это та же барбекюшница, но оснащенная крышкой. Это позволяет продукты жарить, коптить, запекать. Благодаря крышке, в каждой части баллона сохраняется одинаковая температура.

Мангал
Классический мангал отличается от барбекю прямоугольной формой. Учитывая округлую конструкцию баллона, все печки, сделанные из него, считаются мангалами с барбекю одновременно. Все зависит от инструмента, который будет размещаться над углями: шампура или решетка.

Коптильня
Отличается наличием отдельно расположенной топки и абсолютной герметичностью. У баллона отрезают половину днища, к образовавшемуся отверстию приваривают топку, которую сооружают из трубы соответствующего диаметра. Вверху приваривают кусок трубы для выведения дыма. Перед использованием, такую коптильню необходимо прокалить не менее двух раз.

Смокер
Относится к наиболее сложному сооружению, в котором совмещаются функции жаровен всех перечисленных видов. Для изготовления придется использовать 2 баллона разных размеров. Внимательно изучив чертежи различных конструкций, нужно выбрать ту, которая подойдет для конкретного случая.

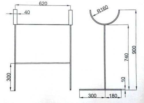
Размеры мангала из баллона
Зависят от габаритов используемого баллона. Учитывая, что шампура будут укладываться перпендикулярно конструкции, нужно позаботиться о достаточном количестве места, предназначенном для мяса. Обычно применяются 50-литровые емкости, диаметр которых равняется 96 см. Соответственно мангал из газового баллона будет обладать следующими габаритами:

- ширина – порядка 32 см;
- длина – равняется 96 см;
- высота – 30 см + высота ножек.

Этого вполне достаточно для приготовления шашлыков на 6 человек. Учитывая, что длина рабочей част шампура составляет 40-60 см, промежуток между точками опоры должен быть меньше этих показателей на 4-6 см.
Чертежи и схемы мангалов из баллона
Достаточно простое сооружение не потребует детального проекта, но небольшой чертеж придется нарисовать. При разработке чертежа учитывают:

- внешнее и техническое состояние емкости;
- габариты;
- параметры, место расположения отверстий;
- размеры шампуров;
- тип будущего мангала;
- предполагаемую отделку;
- дополнительные элементы (крючки, стопоры, ручки, складной столик, другое).

Разметка 50 литрового баллона
Такая схема поможет определить количество требуемых материалов, распланировать подсоединение отдельных компонентов. Чтобы исключить оплошность в дальнейшей работе, не стоит пренебрегать этим этапом.
Ниже можно посмотреть чертежи с размерами наиболее популярных конструкций.
Из чего сделать опоры для мангала
Для опор подойдут любые материалы, которые найдутся в хозяйстве:

- металлические уголки;
- профилированные, круглые трубы;
- полоски толстой стали;

Чертеж подставки с ложементами
Для изготовления мобильной конструкции, к жаровне привариваются небольшие куски арматуры, на которые надевают отрезки труб соответствующего диаметра.
Мангал из газового баллона 3 в одном. Чертежи, размеры и схемы мангалов-коптилен из газового баллона
Многофункциональная печь доставляет неудобства при разработке проекта. Каждый сегмент работает в собственном режиме, поэтому учитывают все нюансы и составляют схему. Существуют два варианта копчения: холодным и горячим способом.
В зависимости от выбранной технологии приготовления продуктов, составляют чертеж мангала-коптильни из газового баллона
Приготовление мяса холодным способом происходит остывшим дымом, который поступает через трубу и остывает за это время. Продукты, сделанные таким методом, хранятся до шести месяцев.
Приготовление горячим способом происходит также при помощи дыма, однако он поступает из топки, расположенной под коптильней. Срок хранения продуктов до двух месяцев.
Элементы конструкции будут удалены друг от друга на разное расстояние, чтобы сохранить принцип приготовления продуктов
Чтобы сделать из газового баллона коптилку-мангал, выбирают методы обработки рыбы и мяса. В зависимости от того, сколько функций должна иметь печь, выбирают схему. При этом учитывают стандартные размеры каждого из элементов и соотносят показатели в единой конструкции.
Средняя длина мангала 80-100 см. Расстояние между шампурами примерно 10 см. От того, какое количество шашлыка требуется приготовить одновременно, рассчитывают общую длину. Ширину регулируют длиной шампура. Производители выпускают их 30-50см. Поэтому стандартная ширина 25-30 см. Высота мангала 20 см. Угли должны располагаться невысоко, чтобы не подгорели продукты, но и достаточно близко, чтобы хватало жара.