Как сделать буржуйку длительного горения. Корпус: изготовить или приспособить
- Как сделать буржуйку длительного горения. Корпус: изготовить или приспособить
- Экономичная буржуйка своими руками. Устройство печки под твердое топливо
- Печь длительного горения своими руками: чертежи. Печь Бубафоня длительного горения: чертежи, схема, фото
- Буржуйка своими руками чертежи самая эффективная. Другие варианты печей
- Буржуйка длительного горения чертеж. Делаем буржуйку
- Буржуйка своими руками из трубы. Буржуйка на дровах - особенности, преимущества, недостатки, чертежи
- Кирпичная печь длительного горения своими руками. Изготавливаем «бубафоню»
- Мини печь длительного горения своими руками. Как сделать печь длительного горения своими руками
Как сделать буржуйку длительного горения. Корпус: изготовить или приспособить
Дрова в буржуйке длительного горения не горят, а очень медленно тлеют. При этом в смежной с топкой камере сгорает сильно нагретый пиролизный газ, образующийся за счёт теплового разложения топлива. В таком «придушенном» режиме работы печь не генерирует очень высоких температур, поэтому металл может быть достаточно тонким — около 2,5 мм. Естественно, при полной подаче воздуха печь будет разогреваться докрасна, так что если хотите режим повышенной мощности — делайте корпус массивным.

Длительность работы печки между закладками зависит от двух факторов: массы заложенного топлива и активности его горения. Поэтому не стоит ожидать, что компактная печь для гаража сможет работать до трёх суток, ей попросту не хватит горючего на такой срок. Значение играет также и температура окружающей среды: чем она ниже, тем активнее проходит процесс сгорания.

Листовая сталь идеально подходит для изготовления корпуса. Есть также возможность использовать любой профильный прокат, сложенный вертикальными рядами в кольцо или прямоугольник. Есть проблема в том, чтобы обварить все швы, но печь в таком случае получает множественные ребра жёсткости и максимально эффективно отдаёт тепло.

Корпус буржуйки изготавливается очень просто: глухие герметичные стены и дно. Загрузка может быть вертикальной и горизонтальной, в последнем случае роль топочной дверцы выполняет верхняя крышка. Мы рассмотрим оба пространственных положения буржуйки, но корпус будет унифицирован для каждой. За пример возьмём баллон для пропана на 50 л со срезанной верхней частью — цилиндрический корпус имеет преимущество в более равномерном нагреве.
Экономичная буржуйка своими руками. Устройство печки под твердое топливо
Дрова, кирпич, уголь — это пока самый доступный и экономичный топливный материал. Его использование наименее безопасно, а значит и печь, работающую на таком топливе, сделать проще всего.
Вариантов различных модификаций буржуек, сделанных своими руками чрезвычайно много. Рассмотрим самые распространенные модели.
Печь-буржуйка из баллона и бочки
Старый газовый баллон из толстостенного металла подойдет для любых видов топлива, в том числе угля. Простая конструкция справится с задачей быстрого прогрева помещения, но как только поступление топлива прекратится, она будет быстро остывать.
Самодельная печь из баллона компактная, имеет аккуратный вид. Такую буржуйку используют для дачи, времянки, гаража.
Перед тем как разрезать газовый баллон, из него обязательно стравливают газ, сливают конденсат. Затем баллон полностью наполняют водой — она вытеснит остатки газа, омоет внутренние стенки
Чтобы из газового баллона получилась печь, в корпусе необходимо вырезать отверстия для дверки и под дымоход. Вырезанные участки металла послужат дверцами, после того, как к ним приварят завесы и запирающий механизм. Для поступления воздуха в топку дверку внизу сверлят насквозь.
Подробное описание процесса изготовления самодельного дымохода для буржуйки мы рассмотрели в другой статье .
В нижней части камеры размещают колосник из решетки (он может быть сварен из арматуры), под которым будет скапливаться зола. Можно также организовать варочную поверхность. Сделать это легче на горизонтально расположенном баллоне, приварив на нем с двух сторон уголки.
Хорошо, если бочка изначально имеет ножки. Если нет, нужно приварить их или установить печь на кирпичи.
Буржуйку из газового баллона можно использовать также как основу для дальнейшего сооружения водогрейной колонки, как ее еще называют — «Титан». Для этого поверх печки устанавливают нержавеющую емкость, сквозь которую проходит труба дымохода.
Вода в дровяном бойлере нагревается быстро, а дров используется мало — в летнее время достаточно одной закладки в небольшую топку.
Печь из бочки имеет ту же конструкцию, что и из баллона. Выбирать нужно емкость из толстого металла
Для буржуйки подойдет также металлическая емкость со стенками, толщиной не менее 3 мм. Открытый верх емкости закрывают кругом из металлического листа и заваривают.
В крышке или стенке вырезают отверстие под дымоход. Его диаметр должен составлять не менее 100—150 мм. Верх в такой буржуйке будет нагреваться настолько, что на нем можно будет готовить пищу, греть воду.
У нас на сайте есть также более подробная инструкция со схемами и чертежами по изготовлению буржуйки из газового баллона .
Особенности буржуйки на опилках
Если в хозяйстве нет недостатка в опилках, то такой вид топлива вполне оправдает свое использование. Такая буржуйка не требует частой загрузки — утрамбованные опилки внутри не горят, они медленно тлеют, выделяя тепловую энергию постепенно и обеспечивая теплом длительное время.
Рекомендуем вам посмотреть информацию о том, как изготовить брикеты из опилок своими руками.
Буржуйка на опилках, изготовленная своими руками, работает по принципу длительного горения. Медленный процесс горения позволяет экономить ресурсы — тепло не вылетает моментально в трубу, отапливая атмосферу
Основой печи может послужить металлическая бочка с открытым верхом (если емкость герметична, то верхушку срезают) или труба диаметром от 300 до 600 мм.
Затем из листа, толщиной в три или больше миллиметров, вырезают металлический круг, который должен быть меньшим чем внутренний диаметр бочки. В его середине прорезают отверстие диаметром 100 мм под конус для трамбовки опилок.
Заготовку приваривают к стенкам бочки. С помощью этого круга отгораживают зольник — в нем, с помощью стружки или щепок, будет проводиться розжиг. Высота зольника должна быть 100—200 мм.
Чтобы буржуйка не пропускала дым, между крышкой и внешним цилиндром делают песчаный затвор
Ниже приваренного круга вырезают окошко, которое будет служить как поддувало. К вырезанному кусочку металла приваривают завесы, делая дверцу для того же отверстия.
В крышке емкости делают выход к дымоходу. Крышка должна плотно одеваться на буржуйку и быть из достаточно толстого листа, иначе быстро прогорит.
Чтобы опилки могли гореть постепенно, нужно обеспечить ограниченную подачу кислорода в топливный отсек. Для этого внутрь топки вставляют конусообразный сердечник, вокруг него засыпают опилки и утрамбовывают. Конус осторожно вынимают, прокручивая, на бочку надевают крышку
Улучшить эту же модель можно, добавив дополнительный цилиндр. В этом варианте опилки будут находиться во внутренней камере, а пространство между двумя отсеками послужит для дожига газов и увеличения площади нагрева. В таком варианте выход дымных газов устраивают в нижней части печки.
Печь длительного горения своими руками: чертежи. Печь Бубафоня длительного горения: чертежи, схема, фото
Самодельная печь длительного горения Бубафоня из газового баллона своими руками: чертежи, размеры, схема, фото,
.
Продолжаем тему самодельных печей длительного горения и на этот раз мы рассмотрим печь с очень оригинальной конструкцией, печь называется Бубафоня.
Такое оригинальное название дали ей пользователи форума, на котором в 2008 году была представлена конструкция печи умельцем с ником Bubafonja.
Печь действительно заслуживает внимания, её конструкция предельно проста, работает печь на любой древесине, это могут быть не только дрова, но и опилки, щепа и ветки.
Сделать Бубафоню можно из обычного газового пропанового баллона и отапливать практически за копейки — теплицу, дачный домик, хозяйственные помещения, бокс или гараж.
Бубафоня действительно печь длительного горения, на одной закладке дров время горения в этой печи в зависимости от типа древесины составляет 5 – 8 часов. В обычной печи такое количество дров сгорит за час, и большая часть тепла выйдет просто в дымоход, а в Бубафоне это же самое количество дров будет гореть в 5 – 6 раз дольше и тепло будет равномерно поступать в помещение, а не вылетать в дымоход.
Схема и принцип работы
Конструкция печи состоит из нижней основной камеры первичного горения, в которой горит, точнее, тлеет древесина и верхней вторичной камеры, где догорают пиролизные газы, выделяемые при тлении древесины.

Камеры разделяются подвижным поршнем который упирается в древесину и по сути создаёт две камеры нижнюю для горения древесины и верхнюю для догорания пиролизных газов. За счёт такой конструкции топливо сгорает полностью и отдаёт тепло по максимуму.
Подача кислорода в нижнюю камеру идёт через трубу поршня, по мере сгорания древесины, поршень проседает под своим весом и тем самым не даёт древесине получить много кислорода и быстро сгореть.
Интенсивность горения в печи регулируется заслонкой на вентиляционной трубе поршня, чем больше отверстие, тем больше поступает кислорода и тем интенсивней греет печь и наоборот, если прикрыть заслонку интенсивность горения будет меньше, и топливо будет гореть дольше.
Чертежи и размеры
Бубафоня — это печь самоделка и тут особая точность в размерах не требуется, главное соблюдать саму конструкцию печи.

На рисунках ниже предоставлены чертежи и размеры Бубафони из газового баллона.
Бубафоня своими руками
Конструкция печь предельно проста, Бубафоня состоит из таких частей:
- Корпус.
- Крышка корпуса.
- Поршень с трубой.
- Дымоход.
Сделать печь длительного горения можно также из бочки, но нужно смотреть на толщину металла, тонкостенная бочка быстро прогорит.

Газовый баллон из-под пропана идеально подходит для изготовления Бубафони, толщина металла у баллона 3 мм чего вполне достаточно для таких температур.

Корпус печки
Достаточно срезать верхнюю часть баллона болгаркой, в крышке сделать отверстие под трубу поршня и корпус печи готов.

Поршень печи

Диаметр газового баллона составляет 300 мм, значит, для изготовления поршня понадобится металлический диск диаметром около 270 мм.

Поршень должен свободно ходить по трубе, небольшая щель между диском поршня и стенками печки обеспечивает выход пиролизных газов в верхнюю камеру
Для поршня также понадобится труба диаметром 60 – 80 мм длиной 900 мм.
Трубу нужно приварить к центру диска, предварительно в центре диска нужно сделать отверстие равное внутреннему диаметру трубы.
На, верх трубы желательно сразу сделать заслонку, чтобы регулировать интенсивность горения в печи.

Конструктивная особенность поршня заключается в его нижних опорах, которые не дают пластине поршня полностью придавить тлеющую древесину. Нижние опоры пластины можно изготовить из уголка или полос металла 40 мм.

Дымоход печи
Дымоход состоит из металлической трубы диаметром 120 – 160 мм, не рекомендуется использовать дымоход меньшим диаметром, это снизит тягу в дымоходе, он будет быстро забиваться сажей, печь начнёт дымить в помещение.
Труба дымохода вваривается в верхней части боковой стенки баллона, чтобы обеспечить хорошую тягу нужно избегать прямых углов на сгибах трубы дымохода и использовать как можно меньше колен. Дымоход желательно сделать разборным, чтобы его было удобней чистить от сажи.
Буржуйка своими руками чертежи самая эффективная. Другие варианты печей
Конечно, далеко не все выбирают буржуйки. Многие автовладельцы в поисках самых экономных способов обогрева гаража зимой останавливаются на вариантах, работающих на отработке или от газовых баллонов. Несмотря на то, что схема работы таких печей приблизительно схожа, все же остановимся подробнее на альтернативах, чтобы вы смогли выполнить проект своими руками без какой-либо помощи специалистов.
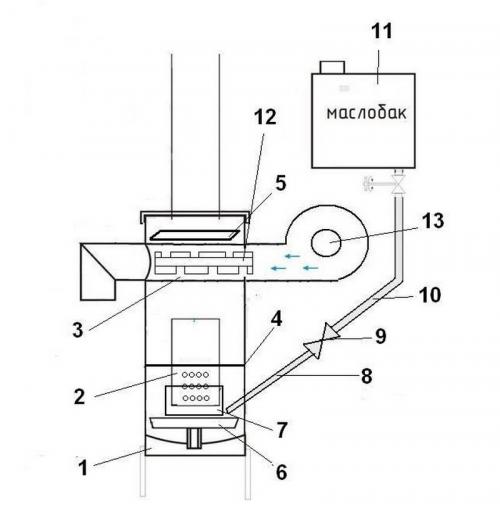
На отработанном масле
Главное отличие такой конструкции от стандартной буржуйки — она состоит из 2 камер. Их между собой соединяют металлической трубой с отверстиями: из них как раз и выходит пламя.
- нижняя камера — предназначен для отработанного топлива, здесь оно сгорает и превращается в газ;
- верхняя камера — для смешивания образовавшегося газа с воздухом, чем оптимальнее конструкция — тем лучше теплоотдача.




Порядок работы:
- берем листовой металл и придаем ему нужную конфигурацию, этот этап можно пропустить, если у вас есть готовая круглая либо прямоугольная металлическая емкость;
- делаем из него нижний отдел, в который заливается отработанное топливо, изготавливаем заслонку, чтобы можно было регулировать поступающий в камеру воздух;
- приделываем ножки снизу из толстой проволоки или любого подручного материала — обеспечат устойчивость печи;
- в отверстие сверху вставляем перфорированную трубу с толстыми металлическими стенками — она служит опорой для верхнего отсека и постоянно подвергается воздействию высокой температуры, поэтому должна быть надежной;
- для изготовления верхней камеры берем металлическую заготовку цилиндрической формы;
- финальный штрих — дымоход, устанавливается сверху.
Длительного горения
Такую печь легко изготовить из старого газового баллона. Либо металлической бочки с прочными стенками. Обязательные условия:
- цилиндрическая форма;
- вертикальное расположение.
Для изготовления необходимо сварить между собой металлический круг, выполняющий функцию груза, и небольшую трубу. Они помещаются непосредственно в заготовку и обеспечивают равномерное горение топлива за счет стабильной подачи воздуха.
Буржуйка своими руками: самая эффективная схема и альтернативы
Конечно, далеко не все выбирают буржуйки. Многие автовладельцы в поисках самых экономных способов обогрева гаража зимой останавливаются на вариантах, работающих на отработке или от газовых баллонов. Несмотря на то, что схема работы таких печей приблизительно схожа, все же остановимся подробнее на альтернативах, чтобы вы смогли выполнить проект своими руками без какой-либо помощи специалистов.
Альтернатива буржуйки: печи на отработке и газовых баллонах
Главное отличие такой конструкции от стандартной буржуйки — она состоит из 2 камер. Их между собой соединяют металлической трубой с отверстиями: из них как раз и выходит пламя.
Как изготовить печь из газового баллона
Такую печь легко изготовить из старого газового баллона. Либо металлической бочки с прочными стенками. Обязательные условия:
- Для изготовления необходимо сварить между собой металлический круг, выполняющий функцию груза, и небольшую трубу. Они помещаются непосредственно в заготовку и обеспечивают равномерное горение топлива за счет стабильной подачи воздуха.
- Вам также потребуется металлическая трубка для соединения камер.
- Не забывайте о безопасности: используйте защитные перчатки и очки при работе с огнем и горючими материалами.
Следует отметить, что такие печи могут быть менее эффективными, чем традиционные буржуйки, но они могут быть более экономными и простыми в использовании. Если вы решили изготовить такую печь, убедитесь, что вы выполните все необходимые меры безопасности и следуйте инструкциям по ее эксплуатации.


Буржуйка длительного горения чертеж. Делаем буржуйку
Печи длительного горения буржуйки хороши тем, что они делаются из любых доступных материалов – это различные бочки, старые вместительные бидоны, куски труб большого диаметра или просто листовой металл. В качестве исходного материала мы выбрали листовую сталь – это более удобный в обработке материал. Вы можете приспособить для этого бочку, но выполнять работы в ее внутреннем объеме не очень удобно.
Все размеры представлены скорее как ориентиры, некий усредненный наилучший вариант. Вы же, в свою очередь, можете отклоняться от размеров деталей для создания печки, удовлетворяющей Ваши конкретные пожелания.
Конструкция печи длительного горения вполне понятна из представленного выше чертежа. Вот ее основные узлы:
- Камера сгорания – в ней горят дрова с образованием пиролизного газа;
- Камера дожига – в ней происходит сгорание продуктов пиролиза;
- Дверки камеры сгорания и зольника – они приобретаются в магазине, но их можно изготовить и своими руками;
- Дымоход – в большинстве случаев это труба диаметром 100-150 мм.
Вы можете отклониться от чертежа в ту или иную сторону. Но помните, что с уменьшением размеров уменьшается время горения и уменьшается мощность печи длительного горения.
Чем меньше мощность, тем меньше отапливаемая площадь. Поэтому лучше всего предусмотреть небольшой запас.
Для изготовления печи длительного горения типа буржуйка нам понадобится листовая сталь толщиной не менее 3 мм – это обеспечит продолжительный срок службы отопительного оборудования. Если сталь будет тонкой, она начнет прогорать – через пару сезонов в ней образуются дыры
Поэтому толщине стали уделяется особое внимание. Оптимальное значение толщины составляет 3-5 мм
Для нашего примера мы возьмем классическую схему буржуйки, доработаем и получим в свое распоряжение эффективную печь для дома на дровах. На начальном этапе готовим боковые листы – на нашем чертеже они имеют размеры 450х450 мм. Далее изготавливаем нижние стенки, переднюю и задние стенки – их размеры составляют 200х450 мм. В итоге у нас должен получиться прямоугольный короб. Но не спешите сваривать его воедино – впереди полно работы.
Для начала нужно изготовить основу – это нижняя стенка и две боковые. Свариваем их воедино, на высоте 80 мм от дна привариваем колосниковую решетку. Теперь нужно подготовить переднюю стенку печи длительного нагрева – ввариваем в нее обе дверцы, после чего привариваем ее к нашей конструкции.
Готовим два металлических листа размером 200х370 мм. Первый из них привариваем к передней и боковым стенкам на высоте 160 мм от верха. Далее готовим заднюю стенку – ввариваем в нее небольшие металлические трубки, которые должны входить в пространство между двумя внутренними листами, образующих камеру дожигания – через них будет подаваться вторичный воздух. Потом привариваем заднюю стенку и второй металлический лист на высоте 80 от верха (приваривается к боковым и задней стенкам).
Шибер используется для регулировки воздушных потоков. Именно он повышает эффективность и качество тяги.
Наша печь длительного горения своими руками почти готова – осталось разобраться с верхней крышкой. В ней мы делаем отверстие диаметром 100 мм и ввариваем кусок трубы для будущего дымохода. Теперь остается выяснить, нужна вам варочная поверхность или нет – она тоже вваривается в верхнюю крышку. На последнем этапе устанавливаем крышку на место и привариваем ее – печка готова, теперь ее можно установить на негорючее основание, приделать дымоход и запустить.
При запуске представленной выше печи длительного сгорания дайте ей разгореться, после чего прикройте поддувало, чтобы дрова еле тлели и началась генерация пиролизного газа.
Еще одна интересная пиролизная печь длительного горения представлена на следующем рисунке. Она изготавливается из бочки или отрезка трубы большого диаметра и снабжается подходящей крышкой. В нижней части, на расстоянии 80-100 мм от дна, вваривается металлический диск с отверстием посередине. Между диском и дном, на боковой стенке, вваривается дверца. Полученное пространство образует у нас топку. В верхней части ввариваем дымоход диаметром 70-100 мм.
В плане дешевизны использования такая печь сущий подарок, так как недостатка в опилках в частном доме не бывает.
Буржуйка своими руками из трубы. Буржуйка на дровах - особенности, преимущества, недостатки, чертежи
Самым популярным топливом для печки-буржуйки безусловно являются обычные дрова. Как правило, эти печки выполнены из металла или кирпича, причем, чем объемнее печь, тем больше она выделит тепла. Форма такой буржуйки цилиндрическая или прямоугольная. Единственное, что обязательно должно соответствовать определенным условиям – это диаметр дымохода. Он варьируется в диапазоне 80-150 мм.
Для дополнительной безопасности печи могут быть снабжены защитными экранами, стоящими на расстоянии 4-6 см от стенок буржуйки.
Любая буржуйка, использующая в качестве топлива дрова, должна иметь топку, а также поддувало, которое, помимо этого, предназначено для сбора золы. Печки такого вида должны быть снабжены колосниковой решеткой, на которую закладываются дрова, и кроме того, она служит для отделения золы от горящего топлива. Топка и зольник должны прикрываться дверцей для того, чтобы избежать задымления помещения и выскакивания случайных искр из камеры горения.
Необходимо помнить, что забивать топку дровами под завязку не имеет смысла, т.к. в этом случае в ней не останется места для конвекционного вихря, поскольку кислород внутрь топливной массы попадать не будет.
Для изготовления печи можно использовать старые газовые баллоны, стальные бочки, если толщина их стенок составляет не менее 3 мм., железные твердостенные трубы широкого диаметра. Кроме того, буржуйку можно выложить из кирпича.
Чертежи:
Необходимо помнить о пожарной безопасности, расположив печь на максимальном удалении от горючих материалов, избегать контакта раскаленной поверхности с деревом. Рекомендуется в месте установки печки постелить металлический лист, либо ставить её на бетонную поверхность.
Необходимо следить за герметичностью стыков, для того, чтобы избежать выхода дыма в помещение. Кроме того, такой дефект может ухудшить тягу и негативно сказаться на пожарной безопасности Имеет смысл подробнее рассмотреть наиболее популярные конструкции печек-буржуек.
Кирпичная печь длительного горения своими руками. Изготавливаем «бубафоню»
Если делать печь для обогрева помещений хозяйственного или технического назначения, следует уделить внимание печке под немного смешным названием «бубафоня». Она обладает простой, но оригинальной конструкцией, дающей множество тепловой энергииРаботает она следующим образом:
- Снимается крышка, загружаются дрова (сверху укладываются мелкие щепки);
- Поверх дров и в промежутках между ними укладываются пропитанная керосином ветошь;
- Ветошь поджигается и поджигает дрова;
- В печь устанавливается поршень, крышка закрывается – агрегат начинает вырабатывать тепло.
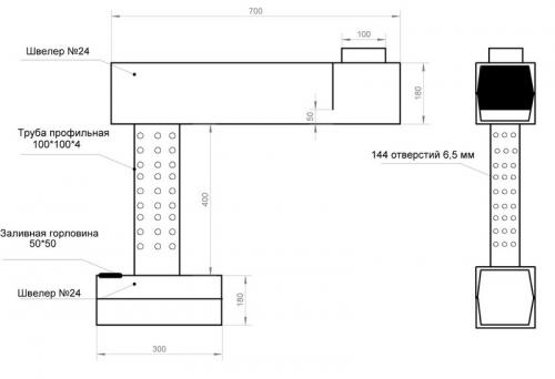
Для того чтобы понять суть этой необычной печи длительного горения, необходимо просто взглянуть на ее схему. Агрегат состоит из трех основных частей – это корпус, дымоход, тяжелый поршень и крышка.
Данная картинка наглядно демонстрирует схему и принцип работы «бубафони».
«Бубафоня» проста в исполнении, проще всего соорудить ее из двух целых металлических бочек (без дырок) объемом 150-200 литров. Толстая сталь тут особо не нужна, так как из-за ограничения подачи кислорода и горение будет медленным и низкотемпературным. Давайте посмотрим, как сделать такую печь длительного горения своими руками. Вот вам пошаговая инструкция:
- Срезаем с основной бочки крышку, готовим камеру сгорания;
- В боковую стенку камеры сгорания (в верхней части, согласно рисунку) ввариваем отрезок трубы диаметром 100-150 мм – это будет дымоход;
- Готовим верхнюю крышку – делаем в ней отверстие шириной 40-50 мм, через которое будет проходить труба поршня. Края крышки аккуратными ударами полотка отгибаем наружу, края бочки (камеры сгорания) подбиваем внутрь – крышка должна плотно надеваться на нашу бочку;
- Готовим поршень нашей печи длительного горения – берем трубу диаметром около 40-50 мм (она должна входить в отверстие в крышке), снизу к ней привариваем крышку от второй бочки, причем саму трубу заваривать нельзя – через нее будет проходить воздух. К нижней части поршневой крышки привариваем куски толстого Г-образного швеллера, чтобы сам поршень был как можно более массивным. Диаметр самого поршня должен быть таким, чтобы он без труда вставлялся в камеру сгорания (между стенками и поршнем должны оставаться щели около 5 мм шириной, через которые будут выходить продукты сгорания).
Мини печь длительного горения своими руками. Как сделать печь длительного горения своими руками
В сегодняшней статье расскажем, как своими руками изготовить печь длительного горения с функцией дожига пиролизных газов. Такую печь можно использовать для обогрева домашней мастерской или же гаража.
Из особенностей самодельной печи стоит отметить высокий КПД при сравнительно небольших затратах на изготовление самой конструкции.
Да, возможно, сделать классическую буржуйку — проще и дешевле, однако она не обладает высокой эффективностью по сравнению с печками длительного горения. Большая часть тепла уходит в трубу, а за свои деньги отапливать улицу — пустое занятие.
Уж лучше чуть больше потратиться один раз и сделать в итоге годную вещь, чем постоянно переплачивать за дрова при отоплении помещения зимой.
Своим личным опытом изготовления самодельной печки поделился с нами автор YouTube канала Sershzz.
Особенности конструкции
За основу изготовления печи длительного горения были использованы колесные диски: нижние два диска от КАМАЗа, а верхний — от прицепа трактора.
Колесные диски отлично подходят для изготовления отопительной печи:
- большой диаметр — около 50 см;
- толщина металла составляет 5 мм.
Еще один важный момент заключается в том, что колесные диски можно расположить как горизонтально, так и вертикально. В данном случае мы будем рассматривать печь с вертикальным расположением дисков.
При горизонтальном расположении колесных дисков в печь можно будет загружать более длинные дрова. Это, несомненно, плюс. Однако при этом сама конструкция будет занимать намного больше места в помещении.
Основные этапы работ
Первым делом необходимо изготовить топочную камеру, которая будет находиться в нижней части печи. Для этого берем два колесных диска от КАМАЗа и свариваем их вместе.
Внутри диска от тракторного прицепа, который служит верхней частью печи, нужно приварить две перегородки из листового металла толщиной 5 мм.
Первая перегородка приваривается в нижней части топочной камеры с отступом от задней стенки 100 мм. Вторая (верхняя) перегородка приваривается на расстоянии 120 мм от нижней перегородки и отступом от передней стенки диска 100 мм.
Перегородки нужны для того, чтобы внутри печи создавался дымооборот. Также они увеличивают расстояние прохождения горячих газов внутри печи, что в целом увеличивает показатели КПД.
Диск с перегородками устанавливается поверх топочной камеры, и обваривается по кругу. В результате у нас получился цельный корпус.
После этого из листового металла толщиной 5 мм вырезаем верхнюю часть печи (по наружному диаметру колесного диска) и привариваем ее к диску с перегородками. Предварительно в ней необходимо вырезать отверстие для дымоходной трубы.
Изготовление и установка дверцы
Все имеющиеся мелкие отверстия в колесных дисках необходимо заварить кусочками металла. В топочной камере вырезаем отверстие для установки дверцы.
Далее нам потребуются металлические полосы шириной 30 мм, которые надо приварить по периметру «дверного проема».
Саму дверцу автор изготовил из листового металла толщиной 5 мм. По контуру «полотна» привариваются полосы шириной 30 мм. Обратите внимание: ширина и высота дверцы должна быть чуть больше размеров «коробки».
По центру дверцы нужно вырезать круглое отверстие и приварить регулируемую заслонку — для подачи воздуха внутрь топочной камеры печи.
Для плотного прилегания дверцы к коробке можно использовать стекловолоконный или асбестовый шнур. В этом случае с внутренней стороны дверцы необходимо приварить полосы металла, отступив от краев на толщину шнура.
Обратите внимание: дополнительная герметизация дверцы нужна только в том случае, если дверца неплотно прилегает к коробке и в процессе работы печи дым попадает в помещение.
Изготовление жиклера
На следующем этапе нужно изготовить простейший жиклер для подачи вторичного воздуха. Для этого автор использовал отрезок водопроводной трубы, который он слегка удлинил, и просверлил в нем отверстия диаметром 8 мм в количестве 5 шт.
Суть работы жиклера в следующем: снизу печи будет подаваться воздух, который подогревается в топочной камере и далее подается из отверстий во вторичную камеру. За счет этого и будут догорать несгоревшие пиролизные газы. В процессе работы печи в режиме тления из отверстий жиклера вырывается пламя.
Последний штрих — и готово
Дно печи вырезаем из листового металла. Высверливаем в нем отверстие для подачи вторичного воздуха.



