Как собрать дымоход для печи в баню своими руками. Установка наружного дымохода происходит так:
- Как собрать дымоход для печи в баню своими руками. Установка наружного дымохода происходит так:
- Дымоход в бане из стальной трубы своими руками. Как рассчитать диаметр дымохода
- Дымоход в бане через стену. Как сделать дымоход в бане через стену – варианты устройства конструкции
- Как сделать дымоход в бане из кирпича. Кирпичные трубы к металлическим печам бани, как выложить
- Монтаж дымохода в бане. Керамические
- Дымоход в бане из стальной трубы. Как правильно сделать дымоход для бани — виды и особенности дымоходных каналов из различных материалов
Как собрать дымоход для печи в баню своими руками. Установка наружного дымохода происходит так:
1. Отметьте на стене промежуток от низа печи до патрубка, отводящего дым. Отложите ширину печи и патрубка. Обведите отметки с помощью маркера и начертите прямоугольник.
2. Воспользовавшись электролобзиком, аккуратно удалите намеченный участок стены. Очистите стену от теплоизоляционного материала ножом.
3. Защитите стену от высоких температур невозгораемыми плитами (толщина: тридцать миллиметров). В плите проделайте дыру для будущей трубы. Плиту прикрепите к стене с помощью саморезов. Пол застелите защитным экраном.
4. С внешней стороны бани наметьте извлекаемый материал и выньте его при помощи электродрели и лобзика.
5. Положите теплоизоляционный слой (минвату) в том месте, где дымоход пересекает стену. Минвата кладется по контуру проделанного проема фольгированной поверхностью внутрь.
6. Приступайте к сборке дымоходного канала. На первом этапе сборки понадобятся кронштейн, тройник и горизонтальный участок от печи. Все части дымохода скрепите хомутами и затяните болты. Соединения обработайте герметиком. Соберите опорно-остевой кронштейн.
7. Нарастите дымоход вверх, фиксируя конструкцию хомутами и слоем герметика. Каждые два метра устанавливайте детали крепления к стене.
8. Установите участок огибания свеса кровли. Отводы подбираются на основании особенностей крыши. Стандартный вариант – колено в 135 градусов. Соберите конструкцию и соедините ее с прямой частью дымохода.
9. Вернитесь в баню и присоедините моно-переходник к участку трубы, выходящему из стены. Установите шибер, придвиньте печь и присоедините ее патрубок к шиберу.
При укладке дымохода допускается использовать инструменты только изолированным покрытием. Чтобы установка было безопасной, важно заранее рассчитать расположение дымохода.
Дымоход в бане из стальной трубы своими руками. Как рассчитать диаметр дымохода
Есть два варианта расчетов: сложный и упрощенный, но все они принимают во внимание количество кислорода, необходимое для обеспечения горения топлива.
Еще важный момент. Для исключения образования на стенках дымохода конденсата температура газов на выходе из дымохода должна превышать +120°С. Конденсат на внутренней части трубы становится причиной задержки сажи, что быстро снижает тягу и требует частой чистки.
Оптимальные характеристики дымоходов
ПараметрЗначениеИсходя из этих характеристик, можно рассчитать диаметр дымохода по формуле

Диаметр дымохода
- D – диаметр дымохода;
- Vr – объем воздуха.
Рассчитать высоту дымохода в зависимости от геометрии сечения можно при помощи графика.

График зависимости
Для расчета нужно знать площадь топки (F) и площадь дымохода f, делим первое значение на второе и определяем процентное соотношение. К примеру, отношение сечения дымохода к сечению топки составляет 10%. Значит, минимальная высота дымохода круглого сечения составляет 7 метров, квадратного 9 метров, а прямоугольного 11 метров. Разница по высоте компенсирует вихревое сопротивление, создаваемое каждым типом дымоходов.
Вы должны понимать, что эти значения имеют место только при прямой трубе, чего в бане сложно достичь. По большей части дымоходные трубы имеют различные повороты, это отрицательно сказывается на тяге. Чтобы точно рассчитать конкретный дымоход с различными искривлениями, придется приглашать «профессора», а вам мы советуем немного увеличить полученный диаметр. Все расчеты сделаны с большим запасом, плюс некоторое увеличение – этого вполне достаточно для печи, работающей на твердом топливе.
Еще несколько практических советов по дымоходам
СоветИллюстрация| Если дровами отапливается жилой дом, то правила рекомендуют ежегодно перед началом отопительного сезона проверять тягу. | ![]() Как проверить тягу |
| При необходимости дымоход прочищается. На практике прочистку делают не чаще одного раза в 10–15 лет. Бани топятся преимущественно один раз в неделю. Соответственно, чистить дымоходы нужно во много раз реже. Вывод – не стоит делать специальных сложных конструкций для очистки. | ![]() Ершик для чистки дымохода бани |
| Главный «враг» дымохода – влажные дрова. Они во время горения испаряют много воды, температура газов значительно понижается. Внутри дымохода постоянно находится конденсат, к которому прилипает сажа. В таких условиях дымоход может не прослужить и одного сезона. Вывод – используйте только сухие дрова. | ![]() Сухие березовые дрова |
| Для повышения температуры в бане металлическую трубу дымохода можно присоединить к нескольким коленам – значительно увеличивается площадь теплоотдачи, баня быстрее прогревается. | ![]() Колено сэндвич дымохода |
| Старайтесь не выводить дымоход через крышу, значительно проще расположить его в торце бани. Таким образом удастся не только сократить время на монтаж, но и исключить риски появления протечек на кровле крыши. | ![]() |
Дымоход в бане через стену. Как сделать дымоход в бане через стену – варианты устройства конструкции

Без такого отопительного прибора как печь невозможно представить функционирование парной. Любому твердотопливному агрегату требуется вывод продуктов горения, что необходимо обустраивать на этапе возведения строения. Внешние каналы дымоотведения можно устроить самостоятельно, но для этого нужно знать, как построить дымоход в бане через стену своими руками.
Какими бывают дымоходы
Работа по обустройству дымовыводящей конструкции отличаются сложностью и поэтому многие владельцы банных построек предпочитают обращаться за услугами к специалистам, имеющим опыт выполнения такой работы.
Правда, с задачей как вывести трубу из бани через стену можно справиться и самому. Это стало возможным, благодаря появлению в продаже современных металлических модульных систем, производимых из нержавейки.
Исходя из места выхода трубы на улицу, существует два типа дымоходов:
- внутренняя конструкция;
- внешняя система.
Внутренний вариант дымоотведения
В данном случае отходы горения проходят через дымоход, проложенный внутри банной постройки и выведенный за пределы здания через кровлю. Такая конструктивная особенность позволяет использовать топливо с максимальным КПД, поскольку труба отдает тепловую энергию по всей своей протяженности и тем самым обогревает помещение.
Внешний тип дымохода
Отличие между внешней дымоудаляющей конструкцией и внутренней заключается в технологии ее устройства. Она предполагает выведение трубы печи для бани через стену.
При строительстве системы удаления продуктов горения имеется единственное препятствие, поэтому внешний тип дымохода проще выполнить самостоятельно. Проход трубы в этом случае реализовать легче, так как она располагается вертикально, и вероятность возникновения протечек в этом случае сводится к минимуму.
Преимущества наружного размещения
В недалеком прошлом дымоходы устанавливали внутри помещений, поскольку при данном варианте тепловая энергия, идущая от печи, использовалась по максимуму, но у этого варианта дымоудаления имеются существенные недостатки, которые заключаются в повышенной пожароопасности и громоздкости, которыми отличается кирпичная труба в бане.
Дымоход с наружным расположением имеет ряд преимуществ:
- Компактные размеры. Отопительный прибор не займет много места в комнате и поэтому его можно установить в постройках, имеющих маленькую площадь. Это преимущество особенно касается дымоходов, выложенных из кирпича, которые имеют большие размеры.
- Противопожарная безопасность. Наружное размещение дымовыводящей конструкции по сравнению с внутренним вариантом отличается меньшей вероятностью возгорания.
- Простота монтажа. В процессе обустройства дымохода потребуется сделать всего один проход через препятствие, которым является стена. Выполнить такую работу можно самостоятельно. Что потребуется, так это знания, как сделать трубу в бане через стену своими руками и тогда помощь профессионалов не понадобится.
- Поскольку основную часть внешней конструкции прокладывают со стороны улицы, то в холодную погоду КПД отопительного агрегата значительно снижается, а потребление топлива возрастает. Кроме этого большая разница температуры внутри постройки и на улице является причиной образования конденсата в трубе. Чтобы избавиться от таких недостатков внешних каналов дымоотведения, делают термоизоляцию или задействуют особую сэндвич-систему.
Как сделать дымоход в бане из кирпича. Кирпичные трубы к металлическим печам бани, как выложить
О том, как выложить кирпичные трубы к металлическим печам бани, пойдёт речь в данной статье. Вы узнаете, как правильно выложить, своими руками, дымоход из кирпича в бане.

Дымоход - это устройство, предназначенное для отведения продуктов горения (дыма) от печи или котла на улицу.
Дымоходы бывают:
- Кирпичные;
- Металлические;
- Асбестовые и так далее.
- Конструкций для дымохода множество.
Существуют уже готовые решения, как например, сборные дымоходы (сендвичи), так и самоделки. Вы можете соорудить дымоход их чего угодно, из любого, подручного и негорючего материала.
При проектировании бани, каждый хозяин задумывается над тем, какую печь установить и как устроить дымоход. Это в банном деле наиболее важный вопрос.
Кирпичные трубы к металлическим печам бани
Что нужно знать при установке железной печи в баню. Что устанавливать, прямую кирпичную трубу или щиток. Эти вопросы волнуют многих, кто решил своими руками сделать отопление в бане.
В последнее время наблюдается тенденция установки железных печей (котлов, печи-камина и так далее), с выводом дыма через кирпичный щиток.
Люди ошибочно считают, что таким образом увеличивается площадь обогрева помещения. Иногда можно услышать - зачем отапливать улицу, я прогоню теплый воздух сквозь щиток и лучше нагрею помещение. Давайте поговорим о том, почему этого делать не стоит, хотя, звучит вроде бы всё логично.

Как сделать трубу из кирпича в бане
Если совершить небольшой экскурс в прошлое, то можно заметить, что у железных буржуек была железная труба для вывода дыма.
А вот кирпичные печи строились с щитком, который обогревал две смежных комнаты. Так было повсеместно и не зря.
Дело в том, что печи из кирпича очень медленно отдают тепло в помещение. Фактически весь жар уходит в трубу и поэтому, вполне логично сделать колодцы. Проходя по ним тепло частично уходит в кирпич, хотя, иногда огонь всё же прорывается из дымохода на улицу.
Таким образом, у печек из кирпича, щиток - это фактически продолжение самой печи. Потому что кирпич имеет низкую теплопроводность. То есть, весь жар остаётся внутри печи.
Газы нагреваются до высоких температур и нужно увеличивать площадь, которая забирает тепло и отдаёт его в помещение.
Металлические печи отдают тепло в помещение практически сразу. Газы, поступающие в кирпичный щиток имеют не высокую температуру.
Если дымовые газы пускать по щитку, то они остынут до такого состояния, что на выходе будет образовываться конденсат. При этом тяга уменьшается, печь дымит, а дымоход начинает быстро разрушаться.
Всё это указывает на то, что для металлической печи следует устанавливать прямой выход в виде трубы из металла или из кирпича. То есть, для металлической печи кирпичный щиток делать не рекомендуется.
Труба из кирпича для бани
Определившись с видом трубы из кирпича, уже можно приступать к проектированию. Кирпичная труба может располагаться как внутри помещения, так и снаружи.
Такое решение принимается индивидуально, всё зависит от проектных особенностей бани и от того, где расположена печь по проекту. Однако следует знать, что при внешнем расположении, труба должна надёжно крепиться к стене дома.

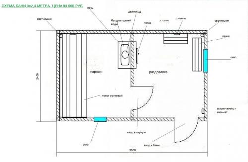
Схема расположения печи в бане.

Виды кирпичных дымоходов
Металлическая печь (МП) в бане, может иметь несколько различных видов дымохода.
Дымоход может быть:
- Кирпичный;
- Металлический.
Кирпичные дымоходы, также разделяются на типы:
- Монокирпичный;
- Кирпич с сандвич трубой;
- Кирпич с одно-стенной трубой.

Нужно отметить, что кирпичные дымоходы относятся к коренным или стеновым трубам.
Коренными называют дымоходы устанавливаемые на фундамент. Стеновые дымоходы монтируются непосредственно в стене здания (щиток с колодцами).
Рассмотрим простейший вариант коренной трубы с монокирпичным дымоходом.
Монокирпичный дымоход состоит из:
- Фундамента;
- Самой трубы;
- Противопожарной распушки;
Кроме того, внизу находится дверца для удобного удаления сажи. А сверху, по желанию, можно установить задвижку, для сохранения тепла, после прогорания печи. Также задвижку используют для регулировки тяги.
Монтаж дымохода в бане. Керамические
Керамика, как и кирпич, обладает похожими свойствами и большим весом. Поэтому керамическая труба устанавливается отдельно от неё на специальном основании с конденсатосборником. В комплект дымохода кроме труб длиной 33-50 см входят:
- фасонные элементы для сборки;
- изоляционные материалы;
- наружные блоки;
- верхний конус;
- клей для керамики.
Диаметр труб и фасонных частей из огнеупорной керамики составляет 140-200 мм при толщине стенки около 15 мм.
Монтаж дымохода в бане выполняется в определенной последовательности.
- Конденсатосборник с люком для очистки.
- Ревизионный тройник с большой инспекционной дверцей.
- Тройник для подключения к дымоходу выходящей из печи трубы.
- Необходимое количество прямых элементов для набора высоты.
Все керамические элементы склеиваются специальным составом с помощью клеевого пистолета. Одновременно вокруг трубы выстраивают кожух из наружных бетонных блоков, а пространство между ними заполняют изоляционной скорлупой, вплотную прилегающей к трубам.
На верхнюю часть конструкции устанавливается бетонная плита с отверстием и металлическим конусом.
Из всех видов печных труб керамические считаются самыми надежными, безопасными и долговечными. Наружные блоки не нагреваются и имеют правильные ровные грани, их можно штукатурить или окрашивать, вписывая в интерьер мансардного этажа. Но и обходятся они ощутимо дороже стальных дымоходов аналогичной конструкции.
Советы по выбору и монтажу
Выбирая трубы для бани, дымоходы для печей, и собираясь устанавливать их своими силами, старайтесь придерживаться принятых норм и правил. Большинство из них касается длины трубы и её высоты относительно конька крыши. Как правильно рассчитать эту высоту, показано на схеме.
Дымоход в бане из стальной трубы. Как правильно сделать дымоход для бани — виды и особенности дымоходных каналов из различных материалов
Наиболее сложным при строительстве бани является монтаж дымохода. Люди, не имеющие соответствующего опыта, предпочитают заказывать готовые дымоходы для банных печей, благо на современном рынке имеется масса различных вариаций подобной продукции.
Тем не менее труба для бани может быть изготовлена и установлена самостоятельно, в этом нет ничего сложного, главное – правильно определиться с материалом и действовать в соответствии с инструкциями, представленными ниже.
Трубы для бани имеют массу классификаций. Например, в зависимости от месторасположения они могут быть внешними и внутренними. Первые монтируются вне помещения, что позволяет высвободить немалое количество пространства и частично исключить возможность получения ожогов.
Такие трубы для бани имеют и существенный недостаток: вы в буквальном смысле будете протапливать улицу.
Дымоходные трубы для бани, расположенные внутри помещения, следует монтировать особо тщательно, соблюдая все правила. Монтаж дымохода в бане, произведенный с малейшими нарушениями, может являться причиной серьезных последствий: начиная от возгорания и заканчивая удушьем.
Не менее распространенной является классификация, опирающаяся на материалы, из которых изготавливаются дымоходы для бани. В нее включены следующие виды дымоходных каналов:
- кирпичные;
- модульные из нержавеющей стали, имеющие один или два контура;
- гофрированные;
- керамические;
- полимерные и т. д.
Ниже описаны все виды дымохода бани. Помимо этого имеется масса полезной информации, которая наверняка облегчит монтаж конструкций.
Виды дымоходов и требования предъявляемые к ним
Дымоход для банной печи должен соответствовать ряду требований. Малейшее несоответствие может стать причиной слабой тяги. Поэтому выполняя устройство дымохода в бане, следует обращать внимание на следующие факторы:
- Лицевая сторона трубы не должна иметь повреждений. Следствием этого может стать чрезмерное образование конденсата.
- Внутренняя поверхность должна быть гладкой. Различные неровности поспособствуют быстрому накоплению сажи и гари.
- Дымоход в бане своими руками или с привлечением специалистов обустраивается не только в вертикальной, но и в горизонтальной плоскости. Благодаря этому, тепло в буквальном смысле не вылетает в трубу, при этом каждая горизонтальная составная часть дымоходного канала не должна иметь длину свыше 1000 мм. В противном случае тяга будет слабой.
- Дымоходы для банных печей, монтируемые через перекрытия, в обязательном порядке должны оснащаться противопожарными конструкциями. Например, стальные и керамические дымоходы размещаются в специальных коробах.
- Решая, как установить трубу в бане – через потолок или стену, не в последнюю очередь следует задумываться о диаметре трубы. Он напрямую зависит от мощности печи и, как правило, варьируется в пределах от 100 до 350 мм.
- Часть дымоходного канала, расположенная вне здания, должна быть выполнена из прочных долговечных материалов, способных сопротивляться агрессивному воздействию окружающей среды (дождю, ветру, снегу и т. д.). В большей мере это касается труб, установленных вне помещения. В такой ситуации труба в бане через потолок и крышу имеет больше преимуществ, ведь вне помещения находится лишь ее малая часть.




