Простая печь для бани из кирпича. Изготовление металлической печи для бани: поиск возможных вариантов
- Простая печь для бани из кирпича. Изготовление металлической печи для бани: поиск возможных вариантов
- Печь-каменка для бани из кирпича. Возведение кирпичной печи в бане – основные детали процесса
- Печь для бани из кирпича на 3 помещения. Преимущества и недостатки каменки для бани из кирпича
- Маленькая печь для бани своими руками. Из кирпича
- Кирпичная печь для бани с закрытой каменкой и баком для воды. Печь из кирпича с закрытым типом каменки, дополненная баком под горячую воду
- Как сложить печь в бане из кирпича. Как сложить печь для бани из кирпича
Простая печь для бани из кирпича. Изготовление металлической печи для бани: поиск возможных вариантов
За многие годы использования металлических печей для бани предложено множество вариантов их изготовления своими руками. Одним из простейших вариантов является изготовление металлической печи-каменки из железной бочки, в процессе которого убирают крышку и днище бочки с образованием цилиндра. Половину полученного цилиндра заполняют кирпичами, поставленными на ребро, на которые впоследствии устанавливают колосниковую решетку. Получившееся свободное пространство на две трети заполняют камнями, после чего устанавливают дымоход и накрывают самодельную печь крышкой. Однако, несмотря на простоту изготовления, данный вариант считается одним из самых неудобных в эксплуатации.

Если ваша баня характеризуется достаточно небольшой площадью, вы можете изготовить компактную печь-каменку из листовой стали, внутреннюю поверхность которой выкладывают кирпичом. Размеры банной печи из металла достаточно скромны и соответствуют отапливаемой площади. Стенки топки достаточно выложить в половину кирпича, а дымоход — в четверть. Данная печь не только проста в изготовлении, но и крайне удобна в эксплуатации, так как не требует большого количества топлива и прогревается за сравнительно небольшой промежуток времени.
Существует еще один вариант изготовления печи-каменки, для которой не требуется использовать кирпич. Данный способ также прост в исполнении и не слишком затратный с финансовой точки зрения. Что касается внешнего вида, то он довольно эстетичный. Данная конструкция легко справится с обогревом предбанника, мойки и собственно парилки.

Печь-каменка для бани из кирпича. Возведение кирпичной печи в бане – основные детали процесса

Долговечной и красивой декоративной альтернативойстанет кирпичная печь для бани. Хоть ее возведение требует немало сил, времени, денежных затрат, но прослужит она десятилетия, не теряя привлекательности и рабочих свойств.
Кладка может быть выполнена с нуля на заказ с выбором индивидуального дизайна, размеров. Гораздо дешевле обойдется самостоятельное строительство. Важно просто придерживаться пошаговых инструкций опытных печников.
Пользователи часто ищут:
- Интерьер бани из бревна
Конструкция банных каменок
Печное оборудование устанавливают в парилке. Его основная функция – отопление помещения, выработка пара. Постоянный диапазон температур в парной – от 40 до 100 градусов.
В каменке есть топливник для дров, закрытая камера, куда сверху свода топливника кладут каменные булыжники, чугунные чушки. Средняя толщина слоя – до 22 см. Чугунные чушки быстрее камней набирают температуру, что ускоряет нагрев каменки. В своде специально оставляют щели. Через эти зазоры потом сквозь булыжники проходят дымовые газы и по дымооборотам выходят в трубу наружу.
Чтобы получить пар, раскаленные камни через специальное отверстие поливают водой. В этот же проем выходит пар.

Для парных в маленьких банях под аркой сверху топливника крепят змеевик, где будет нагреваться вода. В больших русских банях, где вода подается централизовано из котельных, змеевик не монтируют.
Чтобы повысить прочность каменки, можно поместить ее в каркас из металла.
Различные проекты: фотогалерея
На фотографиях наглядно показаны способы оформления, кладки печей для бань разной площади, техники укладки кирпичей, идеи красивой отделки.
Плюсы и минусы банных печей из кирпича
В пользу кирпичной печи стоит выделить следующее:
- Экологичность сырья, что безопасно для здоровья.
- Длительный срок службы. Она может служить до 100 и более лет.
- Износостойкость и прочность материала.
- Возможность долгое время удерживать и отдавать тепло. Вода в баке, нагретая с вечера, будет теплой до утра.
- Выработанный пар получается хорошего качества.
- Продукты горения не проходят через внутреннюю каменку.
- Печка способна обогреть большие помещения.
- Кирпич относится к пожаробезопасным материалам.

Из минусов пользователи отмечают то, что:
- Построить конструкцию быстро и без опыта не выйдет. Здесь нужно правильно составить чертеж, провести расчеты, понимать принципы кирпичной кладки.
- Печь имеет большой вес. Поэтому под нее в обязательном порядке заливается надежный фундамент.
- Конструкция нагревается долго, в сравнении с металлическим аналогом.
- Длительный нагрев влечет за собой повышенный расход древесного топлива.
- Высокая стоимость работ (при заказе у печника). Большие денежные траты на покупку материалов.
Несмотря на такое количество недостатков плюсы конструкции гораздо весомее, из-за чего спрос на строительство кирпичной печи с баком для воды только растет.
Виды топки
Печи различают по тому, как сложена топка. От это зависит способ использования устройства, качество пара.
По-черному
Старинный вариант оборудования. Дымоход отсутствует. Таким способом возводили печи наши предки.

В топке бани по-черному расход дров для отопления минимален, но весь дым и сажа попадают внутрь помещения. Из-за чего стены быстро покрываются копотью.
Конструкция относится к ряду с повышенной пожарной опасностью.
Большинство печников отказалось от этого способа кладки топки.
По-серому
В сером варианте устройства печь оснащена дымоходом. Но он построен так, что часть отходов от горения (сажа, копоть) оседают внутри кирпичных стенок дымоходной трубы. Поэтому всегда есть риск возгорания внутри печи и перехода пламени на помещение.

При такой топке нужен постоянный контроль. Не рекомендуется оставлять баню без присмотра до тех пор, пока полностью не прогорят все дрова.
По-белому
Имеется полноценный дымоход, через который весь дым выходит наружу, не попадая внутрь помещения.
В таких печах камни закрыты плотной крышкой из металла, дверцей (на выбор). Их открывают только после того, как прогорели все дрова.
Встречаются изделия, где камни отделяются от дымовых газов варочной плитой. Печь работает постоянно (для принятия бани выполняют подогрев) или периодически (тщательная единоразовая топка перед принятием бани).

Для отопления банных каменок рекомендуется пользоваться дровами лиственных пород. Они не выделяют смолянистой гари после прогорания. Дровяную печь проще регулировать и поддерживать ее температуру на одном уровне.
Применять уголь не рекомендуется. Он быстро нагоняет высокую температуру, которую сложно регулировать. Дым очень вреден для дыхательной системы. Стенки перегреваются и со временем начинают лопаться.
Печь для бани из кирпича на 3 помещения. Преимущества и недостатки каменки для бани из кирпича
Большинство хозяев предпочитают оборудовать проверенные конструкции из кирпича.
Достоинства каменки для бани :
- Энергонезависимость. При наличии сбоев подачи электроэнергии и отсутствии газификации, кирпичная каменка для бани – идеальный вариант.
- Комфорт. Печь дает мягкое тепло и насыщенный, но в тоже время легкий пар. В парилке дышится легко, что важно для тех, кто любит часто париться.
- Теплоемкость. Печь сохраняет тепло на протяжении 8 часов и способна прогреть сразу несколько комнат.
- Экономичность. Нет необходимости монтировать электрику или подводить газопровод, а затем оплачивать счета за потребленные энергоресурсы. Дрова – дешевый вариант обогрева бани.
- Пожарная безопасность. Печи из кирпича, благодаря особенностям конструкции, полностью соответствуют требованиям.
- Экологичность. Выкладывают каменки из кирпича, а растапливают ее дровами. Все материалы безопасны для здоровья человека.
- Дизайн. Благодаря оформлению, некоторые печи — настоящее произведение искусства.

Недостатки кирпичной печи:
- Уход. Необходимо постоянно чистить зольник и как минимум раз в год – дымоход.
- Возведение. Кладка печи – сложный процесс, который под силу только грамотному печнику.
- Габариты. Каменка большого размера заберет много полезной площади парилки.

Маленькая печь для бани своими руками. Из кирпича
Из кирпича с баком для воды
Добротная и простая «холодная» печь для бани конструктивно выглядит так: топочная камера выполняется из огнеупорного кирпича, под ней располагается зольник. Сверху для сохранения жара раскладываются булыжники на стальную или чугунную решетку. Их массу рассчитывают из соотношения: на 1 м3парилки требуется 20–30 кг камней. Эта пропорция верна для непрерывно работающих устройств. Если нагрев происходит периодически, то есть после прогрева помещения до нужного уровня ее гасят, тогда количество надо увеличить еще в 2 раза. Иногда для лучшего удержания тепла добавляют чугунные чушки в соотношении 20% на 80% камня.
Сами стены, помимо кирпича, можно выполнить из обычного или бутового камня. Порой для строительства берут гранит или голыш. Вес каждого элемента – от 1 до 5 кг. Не пытайтесь строить из кремния – от нагревания тот просто лопнет.
В качестве связующего раствора при кладке каменки можно использовать только глину с песком. Обычный цементный раствор не выдержит высоких температур и не прослужит и года.
Глиняный раствор
Глина замачивается в воде на несколько суток и смешивается с просеянным песком до консистенции густой сметаны. Песок предпочтительнее брать не речной, а горный. Его грани неровные, нешлифованные и обеспечивают лучшее сцепление.
Печь из обожженного кирпича с камнями весит немало, поэтому под нее придется делать фундамент. Для этого достаточно котлована глубиной 70 см.
На дно засыпают 15 см песка и щебень. Затем все заливается слоем бетона , желательно с армированием. Сверху застывший фундамент закрывают рулонами рубероида для гидроизоляции.
Кирпичная печь на прочном фундаменте
Отметим некоторые моменты:
- Угол бани, где устанавливается печь, должен быть теплоизолирован и укреплен. Помимо опасности возгорания, в нем будет наблюдаться большой перепад температур, который способен привести к появлению трещин в стенах.
- Первый ряд укладывается на рубероидную подложку без раствора, насухо.
- Остальные блоки при работе смачиваются водой, каждый новый ряд укладывается с перевязкой (со смещением относительно предыдущего).
- Нужно следить за тем, чтобы стороны кирпичей, обращенные внутрь топочной камеры, были целыми, без сколов и трещин. Стенка здесь должна быть как можно более гладкой, поскольку любая выбоина провоцирует разрушение сооружения. В то же время нельзя обмазывать внутренние поверхности глиной — высохнув, она начнет отслаиваться и засорять дымоход ,
- После завершения кладочных работ, печку надо просушить. Для этого либо ее оставляют на 15 дней при хорошем притоке воздуха, либо несколько раз протапливают в щадящем режиме.
Кирпичная печь для бани с закрытой каменкой и баком для воды. Печь из кирпича с закрытым типом каменки, дополненная баком под горячую воду
Такая модель — оптимальный вариант для частной бани большой по площади. Она рассчитана на поочередное проведение банных процедур нескольких семей.

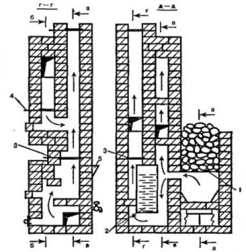
Кирпичная печь с закрытой каменкой и боковым размещением бака для воды: 1 — водогрейный бак; 2 — печь; 3 — дымовая труба; 4 — камни; 5 — крышка каменки; 6 — отверстие для подачи воды; 7 — металлический свод; 8— экран; 9— колосниковая решетка; 10— дверка топки; 11 — дверка поддувала.
Количество необходимых камней для печки подсчитывают по формуле . на 1 куб. м парного помещения потребуется около 30 кг булыжников. Получается, для парной, объем которой 10 куб. м, понадобится не меньше 300 кг камней. Этот подсчет действует для печи из кирпича с периодическим циклом работы. Если же модель базируется на постоянном поддержании процесса горения, то масса камней уменьшается почти в 2 раза. Это объясняется тем, что процесс горения дров поддерживает тепло камней.
Рассмотрим вариант надежного, теплоемкого сооружения – кирпичной печи с каменкой закрытого типа. Для изготовления корпуса печи берется кусок от металлической трубы, полученный путем разрезания вдоль. Параметры трубы следующие: диаметр равен 40 см, длина – 60 см. Печная конструкция дополнена резервуаром для получения горячей воды, размещенным в боковой части сооружения.
Листы из стали навариваются на трубу. Сталь толщиною не меньше 5 мм. Эти листы выполняют опорную функцию при закладывании куска трубы внутрь печной кладки. Для обеспечения герметичности корпуса к торцу трубы с обеих сторон привариваются листы из металла. В месте примыкания дымохода к печному корпусу наваривается экран, выполненный из металла. Он будет предотвращать выход горячего воздуха через дымовую трубу.
С боковой стороны в печь с закрытой каменкой монтируется резервуар под горячую воду. Его параметры — 50 х 37 х 35 см, вместимость – 45 л. Для изготовления бака можно взять сталь толщиною от 5 до 10 мм, но обязательно сторону, соприкасающуюся с топкой выполнить из 10 мм стального листа.
Внутри печи для русской бани с закрытой каменкой сбоку монтируют трубу для дымохода, снабженную круглой заслонкой. Эта труба одним концом устанавливается на металлический бак, в кирпичной же кладке она фиксируется с помощью проволочных хомутов.
Вверху печной конструкции располагается каменка для бани, в которой размещают камни весом до 200 кг. Для каменки вверху предусматривается наличие крышки из оцинкованной жести. Ее можно приоткрывать, выпуская пар. Сбоку печи выполняется проем 20х25 см, в него плескается вода на камни для образования пара.
Предложенная модель печного оборудования универсальна: она может функционировать в режиме непрерывной топки, а также и периодического действия. Когда печь с закрытой каменкой работает в условиях постоянной закладки дров, то масса камней уменьшается вдвое.
Как сложить печь в бане из кирпича. Как сложить печь для бани из кирпича
Невзирая на многообразие дровяных отопителей для бани из металла и чугуна, предлагаемых на рынке, традиционная конструкция печи из кирпича остается актуальной и востребованной. Это неудивительно, ведь она хорошо прогревает парную, долго сохраняет тепло и обеспечивает ее сухим паром. Также кирпичная печка помимо парилки может обогревать и 2—3 смежных помещения (моечную, предбанник). В данной статье мы расскажем, как правильно сложить печь для бани из кирпича своими руками, поделимся опытом в части подготовительных работ и устройства фундамента.
Виды печей для бань
В первую очередь нужно подобрать подходящий готовый проект печи. Опытные печные мастера умеют разрабатывать собственные схемы применительно к условиям кладки и эксплуатации. Значит, нужно воспользоваться их опытом и взять готовую схему, а для этого надо понимать, какие существуют кирпичные печи для бани.

Четко классифицировать отопители по видам весьма затруднительно, их слишком много, но условно все разработки можно разделить на группы по таким критериям:
- способ передачи тепла в помещение;
- расположение каменки;
- способ подогрева воды.
Эффективность теплоотдачи во многом зависит от конструкции и принципа действия отопителя. По данному критерию существующие виды печей можно поделить на:
- канальные: название явствует о том, что печка имеет один или множество каналов (газоходов) для дымовых газов. Последние, проходя по этим каналам, отдают тепло кирпичным стенкам. Газоходы могут проходить в теле печи как вертикально, так и горизонтально;
- колпаковые печи И. В. Кузнецова: здесь принцип теплоотдачи иной, продукты горения отдают теплоту, скапливаясь в пространстве под специально сделанным колпаком. Причем выйти оттуда они могут только после остывания, поэтому печь выходит очень теплоемкой.
Совет. Колпаковые печи весьма сложны в исполнении, домашнему мастеру без опыта построить такой вряд ли удастся. Поэтому новичку лучше начинать осваивать кладку кирпичных печей канального типа.
Засыпка из камней (каменка) может располагаться как внутри печи, так и быть открытой. На качество работы этот критерий особо не влияет. А вот способ подогрева воды может повлиять на длительность протапливания парной. Здесь существуют такие технические решения:
- регистр из стальных труб или бак из нержавейки, встроенный в тело печи, а точнее, в газоход;
- варочная плита: вода подогревается на ней в больших емкостях.
Нужно учесть, что хорошая печка из кирпича с варочной плитой хоть и прогреет парилку быстрее, но неудобства с горячей водой в кастрюлях не сравнить с проточным теплообменником внутри газохода, соединенным с накопительным баком.
Проекты печей для бань
Как уже говорилось, различных проектов кирпичных печей существует великое множество. Мы предложим несколько типовых схем, вы можете воспользоваться ними либо найти что-то подходящее в технической литературе. Итак, первая — схема печи для бани из кирпича с открытой каменкой и встроенным баком для нагрева воды:



Примечание. На этой схеме и в дальнейшем используются следующие условные обозначения:

Для возведения данной печи понадобится 415 шт. кирпича и такие комплектующие, как:
- дверца топки 210 х 250 мм и поддувала – 140 х 140 мм;
- дверки для прочистки 140 х 70 мм – 2 шт.;
- бак из нержавейки 200 х 300 х 490 мм;
- плита чугунная 410 х 410 мм;
- решетка колосниковая 175 х 255 мм;
- задвижка 120 х 230 мм и 2 задвижки 130 х 130 мм.
На следующей схеме показана порядовка банной печи:



Печь-каменка с греющей плитой
Данный отопитель для бани вместо встроенного бака оборудован плитой на 2 конфорки, а каменка находится в теле печи, прямо над топкой. Хотя конструкция предусматривает возможность установки внутреннего водогрейного котла, это отображают соответствующие схемы кладки печей для бань:


На строительство отопителя потребуется 650 кирпичей, а также печная фурнитура:
- дверца топки 210 х 250 мм и поддувала – 140 х 140 мм;
- дверки для прочистки 140 х 70 мм – 4 шт.;
- плита чугунная 410 х 710 мм;
- решетка колосниковая 175 х 255 мм;
- круг стальной Ø20 мм – 3 м;
- бак для воды из нержавеющей стали 220 х 380 х 630 мм – при необходимости.
В этом варианте порядовка кладки для печей выглядит следующим образом:

Банная печь с нижним прогревом
Это небольшая кирпичная печка, в силу особенностей конструкции требующая хорошего фундамента. По сути, на его устройство уйдет больше времени, чем на выполнение самой кладки. Вот схема отопителя в разрезе:

Помимо 260 шт. кирпичей на строительство еще понадобится:
- дверца топки 210 х 250 мм и поддувала – 140 х 140 мм;
- дверки для прочистки 140 х 140 мм – 2 шт.;
- дверцы камеры для камней 210 х 250 мм – 2 шт.;
- плита чугунная 410 х 410 мм;
- решетка колосниковая 175 х 255 мм;
- задвижки 130 х 240 мм и 130 х 130 мм.

