Лучшие печи для бани с закрытой каменкой. Требования к печам для русской бани
Лучшие печи для бани с закрытой каменкой. Требования к печам для русской бани
Вот мы и подошли к тому, что есть несколько взаимосвязанных требований, которым должны соответствовать агрегаты для русской бани . Требований всего три, но если хоть одно из них не исполняется, то кондиции соблюсти будет трудно, если вообще возможно.
Вот они:
- закрытая каменка:
- кирпичный или каменный саркофаг с продухами (полностью закрытая кирпичом печка);
- дверцы или заслонки на продухах, с помощью которых регулируется конвекция.
На практике это будет значить вот что: кожух защищает парную от перегрева , пока внутри печки камни раскаляются до нужной температуры.
Если нужно быстро нагнать градус — открываются продухи . Если нужно создать «паровой пирог» под потолком, продухи закрываются.
В закрытом коробе каменки у камней нет контакта с воздухом , значит, они не отдают ему тепло, сохраняя в себе. В открытой каменке вы не сможете нагреть верхние камни до температуры выше 200 градусов .
На заметку! Печь из чугуна тем более стоит обкладывать камнем или кирпичом, что металл этот не шибко любит сильные перепады температур. Кожух защитит нагретый чугун от лишних «стрессов». Кстати, именно поэтому многие производители чугунных печек каменки делают из стали — они быстрее прогреваются и не лопаются от воды. Лучше всего — каменки из нержавейки . Какие печи лучше каждый решит самостоятельно, ознакомившись с информацией, представленной в отдельной статье . Некоторые клиенты предпочитают выбирать электрические печки .
Печь для бани с закрытой каменкой чертеж. Чертежи самодельных банных печей из металла
Эта печь разработана для парной 2*3*2,3 м. Варилась из листового металла толщиной 3 мм.

Печь из металла для бани с закрытой каменкой
Для активизации горения предусмотрено подключение дополнительного воздуховода, проложенного с улицы. Из других решений — ребра жесткости (уголки) приваренные к бокам топки в верхней части топки для того, чтобы при сильном нагреве металл не выгибало.
Следующая схема металлической печи для бани сделана с подачей воздуха в верхнюю часть топки. Это так называемые печи с дожиганием газов. На задней стене приварена пластина из металла. В щель между этой пластиной и задней стенкой топки при помощи трубок-воздуховодов подается воздух из-под колосников. Это нехитрое, вроде, устройство решает сразу две задачи. Во-первых, охлаждает заднюю стенку, снижая вероятность ее прогорания. Во-вторых, воздух подается в верхнюю часть разогретым. Там сосредоточены разогретые до высоких температур дымовые газы, большая часть которых горючая (до 80%). Когда эти газы смешиваются с подогретым воздухом, горючие вещества воспламеняются, температура в верхней части топки становится еще выше, камни нагреваются до более высоких температур. При этом (при использовании сухих дров) топлива требуется намного меньше. На этом принципе построены многие печи длительного горения, но в банных печах он стал использоваться недавно.

Печь с подачей вторичного воздуха
Примерно та же модель, но без дожига, выполнена в другом формате. Тут размеры не указаны, зато проще понять пропорции и расположение различных элементов.

Объемная модель самодельной печи-каменки из металла
В данном случае объем топки составляет около 130% от объема каменки. Нормальное соотношение. Дымоход смещен назад, что не всегда хорошо — могут возникнуть сложности при устройстве дымохода — он может упереться в потолочную балку — придется дымоход изгибать, что нежелательно. Так что насчет расположения трубы — подумайте.
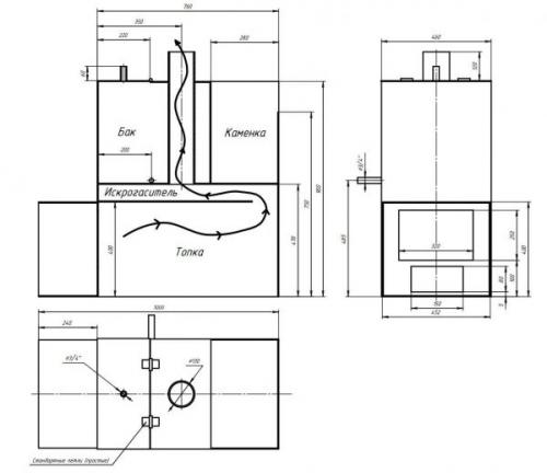
Еще в среде любителей бани постоянно ведутся споры: бак для нагрева воды в парилке — это хорошо или плохо… Одни регулируют влажность открывая/закрывая крышку бака. Их такой вариант устраивает. Другие говорят, что этот пар «тяжелый», и выносят бак в моечное отделение, а воду в нем греют, встроив в топку теплообменник и соединив его с баком трубами. Следующая схема — печь в баню из металла с баком для воды.

Чертеж печи для бани с баком для воды
Конструкция грамотная — при помощи «искрогасителя» путь прохождения дымовых газов длиннее, дольше он остается в топке, лучше нагревает стенки. Если вы не хотите бак, на его место можно уложить камни.
Интересный вариант с баком, который находится в задней части печи. Дымоход сдвинут назад, и проходит через бак. Высота бака большая, теплосъем будет эффективным — температура дымохода на выходе из бака большой не будет точно.

Вариант небольшой печи с большим баком
Интересно устроена каменка. Она не очень большая, но для небольших и средних парилок ее объема хватит. Закрывается она крышкой, что с одной стороны не очень удобно: закрывать крышку после подачи воды на камни будет проблематично. С другой стороны, это удобно в обслуживании.
