Как сложить печь для бани. Кладочный раствор
Как сложить печь для бани. Кладочный раствор
Но для решения вопроса, как сложить печь своими руками, одного кирпича недостаточно. Потребуется еще и раствор.
Кладочный раствор для любой печи лучше всего было бы приготовить из глины того же месторождения, из которого изготовлен кирпич. Тогда коэффициенты температурного расширения кирпича и кладочного шва будут одинаковы. А если одинаково тепловое расширение, то и долговечность кладки будет намного выше. Но в наше индустриальное время найти ту же глину с того же месторождения не очень реально. Чем тоньше кладочный шов, тем выше качество кладки и более прочная и долговечная печь. Поэтому толщина шва должна быть максимум 5 миллиметров и ещё тоньше. При тонком шве потребуется глины примерно 10-12% от объёма кирпича.
Для решения вопроса, как сложить печь грамотно, нужно правильно выбрать песок и глину.
- Песок должен быть чистый речной, но без речного ила.
- Мелкозернистый , то есть зерно примерно 1 миллиметр. Допускается размер до полутора миллиметров, но всё-таки нежелательно.
- Перед приготовлением раствора песок просеивается через сито с ячейками 1,5 миллиметра.
Качество глины
Глину надо уложить в ёмкость, измельчить и постепенно залить водой, при этом тщательно перемешать. Оставить в залитом водой состоянии примерно на сутки. Уровень воды должен быть выше глины. На следующий день глиняный раствор процедить сквозь сито, если есть комки, то их надо растереть и протереть через сито. Процесс повторяем, пока не наберём нужное количество пастообразной глины. Затем в глину добавляем песок. Количество песка зависит от жирности глины.
- Тощий раствор выкрашивается из швов, не даёт достаточной связки кирпичам, прочности и плотности кладки в целом.
- Слишком жирный раствор при высыхании усаживается и трескается. И тоже не даёт нужного качества кладки.
- Уменьшают жирность глины, добавляя песок.
- Объём песка должен быть от ½ до 3/2 от объёма глины.
Опытный печник на ощупь пальцами и «на глазок» сможет оценить качество раствора и глины, а также подсыпать нужное количество песка, он знает, как сложить печь в баню. Некоторые авторы описывают всякие «шаманские» способы. Например, толщина слоя или скорость стекания со строганной деревянной дощечки. Но это всё очень субъективно. Ведь кто знает, что такое толсто, а что тонко? Что такое быстрое стекание, а что такое медленное стекание?
Оценка жирности глины и качества кладочного раствора
Для «чайника» есть несколько способов оценки жирности глины. Приведем два способа, которые представляются наиболее объективными, потому что в них есть цифровые показатели, которые можно измерить. Придётся провести лабораторную работу на тему, как самому сложить печь в бане и определить качество глины. Взять примерно пол-литра глины, добавить воды и месить руками до консистенции крутого теста. Должна впитаться вся вода, и глина должна перестать прилипать к рукам. Способ первый
- Из глины скатывают руками шарик диаметром примерно 5 сантиметров.
- Шарик кладут на строганную деревянную дощечку.
- Вторую дощечку кладут сверху и аккуратно и медленно нажимают на неё, пока на глиняном шарике не появятся видимые трещины.
Выводы:
- Если шарик рассыпался до появления трещин, то значит, глина очень тощая, и раствор неправильный.
- Если трещины появились на 1/3 диаметра , то глиняный раствор нормальный.
- Если трещины появились на ½ диаметра , то глина очень жирная и надо добавить песка в раствор
Способ второй
- Из глиняного теста скатывают руками два шарика диаметром примерно 5 сантиметров.
- Из одного из шариков раскатывают лепёшку диаметром примерно 10 сантиметров.
- Шарик и лепёшку сушат в тени примерно 2–3 дня.
Выводы:
- Если шарик и лепёшка за это время покрылись трещинами , то значит, глиняный раствор слишком жирный.
Маленькая печь для бани из кирпича. Преимущества и недостатки
Печки из кирпича не зря пользуются такой большой популярностью, но они при этом они имеют свои преимущества и недостатки, вот некоторые из них:
- Выложенная своими руками печь отлично компонирует практически с любым интерьером бани, будь-то дерево, газобетон или кирпич;
- При нагревании создаётся густой и нежный пар, который положительно влияет на здоровье и общее самочувствие человека, ведь в бане Вы отдыхаете не только телом, но и душой;
- Внешне кирпич выглядит вполне изящно, поэтому в дополнительных отделочных работах (штукатурка или облицовка) нет никакой нужды;
- Абсолютная экологичность материала – при нагревании до высоких температур в воздух не выделяются опасные химические вещества;
Печь своими руками из кирпича более долговечны, нежели металлические аналоги
Печь своими руками из кирпича более долговечны, нежели металлические аналоги
Печь при должном уходе будет служить Вам долгие годы;
- Кирпич, который используют при их сооружении, является своеобразным аккумулятором тепла, так как способен долго сохранять высокую температуру внутри парилки;
- В кирпичных печах отсутствует конденсат, так как данный материал играет роль регулятора влаги;
- Если в процессе кладки были допущены технологические ошибки, то печь может слишком долго нагреваться и плохо удерживать температуру, при этом дров или другого топлива придётся использовать больше. Помните, что при сооружении экспериментальных вариаций лучше обратиться к специалистам;
- Для топки можно использовать сырьё, которое легко найти на строительном рынке или собрать самому (ветки, палочки, сухой мох и так далее);
- Вся конструкция (с учётом дымохода) довольно таки громоздкая. Поэтому, если Вы владелец небольшой баньки, придётся либо пожертвовать дорогостоящими квадратными метрами, либо купить металлический аналог меньшего размера;
- В отличие от металлической топки, дымоход каменной не требует ежемесячной очистки (при частом использовании).
Простая печь для бани из кирпича. Преимущества и недостатки кирпичной печи для бани
1. Первое яркое отличие кирпичной печи от металлической – это необходимость ее самостоятельного возведения (даже если чужими руками). Отсюда же и такое разное отношение к печам: в первую необходимо вложить душу, а вторую достаточно приобрести и установить.
2. Возведение кирпичной печи – очень ответственное дело, и требует не малого профессионализма от печника. Не имея, как минимум, четких представлений и технологических инструкций, и, как максимум, опыта в возведении подобных обогревательных приборов можно выложить «чудо» печь, которая просто «не захочет» правильно работать. Этот факт и «возводит» кирпичную печь в объекты гордости хозяина, хотя многие относятся к этому, как к отрицательному свойству печи.
3. Правильно сложенная печь прогревается достаточно быстро, и сохраняет довольно долго тепло, т.е. кирпичная печь по своей сути является тепловым аккумулятором. При этом бытует ошибочное мнение, что в первый час потки печи, особого тепла от нее не получишь. Для получения быстрого тепла в помещение используют разные конструкционные хитрости, к примеру: металлическая духовка или плита. При этом печь выполняет функцию своего рода естественного регулятора влажности в помещении, за счет чего образование конденсата на стенах – крайне редкое явление.
4. Но некачественно сложенная печь будет очень плохо гореть или будет сильно «прожорливой» при низкой отдаче и аккумуляции тепла. Поэтому экспериментальные конструкции печи допустимо возводить только имеющим опыт печникам, а для «новоиспеченных» - только проверенные конструкции.
5. Технологические преимущества кирпичных печей – доступность материалов с возможностью применения местного «сырья». Но вот массивность конструкции можно отнести к минусу, хотя именно из-за большого объема прогретого материала она долго удерживает тепло.
6. Простота в обслуживании и довольно высокий КПД дают возможность проводить ТО всего несколько раз в год, когда для металлических печей часто требуется ежемесячная чистка дымоходов. При этом в кирпичных печах можно использовать абсолютно любое топливо, начиная от дров, и заканчивая пламенным углем, что в большинстве случаев с металлическими печами просто недопустимо из-за повышенной (ускоренной) «выработки» конструкции.
Как сложить печь для бани из кирпича
Невзирая на многообразие дровяных отопителей для бани из металла и чугуна, предлагаемых на рынке, традиционная конструкция печи из кирпича остается актуальной и востребованной. Это неудивительно, ведь она хорошо прогревает парную, долго сохраняет тепло и обеспечивает ее сухим паром. Также кирпичная печка помимо парилки может обогревать и 2—3 смежных помещения (моечную, предбанник). В данной статье мы расскажем, как правильно сложить печь для бани из кирпича своими руками, поделимся опытом в части подготовительных работ и устройства фундамента.
Виды печей для бань
В первую очередь нужно подобрать подходящий готовый проект печи. Опытные печные мастера умеют разрабатывать собственные схемы применительно к условиям кладки и эксплуатации. Значит, нужно воспользоваться их опытом и взять готовую схему, а для этого надо понимать, какие существуют кирпичные печи для бани.

Четко классифицировать отопители по видам весьма затруднительно, их слишком много, но условно все разработки можно разделить на группы по таким критериям:
- способ передачи тепла в помещение;
- расположение каменки;
- способ подогрева воды.
Эффективность теплоотдачи во многом зависит от конструкции и принципа действия отопителя. По данному критерию существующие виды печей можно поделить на:
- канальные: название явствует о том, что печка имеет один или множество каналов (газоходов) для дымовых газов. Последние, проходя по этим каналам, отдают тепло кирпичным стенкам. Газоходы могут проходить в теле печи как вертикально, так и горизонтально;
- колпаковые печи И. В. Кузнецова: здесь принцип теплоотдачи иной, продукты горения отдают теплоту, скапливаясь в пространстве под специально сделанным колпаком. Причем выйти оттуда они могут только после остывания, поэтому печь выходит очень теплоемкой.
Совет. Колпаковые печи весьма сложны в исполнении, домашнему мастеру без опыта построить такой вряд ли удастся. Поэтому новичку лучше начинать осваивать кладку кирпичных печей канального типа.
Засыпка из камней (каменка) может располагаться как внутри печи, так и быть открытой. На качество работы этот критерий особо не влияет. А вот способ подогрева воды может повлиять на длительность протапливания парной. Здесь существуют такие технические решения:
- регистр из стальных труб или бак из нержавейки, встроенный в тело печи, а точнее, в газоход;
- варочная плита: вода подогревается на ней в больших емкостях.
Нужно учесть, что хорошая печка из кирпича с варочной плитой хоть и прогреет парилку быстрее, но неудобства с горячей водой в кастрюлях не сравнить с проточным теплообменником внутри газохода, соединенным с накопительным баком.
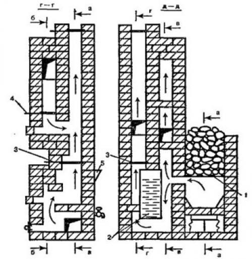
Проекты печей для бань
Как уже говорилось, различных проектов кирпичных печей существует великое множество. Мы предложим несколько типовых схем, вы можете воспользоваться ними либо найти что-то подходящее в технической литературе. Итак, первая — схема печи для бани из кирпича с открытой каменкой и встроенным баком для нагрева воды:



Примечание. На этой схеме и в дальнейшем используются следующие условные обозначения:

Для возведения данной печи понадобится 415 шт. кирпича и такие комплектующие, как:
- дверца топки 210 х 250 мм и поддувала – 140 х 140 мм;
- дверки для прочистки 140 х 70 мм – 2 шт.;
- бак из нержавейки 200 х 300 х 490 мм;
- плита чугунная 410 х 410 мм;
- решетка колосниковая 175 х 255 мм;
- задвижка 120 х 230 мм и 2 задвижки 130 х 130 мм.
На следующей схеме показана порядовка банной печи:



Печь-каменка с греющей плитой
Данный отопитель для бани вместо встроенного бака оборудован плитой на 2 конфорки, а каменка находится в теле печи, прямо над топкой. Хотя конструкция предусматривает возможность установки внутреннего водогрейного котла, это отображают соответствующие схемы кладки печей для бань:


На строительство отопителя потребуется 650 кирпичей, а также печная фурнитура:
- дверца топки 210 х 250 мм и поддувала – 140 х 140 мм;
- дверки для прочистки 140 х 70 мм – 4 шт.;
- плита чугунная 410 х 710 мм;
- решетка колосниковая 175 х 255 мм;
- круг стальной Ø20 мм – 3 м;
- бак для воды из нержавеющей стали 220 х 380 х 630 мм – при необходимости.




 
                 
                 
                 
                 
                 
                 
                 
                 
                 
                 
                