Как сделать чугунную печь для бани с закрытой каменкой. Устройство чугунной печи для бани
- Как сделать чугунную печь для бани с закрытой каменкой. Устройство чугунной печи для бани
- Металлическая печь для бани с закрытой каменкой. Виды печи для бани с закрытым типом каменки
- Печи гефест с закрытой каменкой. Отличительные особенности
- Печь для бани с закрытой каменкой чертеж. Чертежи самодельных банных печей из металла
Как сделать чугунную печь для бани с закрытой каменкой. Устройство чугунной печи для бани
Вне сомнения, чугунная печь обладает рядом преимуществ перед стальной конструкцией, но современная чугунная печь для бани, чаще всего, имеет примерно половину узлов и деталей из чугуна, остальное изготавливается из легированных сталей, латуни или даже меди. Например:
- Из качественного чугуна всегда изготовлен корпус печи и жаровые элементы топки, каналы обтекания продуктами горения каменки;
- Из нержавейки делают коробку каменки, бак для воды, пламярассекатели и стабилизаторы потоков воздуха, отдельные элементы топки, в том числе тоннели и защитные экраны;
- Из латуни изготавливают краны, клапаны и крепление под установку.
К сведению! Само устройство чугунной печи для бани, в принципе, не отличается от аналогичной стальной конструкции, кроме одной особенности. Вес чугунной печи для бани в два-три раза превышает стальные аналоги, что делает ее установку более трудоемкой.
Причина проста. Отечественные литейщики не умеют изготавливать чугунные отливки с толщиной стенки менее 8 мм. Получить качественную и прочную чугунную корпусную деталь намного сложнее, чем сварить ее из стального профиля. Кроме того, российское литье для чугунных печей страдает огромным количеством дефектов, «непроваров», раковин и шлаковых включений.
Не исключено, что даже дорогая российская продукция может треснуть или расколоть крепление еще на этапе транспортировки и установки. Импортные варианты для бани также требуют осторожности при установке, но служат в разы дольше.
Металлическая печь для бани с закрытой каменкой. Виды печи для бани с закрытым типом каменки
Для отопления бани используют 2 вида печи с закрытой каменкой:
- устройство, предназначенное для периодической топки;
- ежедневное использование конструкции.
Если печь с закрытой каменкой эксплуатируется периодически, то камни нагреваются от прямого прохода через них дыма и касания языков огня. При этом сажа не задерживается на каменной поверхности, а сгорает при высокой температуре. Нижний слой накаляется до 1000°С, а нагрев верхнего варьируется в пределах 400-600°С.
Не всякий камень пригоден для использования в печи каменке. Необходимое условие — он должен выносить высокую температуру разогрева и не трескаться от резкого температурного колебания при попадании на него воды. Такими качествами обладают вулканические породы, к которым относится гранит, базальт, андезит.

При постройке устройства своими руками допускается использовать речную гальку темного цвета, которая обладает высокой прочностью. Подходящий размер материала — с мужской кулак. Приоритетна круглая или овальная форма с гладкой поверхностью, чтобы дым не задерживался в неровных углублениях. Для кубического метра банного пространства требуется
В устройство постоянного использования входит поддувало, топочная камера, кладка камней и дымоход. Стенки печи двойные, между ними циркулирует воздух. Делают печь из листовой огнеупорной стали, толщиной не менее 4 мм. Здесь не достигается температура, требуемая для сгорания сажи, поэтому камни отделены от топки металлической плитой. Температура в помещении поддерживается за счет нагрева металлического кожуха при сжигании топлива в печи.
В местах, где проведено централизованное снабжение газом, делают газовую каменку с автоматическим подключением. Вид печи подходит для обширных помещений, площадь которых более 25 кв. метров.
Хорошим вариантом считается печь на электрическом обогреве. Отсутствие угарного газа при эксплуатации каменки является большим плюсом.
Печи гефест с закрытой каменкой. Отличительные особенности
Gefest – это отечественный производитель теплового и климатического оборудования, встраиваемой техники . Для изготовления чугунных печей компания использует особую технологию литья.
Так они получают отличную теплопроводимость. Продукция фирмы – это единственные банные агрегаты, которые полностью производятся в России. Поэтому над каждым этапом производства осуществляется тщательный контроль.
Гефест производит печи для бани и сауны.
Их выпускают в таких видах :
- с сеткой для укладки камня;
- для облицовки кирпичом;
- облицованные змеевиком.
Также модели различаются по объёму обогреваемого помещения: до 45 куб. метров и от 45 до 120 куб. метров .
Печь может быть с чугунной заслонкой или дверцей из специального жаропрочного стекла. В это «окошко» можно наблюдать за процессом горения и любоваться пламенем.
Печи оснащены пламегасителем и системой вторичного дожига газов . Они позволяют поддерживать температуру камней на уровне 500–700 градусов. Поэтому пар получается мелкодисперсным – он очень лёгкий, приятный и полезный для здоровья. Также на банном обогревателе можно установить режим тления.
За счёт того, что горячий воздух остаётся внутри, в парной долго сохраняется высокая температура.
У всех моделей высокий коофициент полезного действия – 87% . Такой процент достигается за счёт особой конструкции. Топочный агрегат имеет две камеры, разделённые пламегасителем.
Газы горящего топлива сначала двигаются вдоль боковых стенок, а потом поверчивают на 180 градусов и двигаются к выходу, двигаясь вдоль углублений каменки.
ОСТОРОЖНО!
Агрегаты работают на доступном твёрдом топливе – дровах или специальных брикетах. Не рекомендуется жечь в них уголь и делать печь утилизатором для различного мусора.
Товары Gefest доставляются в разобранном виде . В комплекте есть герметик Их можно установить самостоятельно или с помощью профессионалов.
Материал – чугун марки СЧ20-25 ЧХ10 . Толщина стенок – от одного до шести сантиметров. Чем чугунные печи отличаются от стальных или кирпичных? Чугун – это экологически чистый и нетоксичный материал. Он не боится окисления и коррозии. Сплав не деформируется при нагревании и сохраняет прочность.
В комплекте идут дополнительные детали . С их помощью расстояние от топки до портала можно увеличить.
Особо стоит сказать о дизайне печей. Они спишутся как в интерьер бревенчатой баньки, так и классической сауны. Дверцы украшены литьём. Модели для облицовки кирпичом можно украсить керамической плиткой.

Печь для бани с закрытой каменкой чертеж. Чертежи самодельных банных печей из металла
Эта печь разработана для парной 2*3*2,3 м. Варилась из листового металла толщиной 3 мм.

Печь из металла для бани с закрытой каменкой
Для активизации горения предусмотрено подключение дополнительного воздуховода, проложенного с улицы. Из других решений — ребра жесткости (уголки) приваренные к бокам топки в верхней части топки для того, чтобы при сильном нагреве металл не выгибало.
Следующая схема металлической печи для бани сделана с подачей воздуха в верхнюю часть топки. Это так называемые печи с дожиганием газов. На задней стене приварена пластина из металла. В щель между этой пластиной и задней стенкой топки при помощи трубок-воздуховодов подается воздух из-под колосников. Это нехитрое, вроде, устройство решает сразу две задачи. Во-первых, охлаждает заднюю стенку, снижая вероятность ее прогорания. Во-вторых, воздух подается в верхнюю часть разогретым. Там сосредоточены разогретые до высоких температур дымовые газы, большая часть которых горючая (до 80%). Когда эти газы смешиваются с подогретым воздухом, горючие вещества воспламеняются, температура в верхней части топки становится еще выше, камни нагреваются до более высоких температур. При этом (при использовании сухих дров) топлива требуется намного меньше. На этом принципе построены многие печи длительного горения, но в банных печах он стал использоваться недавно.

Печь с подачей вторичного воздуха
Примерно та же модель, но без дожига, выполнена в другом формате. Тут размеры не указаны, зато проще понять пропорции и расположение различных элементов.

Объемная модель самодельной печи-каменки из металла
В данном случае объем топки составляет около 130% от объема каменки. Нормальное соотношение. Дымоход смещен назад, что не всегда хорошо — могут возникнуть сложности при устройстве дымохода — он может упереться в потолочную балку — придется дымоход изгибать, что нежелательно. Так что насчет расположения трубы — подумайте.
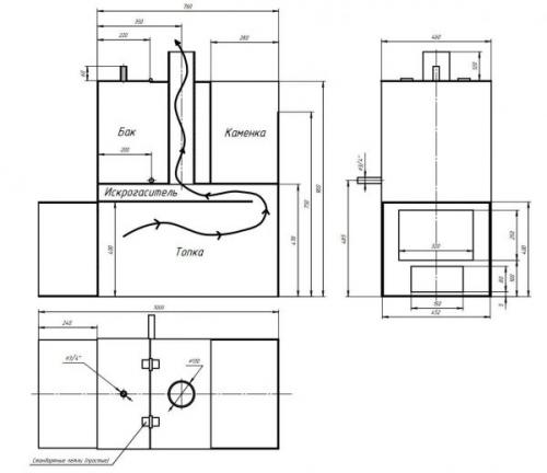
Еще в среде любителей бани постоянно ведутся споры: бак для нагрева воды в парилке — это хорошо или плохо… Одни регулируют влажность открывая/закрывая крышку бака. Их такой вариант устраивает. Другие говорят, что этот пар «тяжелый», и выносят бак в моечное отделение, а воду в нем греют, встроив в топку теплообменник и соединив его с баком трубами. Следующая схема — печь в баню из металла с баком для воды.

Чертеж печи для бани с баком для воды
Конструкция грамотная — при помощи «искрогасителя» путь прохождения дымовых газов длиннее, дольше он остается в топке, лучше нагревает стенки. Если вы не хотите бак, на его место можно уложить камни.
Интересный вариант с баком, который находится в задней части печи. Дымоход сдвинут назад, и проходит через бак. Высота бака большая, теплосъем будет эффективным — температура дымохода на выходе из бака большой не будет точно.

Вариант небольшой печи с большим баком
Интересно устроена каменка. Она не очень большая, но для небольших и средних парилок ее объема хватит. Закрывается она крышкой, что с одной стороны не очень удобно: закрывать крышку после подачи воды на камни будет проблематично. С другой стороны, это удобно в обслуживании.
