Как выбрать бак для воды к печи. Разновидности резервуаров
- Как выбрать бак для воды к печи. Разновидности резервуаров
- Что лучше бак на трубе или теплообменник. Достоинства и недостатки самоварных систем
- Бак для воды на печь. Встроенные баки
- Выносной бак для горячей воды в баню. Бак-самовар против навесного бака. Плюсы и минусы
- Как установить бак для горячей воды в бане. Как установить бак с горячей водой в моечном помещении
- Бак для холодной воды в баню. Каким должен быть бак для воды в баню
- Навесной бак для банной печи. Бак из нержавейки для воды
Как выбрать бак для воды к печи. Разновидности резервуаров
Устанавливаются баки для воды разной конфигурации. Способ нагрева воды также может отличаться. Выбирая емкость, следует учитывать все нюансы.

Предназначение бака для горячей воды в бане
Вместимость
Объем устанавливаемого бака зависит от количества человек, которые одновременно могут находиться в бане и использовать горячую воду. В среднем на каждого следует предусмотреть 10…20 литров кипятка (с небольшим запасом). Сегодня выпускаются резервуары объемом 50…100 л. Как правило, бак вместимостью, превышающей 100 л, устанавливать нецелесообразно.
Форма емкости может быть любой: выпускаются квадратные, прямоугольные, овальные и даже круглые изделия. Но обращать внимание в первую очередь нужно не на это, а на качество сборки бака и гарантию производителя.

Форма емкости может быть любой
Материал
При выборе емкости нужно учитывать, что она должна быть способной выдерживать воздействие высоких температур (до 250 градусов) в течение длительного времени.

Металлический бак для воды в бане
Не стоит пытаться сэкономить и устанавливать баки из черных металлов. Такой подход не может быть оправдан не с точки зрения эстетики, а в основном из практических соображений. От постоянного воздействия высоких температур металл со временем деформируется, на нем появятся следы коррозии . Это значительно снижает эксплуатационный ресурс емкостей и качество воды в них.
- Наиболее распространенный вариант бака – конструкция из нержавеющей стали . Востребованность таких резервуаров объясняется их привлекательным внешним видом, прочностью, стойкостью к различным видам внешних воздействий, высокой скоростью прогрева, способностью долго сохранять тепло, сравнительно малым весом, гигиеничностью, высокой долговечностью и простотой ухода. Конфигурация бака может быть разной. Но стоит качественная нержавеющая сталь немало. И нужно учитывать, что сегодня предлагается много поддельной продукции, которая в скором времени заржавеет.

Бак из нержавеющей стали для бани
- Не так часто, но встречаются баки, выполненные из чугуна . Появление ржавчины им не страшно. Однако нужно учитывать, что, несмотря на то, что вода в таких конструкциях не будет быстро остывать, для ее нагрева требуется больше времени. Из-за громоздкости резервуаров нужно грамотно продумать их местоположение. Сегодня не так много компаний занимаются выпуском чугунных баков, да и стоят они не очень дешево.

Чугунный бак для воды в баню
- Покрытые эмалью емкости можно использовать, но и они не являются оптимальным вариантом . Конечно, такой материал не поддается коррозии и очень гигиеничен. Но низкая стойкость к механическим повреждениям со временем неизбежно приведет к тому, что металл с довольно тонким покрытием покроется сколами (в результате не очень осторожного обращения) и эти участки заржавеют. Устранить проблему уже не получится.

Что лучше бак на трубе или теплообменник. Достоинства и недостатки самоварных систем

Бак для бани на трубе называется самоварным. Он является составной частью колена трубы дымохода. Его расположение очень удобно, гораздо быстрее и равномернее, чем при иных расположениях происходит процесс нагрева воды. Сама конструкция получается очень компактной.
К отрицательным моментам самоварных систем можно отнести то, что не очень удобно происходит заполнение бака водой. Но этот вопрос легко решается, если верхняя часть бака находится на чердаке и к ней подведен водопроводный кран.
Важно. Очень опасно допустить просчеты в проектировании объема емкости, так как можно получить в результате очень частое закипание воды.
Материалом для изготовления самоварных емкостей обычно выбирают нержавеющую сталь. Возможность при применении иных материалов возникновения коррозии со временем губительно для нормальной работы бани, потому решение установить емкость из нержавейки – правильное решение.
Кроме всего прочего, высокая теплопроводность нержавейки гарантирует достаточно быстрый прогрев воды в самоварном баке, а прочность этого материала позволяет не бояться деформирования устройства от температурных перепадов.
Безопасность

Сегодня достаточно легко найти среди массы предложений именно такой сосуд для нагрева воды, какой нужен именно вам. Умельцы, конечно, мастерят их из старых бочек своими руками. Но цена готовых вариантов не так высока, а надежность этих систем и долговечность заставляют многих обращаться к сертифицированным изделиям.
Не стоит забывать, что баня является местом повышенной опасности. В ней надо четко соблюдать меры предосторожности при обращении с горячей водой и с огнем. Если четко выполнять условия, которые предусматривает инструкция по эксплуатации топливного бака, то можно избежать непредвиденных ожогов и травм.
Важно. Необходимо помнить, что категорически запрещается топить печь с пустым баком, так как сварные швы от температуры могут разойтись.
Нельзя также оставлять зимой воду в системе, если баня холодная, так как замерзшая вода способна разорвать емкости.
Бак для воды на печь. Встроенные баки

Самый экономный и удобный вариант. Бак устанавливается в процессе кладки банной печи . Его нижняя часть располагается внутри топки, благодаря чему вода нагревается непосредственно пламенем. Горячую воду набирают через верх ковшиком или при помощи встроенного крана.

Из-за прямого контакта с огнем стенки и дно емкости должны быть как можно толще, поэтому самым предпочтительным материалом для такого бака является чугун толщиной от 5 мм. Не менее популярными считаются баки из нержавейки с толщиной стенок 1 и 1,5 мм. Емкости из эмалированной стали для данного способа монтажа не подходят. Чугунные баки имеют форму чаши, из нержавейки обычно в форме куба или цилиндра.

Преимущества встроенных баков:
- быстро нагревается вода;
- температура воды поддерживается длительное время;
- экономится свободное пространство, поскольку бак не выступает за пределы печки;
- простой монтаж.
Недостатки:
- уменьшается теплоотдача печи, так как основная часть тепла уходит на обогрев воды;
- габариты бака ограничены размерами печи;
- бак должен иметь толстые стенки, что увеличивает его вес и стоимость.

Этот способ удобен в тех случаях, когда в бане парится одновременно не более 4 человек, или люди моются по-отдельности. Например, если в бане по очереди парится 3-4 человека, времени на это требуется достаточно много, соответственно, и поддерживать температуру воды придется дольше, подкидывая дрова. Встроенный бак позволяет сэкономить на топливе, оставаясь горячим очень долго. А вот для больших компаний данный вариант не самый оптимальный, поскольку не обеспечивает нужное количество воды.
Выносной бак для горячей воды в баню. Бак-самовар против навесного бака. Плюсы и минусы
Эти два типа баков для печей отличаются по конструкции, способу и времени нагрева воды. Давайте разбираться, какой вариант подойдет лично вам.
Бак-самовар
Название вас не обмануло, работает такой бак точно по принципу старого доброго жарового самовара. Внутри него проходит труба, по которой поднимаются горячие дымовые газы. Именно от них и нагревается вода.

Рис 1. Бак-самовар LAVA на банной печи
Такой бак устанавливается прямо на печь в качестве стартового элемента дымохода. Разброс по объему среди баков – от 25 до 70 литров. Больше не бывает, т.к. можно "раздавить" печку. Особенно, если она сделана из 2-мм. нержавейки.
Достоинства бака-самовара:
- Быстрый нагрев воды. Если ваш бак имеет объем 25-30 литров, то комфортно помыться с горячей водой температурой в 80оС вы сможете уже через час. При большем объеме, около 55-60 литров, подождать придется чуть дольше – 1,5 часа.
- Простой монтаж , не требующий от вас специальных навыков. Достаточно водрузить бак на печь, промазать стыки труб герметиком – и можно заливать воду!
- Дополнительные материалы, которые вам нужно будет купить для монтажа бака-самовара, стоят совсем недорого. Для отведения воды в мойку через стену хватит 1 метра трубы из нержавейки или меди, пары муфт и крана. Все это удовольствие обойдется вам всего в 1,5-2 тысячи рублей. Например, набор "Баня №1" .
- Высота потолка не имеет особого значения. Горловина для залива воды у «самовара» размещена в верхней части. Выходит, что при высоте банной печи в 70-80 см, горловина будет находиться на комфортной высоте примерно в 1,5 метра. А если высота потолка в вашей парилке – в районе двух метров, то у вас останется еще где-то 50 см. запаса для того, чтобы удобно наполнять бак водой из ведра или шланга.
Как установить бак для горячей воды в бане. Как установить бак с горячей водой в моечном помещении
Если вы строите новую баню и ваши денежные средства позволяют заранее предусмотреть улучшение комфортных условий для всех банных процедур, то постройте парное отделение и моечное помещение отдельно.

Из плана бани видно, что в запланировано 4 помещения: раздевалка, комната отдыха, моечное помещение и парное отделение.
Бак с горячей водой вынесен через смежную стенку в моечное помещение.
Таким образом здесь резко улучшаются условия процесса парения и мытья.
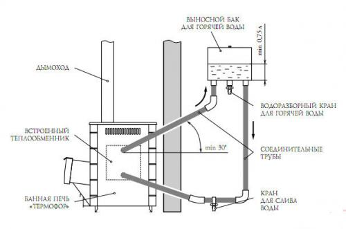
Котлы для бани имеют разное расположение теплообменника: встроенный в конструкцию котла или установленный вокруг дымовой трубы.
Поэтому и присоединение к выносному баку будет немного разным, но похожим.
Рассмотрим их на примере схем.
Как соединить бак с горячей водой и встроенный теплообменник у котла
Соединение бака с горячей водой и теплообменник вокруг дымовой трубы
В обеих схемах в систему водонагрева входят:
- теплообменник с двумя штуцерами;
- выносной бак для горячей воды с двумя штуцерами для присоединения к теплообменнику;
- кран для разбора горячей воды;
- кран для слива воды из системы;
Дно выносного бака горячей воды должно находиться выше уровня верхнего штуцера теплообменника не менее, чем на 30 см.
Трубопровод горячей воды от теплообменника к баку горячей воды не должен провисать и быть сделан с уклоном вверх не менее 30 град.
Если вы опрессовываете систему, то отключите теплообменник.
Уплотните резьбовые соединения сантехническим герметиком ГОСТ 24222-80.
Бак для холодной воды в баню. Каким должен быть бак для воды в баню
Подбирая емкость для установки в помещении парилки, стоит помнить, что будущий баллон придется использовать не просто для хранения горячей воды, воду нужно будет греть до состояния кипятка с помощью печки. Поэтому полиэтиленовые, оцинкованные, луженные оловом или окрашенные эмалью емкости в качестве бака для горячей воды в баню явно не походят.
Кроме того, существует несколько дополнительных требований, предъявляемых к конструкции резервуара:
- Требуется прочный металлический корпус, выдерживающий длительное воздействие температур до 200-250оС. Для наставных моделей или баков самоварного типа для бани часть элементов конструкции лучше всего изготовить из жаростойкой стали;
- Наличие прочного защитного покрытия, в виде минеральной эмали, никеля или слоя термостойкой краски поверхности бака для горячей воды;
- Емкость должна изготавливаться сваркой, вальцовкой или горячей штамповкой. Любым способом, обеспечивающим надежное герметичное соединение стенок и дна емкости в условиях периодического нагревания и охлаждения конструкции.
Совет! Разумеется, лучше всего купить или сварить бак в баню из качественной нержавейки, но в некоторых случаях можно обойтись и обычной конструкционной сталью. Все зависит от особенностей устройства и расположения водогрейки в помещении бани.
При этом не обязательно делать бак для воды на 100 л, или пытаться искать в продаже емкость из самой термостойкой стали. Существует немало конструкций, когда резервуары под кипяток изготавливается объемом до 25 л из обычного черного проката и листа толщиной до 3мм. Нужно только правильно выбрать схему размещения водяного бачка.
Навесной бак для банной печи. Бак из нержавейки для воды
Емкость для нагрева и хранения воды в парилке или в предбаннике можно получить двумя способами:
- Купить в специализированном салоне, реализующем оборудование для бань. Фирменные нержавеющие баки для воды стоят достаточно дорого, в среднем 200-250 долл. Приобретать дешевый ширпотреб, равно как и пытаться делать из китайской нержавейки сомнительного качества, не имеет смысла. Через пару лет вся конструкция из нержавеющей стали прогорает быстрее, чем отечественный легированный и даже черный металл;
- Заказать у мастеров. Качественные баки для воды из нержавейки для бани изготавливаются за 150 долл. в среднем за 5-7 дней. Для мастера потребуется лишь чертеж и размеры, иногда приходится покупать материал или согласовывать марку стали, особенно это важно, если предполагается изготовить самоварный или насадной тип бака для печи.
Третий способ предполагает изготовление баков из нержавейки своими силами. Дело непростое, но вполне по силам человеку, знакомому с работой углекислотного, а лучше аргонового полуавтомата.
К сведению! Традиционно баки для печи в баню из нержавейки собирают сваркой из предварительно раскроенного металла толщиной 1-1,5 мм.

Очень тонкий металл для сварочных работ, потребуется определенная практика и хорошее сварочное оборудование, которое можно легко найти в ближайшей авторемонтной мастерской. Поэтому, до того как будет принято решение, делать бак из нержавейки для бани своими руками или покупать готовый, необходимо реально оценить свои возможности и выбрать конструкцию металлической емкости.



Соединение бака с горячей водой и теплообменник вокруг дымовой трубы