Изготовление крутых поделок из газового баллона своими руками. Что можно сделать из газового баллона своими руками
- Изготовление крутых поделок из газового баллона своими руками. Что можно сделать из газового баллона своими руками
- Мангал из газового баллона 3 в одном. 3 в 1, или Как сделать мангал с коптильней, барбекю и грилем из газовых баллонов
- Мангал из газового баллона с казаном. Покраска
- Мангал из газового баллона чертежи с размерами. Как сделать мангал из газового баллона своими руками
- Мангал из газового баллона минусы. Оптимальный размер мангала: выполнение разметки
- Мангал из газового баллона размеры. Особенности мангала, изготовленного на основе газового баллона: преимущества и недостатки
- Мангал из газового баллона с трубой. Монтаж опор для мангала
Изготовление крутых поделок из газового баллона своими руками. Что можно сделать из газового баллона своими руками
А действительно, что можно сделать из газового баллона своими руками? Так уж повелось ещё со времен Советского Союза, что многие изделия можно переработать принципиально и получить из них новые конструкции, которые будут выполнять совершенно другие функции. Из газового баллона, как оказалось, можно сделать многое и, заметьте, всё будет выполнено именно своими руками.
Печь из баллона
Первым делом, когда ищешь ответ на вопрос что можно сделать из газового баллона своими руками, на ум приходит печь-буржуйка. Преимуществ у такого агрегата множество, как и в самом принципе монтажа. Во-первых, толщина стенок газового баллона составляет 3 мм и этого вполне достаточно, чтобы буржуйка из него не прогорела уже в первый сезон эксплуатации. Во-вторых, доработать газовый баллон придётся совсем немного – печь изготавливается за один день своими руками. Третье преимущество заключается в огромном выборе конструкций: можно сделать печь из одного баллона или из двух, вертикальную конструкцию или горизонтальную. Фантазия собственная или подсказки из интернета – и вы сможете сделать из газового баллона изделие, которое выручит вас в холодную зиму.
Недостатки также присутствуют. Вернее сказать, это даже не недостатки, а особенности, которые необходимо учесть, чтобы они не превратились в недостатки. Например, необходимо перед первой топкой дров снять краску с внешней стороны деталей из баллона. В противном случае краска начнёт выгорать и наполнит едким дымом помещение. Также необходимо ОБЯЗАТЕЛЬНО позаботиться о пожарной безопасности. Стенки печки из газового баллона могут нагреваться докрасна и это чревато многими неприятностями. Вам может показаться, что такой нагрев – это только в плюс, ведь будет тепло внутри помещения. Но всё, что может вспыхнуть от такого сильного нагрева, вспыхнет непременно, если будет находиться слишком близко к буржуйке. И о стенах самого помещения нужно позаботиться: у нас шлакоблочная стена мастерской треснула вертикально по всей высоте уже после нескольких вечеров использования. Что можно сделать для защиты стены: устанавливать печь на расстоянии от неё, защитить оцинкованным экраном, смонтированным на стену на небольшом расстоянии от неё или же топить буржуйку в меру. Последнее, кстати, не самое лучшее – «угадать» оптимальное количество дров будет сложно. И самое главное: печка из газового баллона своими руками (да хоть и чужими тоже) будет очень быстро остывать. Пока внутри горит огонь, пока подбрасываются дрова – будет тепло. Но стоит дровам перегореть, как печка моментально остывает. Помогут утепленные стены помещения, где будет эксплуатироваться такая буржуйка, и устранение даже минимальных щелей в районе окон, дверей или ворот помещения.
Мангал из газового баллона 3 в одном. 3 в 1, или Как сделать мангал с коптильней, барбекю и грилем из газовых баллонов
Летний отдых, как ни крути, ассоциируется с приготовлением блюд на костре.
Поэтому у многих дачников и тех, кто живёт в частном доме, есть добротная конструкция для приготовления вкусного шашлыка и овощей на свежем воздухе.
Её можно купить в магазине в готовом виде, заказать у мастеров или сделать своими руками. В последнем случае необязательно использовать дорогие металлические листы, подойдут и подручные средства. Без особых затрат многофункциональную установку из обычных газовых баллонов сделал мой собеседник – начальник ООПП РОВД Олег Лобан.
– Пожарить продукты на шампурах, закоптить их, приготовить барбекю или что-нибудь вкусненькое в казане… Как Вы решились совместить всё это в одно универсальное приспособление?
– Случайно подсмотрел идею в интернете. Просмотрел в YouTube более 50 разных
– Расскажите об основных моментах изготовления мангала-коптильни. Нужны ли для этого определённые навыки?
– На мой взгляд, нужны лишь три составляющие. Это желание, время и минимальные навыки работы с металлом (дрель, болгарка, сварочный аппарат).
– Такие установки в настоящее время не продаются. Да и аналоги стоят примерно в 4 раза дороже. Всего на расходные материалы потратил примерно 180 рублей (металл, круги для болгарки, завесы для крышек, арматура, термоустойчивая краска, датчики температуры, ручки и т.д.).
– А как насчёт времени изготовления? Процесс был долгим?
– Работы проводил по вечерам (2-3 часа) в течение 2-х недель.
– Вы продумали всё до мелочей: крыша, столик, декоративные элементы…
– Декоративные элементы изготавливал самостоятельно при помощи трубогиба, дизайн подсмотрел в интернете. Крышу тоже придумал сам. Оставались материалы и лист поликарбоната, теперь благодаря ей погода не внесёт свои коррективы в сам процесс приготовления блюд.
– Какие тонкости могут подстерегать на пути изготовления тех, кто возьмёт на вооружение Вашу идею?
– Главное – соблюдать технику безопасности. При спиливании крана с газового баллона (перед эти выпустить остатки газа в течение суток) нужно использовать пилку по металлу смоченную в воде (как правило, вентиль очень сложно открутить), затем слить остатки газолина и утилизировать его подальше от дома, так как запах стоит очень долго. После этого необходимо заполнить баллоны водой и оставить на сутки. Затем, не сливая воду с баллонов, нужно резать по размерам.
– Теперь, главное, соблюдать правила пожарной безопасности и не дразнить соседей потрясающими ароматами блюд с дымком?
– Это точно. Уже жарил шашлыки, коптил сало и рыбу. До плова ещё ход не дошёл, но обязательно попробую.
Беседовала Елена СМУСЕНОК.
Мангал из газового баллона с казаном. Покраска
Для окрашивания подобных конструкций применяется термостойкая краска, выдерживающая температуры порядка 800 градусов. Покрытие защищает от резких изменений температур, воздействия коррозии. Состав не должен распространять при нагревании токсическихэлементов или взаимодействовать с остальными веществами.

Перед покраской с поверхности изделия удаляется старое покрытие при помощи щетки для металла или наждачки. Затем обезжиривают поверхность ацетоном либо растворителем, и обрабатывают специальным грунтом. Перед нанесением, состав хорошо размешивают, чтобы получить однородное состояние, удаляют сгустки, образовавшийся осадок.

Краску наносят распылителем либо при помощи кисточки. Для получения красивого, ровного покрытия потребуется 2-3 слоя. Прежде чем наносить следующий слой, предыдущий должен полностью просохнуть при температуре окружающего воздуха около 20 градусов.
К наиболее популярным жаростойким эмалям относятся акриловые составы, выпускаемые в баллончиках. Это эффективные, долговечные, абсолютно безопасные краски. Которые быстро сохнут. Кроме того, им характерны повышенные антикоррозионные свойства. Большое разнообразие оттенков позволяет создать уникальный дизайн мангала. Однако к наиболее распространенным относятся черный и серебристый цвета.
| Технические характеристики | |||||||
| Параметры | Объем, л | ||||||
| 5 | 8 | 9, 2 | 12 | 18 | 27 | 50 | |
| Масса сжиженного газа, кг | 2,0 | 3,5 | 4,0 | 5,0 | 7,5 | 11,4 | 21,2 |
| Масса пустого баллона | 3,3 | 4,2 | 4,7 | 6,0 | 7,6 | 12,0 | 19,5 |
| Рабочее давление, МПа | 1,6 | 1,6 | 1,6 | 1,6 | 1,6 | 1,6 | 1,6 |
| Испытательное давление, МПа | 2,5 | 2,5 | 2,5 | 2,5 | 2,5 | 2,5 | 2,5 |
| Толщина стенок, мм | 2,0 | 2,0 | 2,0 | 2,0 | 2,0 | 2,5 | 2,5 |
| Вентиль | ВБ-1, ВБ-2 | ВБ-1, ВБ-2 | ВБ-1, ВБ-2 | ВБ-1, ВБ-2 | ВБ-1, ВБ-2 | ВБ-2 | ВБ-2 |
| Упаковка | Картон | Поли-этилен | Картон | Поли-этилен | Поли-этилен | Поли-этилен | Поли-этилен |
| Габаритные размеры | |||||||
| Высота, мм | 272 | 295 | 350 | 485 | 530 | 600 | 970 |
| Диаметр, мм | 222 | 222 | 260 | 222 | 260 | 292 | 292 |
Старые ненужные газовые баллоны встречаются то тут, то там. Кто-то пройдет мимо, а пытливые мастера обязательно найдут им применение. Из этой статьи вы узнаете, как сделать мангал из газового баллона своими руками.

Почему именно баллон?
Несмотря на видимые достоинства покупной жаровни, металл в ней быстро прогорает от систематического нагрева. Тонкие металлические листы становятся слишком хрупкими, что приводит к разрастающимся дырам и распадающимся швам коробки. Толстый лист металла нужного размера стоит слишком дорого, даже в металлоприемке, а попавший под списаниепропановый либо кислородный баллон можно приобрести за копейки. Кроме того, толщина стенок, даже малогабаритных баллонов, превышает 3 мм. Этого хватит для создания полноценного мангала.

Плюсы и минусы
Кроме низкой цены, мангал из газового баллона отличается еще массой преимуществ:
- Простота изготовления. Для сооружения конструкции достаточно внимательного изучения чертежей и наличия минимальных навыков.
- Длительность эксплуатации. Толстостенная емкость способна выдерживать достаточное давление, приличные температуры. Она не деформируются и не прогорают, что значительно продлевает срок эксплуатации.
- Невосприимчивость к атмосферным катаклизмам.Жаровню можно оставлять без накрытия, ей не страшны снег, дождь.
- Функциональность. Конструкция может послужить коптильней, грилем либо барбекю.
К недостаткам подобной конструкции относятся большой вес, значительные габариты, мало места для размещения поленьев. Хотя, вместо дров, можно использовать уголь.
Мангал из газового баллона чертежи с размерами. Как сделать мангал из газового баллона своими руками
Достаточно несколько часов, чтобы соорудить мангал из газового баллона своими руками. Удобная в использовании конструкция отличается сравнительно небольшими размерами и возможностью любого стилистического оформления. Такой мангал можно использовать в качестве барбекю или коптильни, что позволяет расширить его функциональность.

Почему именно баллон?
Несмотря на видимые достоинства покупной жаровни, металл в ней быстро прогорает от систематического нагрева. Тонкие металлические листы становятся слишком хрупкими, что приводит к разрастающимся дырам и распадающимся швам коробки. Толстый лист металла нужного размера стоит слишком дорого, даже в металлоприемке, а попавший под списаниепропановый либо кислородный баллон можно приобрести за копейки. Кроме того, толщина стенок, даже малогабаритных баллонов, превышает 3 мм. Этого хватит для создания полноценного мангала.

Плюсы и минусы
Кроме низкой цены, мангал из газового баллона отличается еще массой преимуществ:
- Простота изготовления. Для сооружения конструкции достаточно внимательного изучения чертежей и наличия минимальных навыков.
- Длительность эксплуатации. Толстостенная емкость способна выдерживать достаточное давление, приличные температуры. Она не деформируются и не прогорают, что значительно продлевает срок эксплуатации.
- Невосприимчивость к атмосферным катаклизмам.Жаровню можно оставлять без накрытия, ей не страшны снег, дождь.
- Функциональность. Конструкция может послужить коптильней, грилем либо барбекю.
К недостаткам подобной конструкции относятся большой вес, значительные габариты, мало места для размещения поленьев. Хотя, вместо дров, можно использовать уголь.
Типы мангалов
К наиболее простому варианту относится открытая жаровня, у которой отсутствует крышка и многие функциональные возможности. Однако при желании, можно соорудить более сложную многофункциональную жаровню.
Барбекю
У баллона частично отрезают боковую стенку, фиксируют петли. Получается своеобразная печка с дверцей истопного отсека. Внутрь помещают металлическую сетку, предназначенную для раскладывания приготовляемых продуктов.

Гриль
Фактически, это та же барбекюшница, но оснащенная крышкой. Это позволяет продукты жарить, коптить, запекать. Благодаря крышке, в каждой части баллона сохраняется одинаковая температура.

Мангал
Классический мангал отличается от барбекю прямоугольной формой. Учитывая округлую конструкцию баллона, все печки, сделанные из него, считаются мангалами с барбекю одновременно. Все зависит от инструмента, который будет размещаться над углями: шампура или решетка.

Коптильня
Отличается наличием отдельно расположенной топки и абсолютной герметичностью. У баллона отрезают половину днища, к образовавшемуся отверстию приваривают топку, которую сооружают из трубы соответствующего диаметра. Вверху приваривают кусок трубы для выведения дыма. Перед использованием, такую коптильню необходимо прокалить не менее двух раз.

Смокер
Относится к наиболее сложному сооружению, в котором совмещаются функции жаровен всех перечисленных видов. Для изготовления придется использовать 2 баллона разных размеров. Внимательно изучив чертежи различных конструкций, нужно выбрать ту, которая подойдет для конкретного случая.

Размеры мангала из баллона
Зависят от габаритов используемого баллона. Учитывая, что шампура будут укладываться перпендикулярно конструкции, нужно позаботиться о достаточном количестве места, предназначенном для мяса. Обычно применяются 50-литровые емкости, диаметр которых равняется 96 см. Соответственно мангал из газового баллона будет обладать следующими габаритами:

- ширина – порядка 32 см;
- длина – равняется 96 см;
- высота – 30 см + высота ножек.

Этого вполне достаточно для приготовления шашлыков на 6 человек. Учитывая, что длина рабочей част шампура составляет 40-60 см, промежуток между точками опоры должен быть меньше этих показателей на 4-6 см.
Чертежи и схемы мангалов из баллона
Достаточно простое сооружение не потребует детального проекта, но небольшой чертеж придется нарисовать. При разработке чертежа учитывают:

- внешнее и техническое состояние емкости;
- габариты;
- параметры, место расположения отверстий;
- размеры шампуров;
- тип будущего мангала;
- предполагаемую отделку;
- дополнительные элементы (крючки, стопоры, ручки, складной столик, другое).

Разметка 50 литрового баллона
Такая схема поможет определить количество требуемых материалов, распланировать подсоединение отдельных компонентов. Чтобы исключить оплошность в дальнейшей работе, не стоит пренебрегать этим этапом.
Ниже можно посмотреть чертежи с размерами наиболее популярных конструкций.
Из чего сделать опоры для мангала
Для опор подойдут любые материалы, которые найдутся в хозяйстве:

- металлические уголки;
- профилированные, круглые трубы;
- полоски толстой стали;

Чертеж подставки с ложементами
Для изготовления мобильной конструкции, к жаровне привариваются небольшие куски арматуры, на которые надевают отрезки труб соответствующего диаметра.
Мангал из газового баллона минусы. Оптимальный размер мангала: выполнение разметки
Пока вода находится в баллоне, выполняется разметка по предварительно разработанному чертежу мангала из газового баллона с указанными размерами. Обычно для мангала используется изделие объемом 50 л с наружным диаметром 96 см. Размеры мангала из газового баллона: длина – 98 см, ширина – 30 см, высота без учета ножек – 30 см. Такой конструкции достаточно, чтобы приготовить шесть порций шашлыка.

Резка баллона под мангал осуществляется по предварительно сделанной разметке
Разметку удобно осуществлять от продольного шва. Диаметр газового баллона делится на четыре равные части – по 24 см каждая. От шва откладывается в обе стороны данное значение. Справа и слева от круговых швов отступается 3 см, и ставятся метки через каждые 8 см. Таким образом, получается 6 отметок для будущего размещения шампуров. В них просверливаются отверстия диаметром 1 см.
Полезный совет! Несмотря на то что мангал из баллона является простым изделием, следует на начальном этапе выполнить небольшой чертеж мангала из газового баллона с размерами и указанием мест присоединения отдельных элементов.
От линии, на которой выполнялась разметка, откладывается 10 см вверх, т.е. от середины шва получается 34 см. В этом месте будет заканчиваться крышка мангала, которая размечается на следующем этапе. Она занимает расстояние между первой нанесенной линией и только что отмеченной. Между ними прочерчивают прямую, отступив 3 см от круговых сварных швов. Также от начальной размеченной полосы отодвигаются на 10 см вниз для будущего крепления ножек, которые должны размещаться параллельно друг другу.
Мангал из газового баллона размеры. Особенности мангала, изготовленного на основе газового баллона: преимущества и недостатки
Сегодня большой популярностью пользуются мангалы из газовых баллонов и это вполне понятно. Такие аппараты достаточно большие и вместительные, поэтому в них можно установить сразу большое количество шампуров для большой компании. Ножки у них намного выше, чем у магазинных стандартных изделий, а это позволяет человеку стоять ровно, не сгибаясь во время приготовления шашлыков. Также при желании из баллона с помощью сварки, арматуры и металла можно создавать различные интересные формы, подходящие экстерьеру вашего дома.
Преимущества мангала из баллона:
- Простота изготовления. Даже непрофессионал сможет легко изготовить такую конструкцию за несколько часов при наличии подробной инструкции и наглядного изображения.
- Дешевизна конструкции. Если на даче есть использованный или непригодный для заправки газом баллон, то основа мангала будет для вас бесплатной. Максимум на что придётся потратить деньги, так это на дополнительные элементы конструкции.
- Благодаря толстым стенкам баллона, такой мангал может выдержать даже самые высокие температуры и большое давление, за счёт чего существенно увеличивается его срок службы.
- При наличии откидной крышки мангал можно будет оставлять на улице, не боясь атмосферных осадков. Также крышка необходима для того, чтобы можно было использовать его в качестве домашней коптильни.
- Функциональность. При необходимости с помощью дополнительных элементов можно усовершенствовать конструкцию.
- Мобильность. Мангал можно переносить с одного места на другое или перевозить на машине.
- Удобство эксплуатации. Так как днище такого мангала не прогорает благодаря толстым стенкам, то после приготовления шашлыков или других блюд, угли не надо заливать водой. Можно просто закрыть крышку и все.
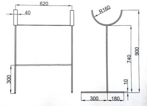
Мангал из газового баллона с трубой. Монтаж опор для мангала
Есть несколько вариантов установки мангала на ножки, чему способствует достаточно толстый металл его корпуса. Первый и самый простой метод — приварить четыре отрезка стальной трубы или уголка непосредственно к корпусу. Разумеется, места присоединения надо тщательно выверить, а в процессе работы использовать угольник и строительный уровень, иначе конструкция будет выглядеть кособоко и неопрятно. Высоту мангала каждый делает под себя, но существует и стандартная рекомендация — расстояние от земли до плоскости укладки шампуров должно быть не более 1 м.
Стоит заметить, что презентабельности и удобства описанный выше способ добавить не может. Если вы хотите получить стильное, практичное сооружение, то для этого понадобится изготовить опору рамного типа. Для этого из профильной металлической трубы 20х20х2 мм изготавливают пару боковых стоек. В верхней её части приваривают полукруглое ложе из металлической шины, выгнутой по форме баллона. Между собой обе части конструкции крепят всё тем же металлопрофилем так, чтобы получилось некое подобие подстолья. Баллон укладывают на подготовленное ложе и прихватывают сваркой. Для того чтобы сделать мангал более мобильным, к ножкам можно прикрепить металлические колёса.
Изготовление опорной конструкции для мангала
Изготовленный из бытового газового баллона мангал можно брать с собой и при вылазках на природу. Для того чтобы он не занимал много места в багажнике авто, опорную конструкцию делают разборной. Всё, что для этого понадобится — 40-сантиметровый отрезок трубы с внутренним диаметром 18–30 мм и 3-метровую трубу диаметром 16–28 мм. Главное требование — чтобы при их сопряжении зазор был небольшим, иначе мангал будет неустойчивым.
Разрезав короткий кусок на четыре равные части, получают муфты, которые приваривают к баллону в местах установки опор. После этого мангал устанавливают на ножки и выполняют сквозные сверления для их фиксации внутри муфт. Вставленные в эти отверстия штифты позволяют без труда переносить собранную конструкцию — трубки выпадать не будут. Дополнительно к бокам переносного мангала можно приварить ручки для переноски. К слову, во время транспортировки конструкции все ножки, дрова (или упаковку углей) и жидкость для розжига можно уложить внутрь. Подобная оптимизация позволит сэкономить немало места в багажнике.