Буржуйка с водяным контуром своими руками. Видео: печка с котлом водяного контура
- Буржуйка с водяным контуром своими руками. Видео: печка с котлом водяного контура
- Печь для гаража с водяным контуром своими руками. Печь на отработанном масле с водяным контуром: чертежи, фото
- Как подключить батарею к буржуйке. Что такое буржуйка с водяным контуром: достоинства и недостатки популярной печки
- Водяной теплообменник для буржуйки. Воздушный теплообменник
- Печь с водяным контуром своими руками чертежи. Сопутствующие ограничения
Буржуйка с водяным контуром своими руками. Видео: печка с котлом водяного контура
Буржуйки делают из всего, что валяется в хозяйстве без дела:
- из отработанных огнетушителей;
- газовых баллонов;
- металлических бочек;
- бидонов;
- просто сваривают конструкцию из стали;
- делают кладку из кирпича.
От вида используемого материала зависят форма (цилиндрическая, прямоугольная и т.п.) и внешний вид печи.
Несмотря на такое разнообразие, общая конструкция каждой печи состоит из:
- топки;
- колосниковой решетки;
- зольника;
- дымохода;
- дымовой трубы.
Размер загрузочного отверстия топки зависит от используемого топлива. Если применяются дрова, то и отверстие соответственно должно быть больше, чем в аналогичной печи, которую топят углем или топливными брикетами. Для защиты отапливаемого помещения от пожара, буржуйку устанавливают на фундамент или лист металла, изолируют ее кирпичной кладкой, отражателем или листами теплоизолирующего материала (минеральная вата, асбест), а дымовую трубу дополняют искроулавливателем. Если же необходимо установить печь в доме и подключить ее к водяному контуру, то конструкция дополняется трубами и баком для воды (другое название – теплообменник или котел). Особенно актуальна такая форма отопления становится с осенним понижением температуры и желанием хозяев сэкономить на отоплении собственных жилых и нежилых помещений.
Требования, предъявляемые к системе с водяным отоплением: хорошая циркуляция воды в системе и достаточный ее прогрев.
Водяной контур устанавливают либо к уже готовой печи, либо возводят в процессе строительства вместе с печью. Циркуляция в системе бывает естественной и принудительной (с использованием насоса).
Видео: Печка с котлом водяного контура
Буржуйки делают из всего, что валяется в хозяйстве без дела:
- От вида используемого материала зависят форма (цилиндрическая, прямоугольная и т.д.) и внешний вид печи.
- Несмотря на такое разнообразие, общая конструкция каждой печи состоит из:
Конструкция печи
- Размер загрузочного отверстия топки зависит от используемого топлива. Если применяются дрова, то и отверстие соответственно должно быть больше, чем в аналогичной печи, которую топят углем или топливными брикетами.
- Для защиты отапливаемого помещения от пожара, буржуйку устанавливают на фундамент или лист металла, изолируют ее кирпичной кладкой, отражателем или листами теплоизолирующего материала (минеральная вата, асбест), а дымовую трубу дополняют искроулавливателем.
- Если же необходимо установить печь в доме и подключить ее к водяному контуру, то конструкция дополняется трубами и баком для воды (другое название – теплообменник или котел).
Водяной контур
Требования, предъявляемые к системе с водяным отоплением:
- хорошая циркуляция воды в системе
- достаточный ее прогрев
Водяной контур устанавливают либо к уже готовой печи, либо возводят в процессе строительства вместе с печью.
Циркуляция в системе бывает:
- естественной
- принудительной (с использованием насоса)
Печь для гаража с водяным контуром своими руками. Печь на отработанном масле с водяным контуром: чертежи, фото
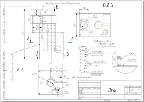
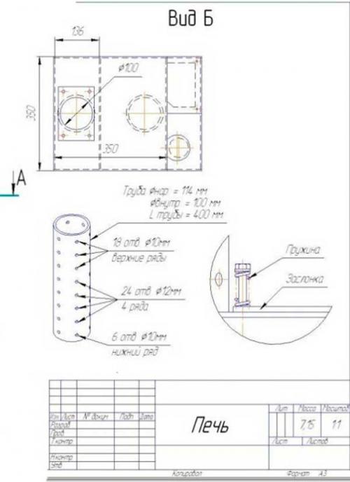
Подробные чертежи печи на отработанном масле с водяным контуром для отопления гаража: фото печи сделанной своими руками с описанием.
.
Конструкция обычной печки на отработке состоит из двух камер, нижняя — это ёмкость для топлива, верхняя это теплообменник, между камерами приварена труба с боковыми отверстиями — это камера для сгорания паров кипящего масла.
Масло само по себе не горит, горят его пары, чтобы масло начало испаряться нужно в нижний бак налить масло и треть стакана бензина. Затем фитилём на палке через отверстие поджигаем бензин в бачке. Бензин сгорая выделяет тепло, масло закипает и начинает испаряться, пары воспламеняются и горят в трубе.
На рисунке показана схема печки.

Автор изготовил самодельную печку на отработке но уже с теплообменником для воды, под отопление гаражного бокса площадью 50 м².
Ёмкость котла 24 л, подключен циркуляционный насос, общая емкость всей отопительной системы 80 литров, система заполнена антифризом.
На рисунке показаны чертежи печи на отработанном масле .

Этот самый чертеж печи более крупным планом.


Процесс изготовления показан на фото.

В верхней камере предусмотрена съёмная боковая крышка для чистки сажи, на нижней камере есть отверстие с заслонкой для регулировки подачи воздуха.

Над верхней камерой приварен бак для нагрева воды.

В нижней камере сделан выдвигающийся ящик для доливки отработанного масла.

Общий вид самодельной печи с водяным контуром, расход отработки — примерно 1 литр на час горения.

Эта самая печь с увеличенным баком.

На этом
Автор самоделки: Александр Иванов.
Как подключить батарею к буржуйке. Что такое буржуйка с водяным контуром: достоинства и недостатки популярной печки
Печка-буржуйка характеризуется высокой теплоотдачей и скоростью горения топлива. Эти качества ей придают материалы, из которых делается топка (чугун, сталь, железо). Буржуйка быстро разгорается и нагревается, а если к ней подсоединён водяной контур, то тёплые дымовые газы по пути ещё и успевают подогреть воду для бытовых нужд.
При выборе материала, из которого лучше сделать буржуйку, нужно руководствоваться следующими показателями:
- Теплопроводность — свойство металлов, жидкостей и газов проводить через себя тепло. Чем быстрее передаётся тепло, тем быстрее нагревается или охлаждается предмет. У пенопласта низкая теплопроводность — 0,036–0,050 Вт/м*С. Взяв его в руки, мы сразу почувствуем, что он тёплый, потому что пенопласт тепло не передаёт, а накапливает. Если взять металлический брусок, то ощутим холод из-за высокой теплопередачи.
- Теплоёмкость — свойство материала накапливать тепло. Самая высокая теплоёмкость у воды, на втором месте воздух, в конце списка чугун, сталь и железо. Поэтому металлическая печка быстро нагревается и столь же стремительно остывает. В городских домах батареи центрального отопления заполнены водой, которая долго отдаёт тепло, обогревая жильё.
Список материалов, которые применяются при создании буржуйки:
- Сталь.
- Чугун.
- Железо.
- Латунь.
- Алюминий.
- Медь.
На нашем сайте есть немало статей, в которых описаны инструкции по изготовлению печей. В следующем материале вы найдёте руководство по монтажу печи-буржуйки, работающей на отработанном масле:
Таблица: теплопроводность, теплоёмкость и температура плавления популярных материалов для создания буржуйки
| медь | 382–390 | 400 | 1085 |
| алюминий | 232–236 | 920 | 660 |
| латунь | 97–117 | 400 | 900 |
| железо | 74 | 460 | 1539 |
| чугун | 62,8 | 500 | 1200 |
| сталь | 47 | 540 | 1500 |
| вода | 0,6 | 4200 | — |
| кирпич строительный | 0,2–0,7 | 880 | 1000–1100 |
| пенопласт | 0,036–0,050 | — | 150–200 |
| воздух | 0,025 | 1100 | — |
Медь — самый теплопроводный материал из всех, приведённых в таблице. Её недостатки — стоимость и температура плавления. Такие же ограничения у алюминия и латуни. При высоких температурах чугунная или стальная буржуйка только покраснеет, но будет выполнять свою работу, а медная, алюминиевая или латунная — расплавятся.
Печки-буржуйки чаще всего делают из стали, потому что она имеет высокую температуру плавления и самую большую теплоёмкость среди всех доступных материалов
Изготовление печки из стали, железа и чугуна оправдано из-за распространённости этих материалов. С точки зрения теплопроводности и теплоёмкости им нужна доводка. Тепловую энергию печки целесообразнее использовать для нагрева воды, иначе она просто уйдёт в дымоход. Для ограничения потерь тепла также очень важно добиться полного сгорания топлива.
Идеальный вариант работы буржуйки — когда из трубы выходит едва тёплый воздух, а вся энергия направляется в горячее водоснабжение и отопление дома.
Таблица: достоинства и недостатки печки-буржуйки
| Достоинства | Недостатки |
|
|
Как видно из таблицы, у буржуйки есть масса недостатков, поэтому если вы решитесь на установку этой конструкции, придётся учитывать все её слабые стороны.
Для гаража также можно смастерить простую печку на солярке. В нашем материале предлагается три конструкции. Более подробно здесь: .
Водяной теплообменник для буржуйки. Воздушный теплообменник
В случае, когда первичным теплообменником служит топка (стальные буржуйки, печи длительного горения — ПДГ, печи на отработанном масле — ПОМ), можно принять следующие меры для повышения эффективности «сухой» теплоотдачи.
Сквозные вертикальные и горизонтальные прямые каналы (трубы)
Стальные трубы навариваются прямо на топку. Лучше устанавливать их вертикально — это улучшит проходимость воздуха. Подходит при наличии подручного материала — обрезков труб (форма сечения не имеет значения). Диаметр 50–200 мм. Оригинальным решением топки будет сварить стенки из равных отрезков трубы.
Изогнутые и закруглённые каналы
Идеальный вариант — «обернуть» в 1–2 витка всю топку. Для этого потребуется навык и время, но эффект будет гораздо выше, чем от простых прямых каналов. Чем больше разница уровней забора и выхода воздуха, тем лучше будет работать канал. Если вывести забор на улицу, эффект будет максимальным, т. к. при разогретой топке за счёт разницы температур возникнет тяга, которая обеспечит постоянный поток в «автоматическом» режиме.
Лабиринты с переборками в ёмкости
Для реализации такого теплообменника нужно устроить на верхней стенке дополнительный стальной короб высотой около 100 мм и толстыми стенками. В этом коробе следует расположить стальные 5–8 мм переборки таким образом, чтобы получился «лабиринт». В начале и конце его должны располагаться входные отверстия под сечение воздуховода. Сверху «лабиринт» также накрывается крышкой. В этом варианте теплообменником служит пространство между стенкой топки и стенками короба. Такие теплообменники можно устроить и на боковых стенках стального реактора.
Сквозные каналы в реакторе, интегрированные в топку
Такие каналы закладываются в проект при создании печи , затем ввариваются в стенки. Они могут быть расположены рядом в верхней части топки. Диаметр от 50 мм.
В любом из видов ВТ используется явление конвекции*, однако в большинстве случаев из-за высокой температуры в реакторе естественного движения воздуха недостаточно и его нагнетают принудительно — вентиляторами. Этот способ ещё называют инжектирование.
* Конвекция — способ передачи тепла потоками или струями.
Инжектирование можно производить любым доступным способом — встраивая воздушный насос в канал или просто направляя его на теплообменник. «Сухие» теплообменники — самые простые и доступные устройства отопления.
Достоинства воздушных теплообменников:
- Не требуется герметичность соединений.
- Может работать без инжекторов.
- Простота монтажа и доступность подручного материала.
Недостатки воздушных теплообменников (ТО):
- Требуется значительный (от 100 мм) диаметр воздуховода.
- Низкая теплоёмкость среды (воздуха).
- Малая дальность переноса температуры.
Печь с водяным контуром своими руками чертежи. Сопутствующие ограничения
Вспомним поговорку «лохматых» годов: бесплатный сыр бывает только в мышеловке. Отопительная печь с водяным контуром строится и эксплуатируется с серьезными ограничениями сравнительно с простой:
- Теплообменник нельзя замуровывать в тело (строение) кирпичной печи: разность ТКР (коэффициентов термического расширения) его и строения печи очень скоро выведет из строя и то, и другое;
- Если топка с водяной рубашкой, то добиться оптимального по расходу топлива хода печи/камина невозможно. Поэтому приборы такого типа могут служить только дополнительными в действующей локальной СО;
- Теплообменник печи с водяным контуром должен целиком обтекаться топочными или дымовыми газами;
- Запускать печь/камин с водяным контуром при порожней СО недопустимо. Если это отопительно-варочная печь, используемая круглогодично, в ней должен быть переключатель хода зима-лето, а теплообменник должен устанавливаться только в зимней части строения печи;
- Подпускать воду в СО снизу, т.е. сразу в печь, можно, только если она (печь) стальная и подпитка снизу указана как штатная в спецификации производителя. СО с кирпичной печью подпитывается холодной водой только и только сверху, от расширительного бака;
- Поскольку в СО с периодически топящейся печью теплообменник испытывает регулярные знакопеременные термические нагрузки, строить с печью СО закрытого типа с избыточным давлением недопустимо;
- По причине в пред. пункте строить СО с печью постоянно заполненной антифризом бессмысленно: дорогой теплоноситель еще до окончания текущего отопительного сезона состарится, деградирует и пропадет;
- По окончании отопительного сезона теплоноситель (вода) из СО обязательно сливается. Это необходимо для образования в трубах плотной пленки гидроокиси железа, предотвращающей их дальнейшую коррозию;
- Перед началом след. сезона система заполняется водой, герметизируется и опрессовывается подкачкой воздуха с расширительный бак до 2,2 ати;
- Заполнение системы нужно производить при наружной температуре не ниже 15 градусов;
- Отопительный прибор запускается не ранее чем через сутки после опрессовки системы, но и не ранее, чем температура теплоносителя сравняется с комнатной;
- Дровяная печь с водяным контуром должна протапливаться с промежутками между топками не более 12 час независимо от теплоемкости строения печи и внешних условий, т.е. печи нельзя давать полностью остывать. Объясняется это невысокой теплотворной способностью дров и высокой вероятностью выпадения кислотного осадка из древесных дымовых газов.