Технология изготовления банной печи своими руками. Плюсы и минусы самодельных конструкций
- Технология изготовления банной печи своими руками. Плюсы и минусы самодельных конструкций
- Лучшая самодельная печь для бани. Примеры изготовления
- Простая печь для бани своими руками. Особенности
- Металлическая печь своими руками: чертежи. Достоинства
- Как сварить печь для бани чертежи. Процесс изготовления
- Банная печь жара чертеж. Печи для бани Жара: фото, характеристики, чертежи, схемы +ВИДЕО
- Металлическая печь для бани своими руками чертежи. Печь для бани из металла: ТОП-136 фото-примеров банных печей с чертежами и популярными размерами железных конструкций
Технология изготовления банной печи своими руками. Плюсы и минусы самодельных конструкций
Самостоятельное изготовление печной конструкции имеет как свои преимущества, так и недостатки. Необходимо принимать в расчет и те, и другие, чтобы трезво оценивать свои силы и понимать, стоит ли браться за самостоятельное изготовление или лучше все же не экономить и заказать готовое решение.
Так, к достоинствам относятся следующие положения:
- Привлекательный внешний вид , который можно варьировать по собственному желанию. Те, кто имеет опыт в сварочных работах, а также во всем том, что касается самостоятельного изготовления вещей, могут сделать поистине уникальную конструкцию, которая по красоте не уступает заводским аналогам.
- Экономичность . Самодельные бани, устроенные правильным образом, не уступают фабричным в плане экономии топлива или электроэнергии, если выбран такой вариант.
- Высокая производительность . Должным образом спроектированная и построенная банная печь имеет высокий КПД, так что никакое тепло не пропадает зазря – все передается в парную.


- Простота в обслуживании . Самодельные печи проще обслуживать, поскольку изготавливающий их человек знает, где что находится, какие места нужно почистить тщательнее, а какие можно лишь слегка замести.
- Долговечность . Как и заводские, печи, сделанные своими руками, служат не один год, а если речь идет о кирпичной, то она может прослужить несколько десятков лет.
- Экономия места . Благодаря вариативности параметров появляется возможность рационально вписать печной конструкт в баню, при этом не оставив слишком больших зазоров или не заняв необоснованно много пространства.


Что касается недостатков, то их не так много, но все же они есть:
- Если самодельная печь сделана из камня, то она может иметь слишком большой вес. Это потребует дополнительного укрепления фундамента, что повлечет за собой дополнительные расходы.
- Возникает необходимость в защите окружающей обстановки, поскольку не всегда у печника-любителя имеются необходимые знания относительно того, как снизить температуру снаружи печи.
- Необходимо проводить все работы с высокой долей профессионализма, поскольку неправильно сделанная печь не будет должным образом прогревать помещение парной и вообще доставит больше проблем, чем радости.

Лучшая самодельная печь для бани. Примеры изготовления
Решив сделать печь для бани своими силами, необходимо подойти к делу основательно. Во-первых, выбрать проект, который подойдет для бани наилучшим образом, во-вторых, сделать чертежи, чтобы проще было строить. Вариантов банных печей существует много, поэтому любой человек может создать свой вариант, учитывая какие-то основы.
Вот некоторые примеры самоделок.
Металлическая с плотно закрывающейся каменкой
Такой вариант возможен для парилки размером 2 на 3 и высотой 2,3 метра. Материал, а именно металл берется листовой, толщиной три миллиметра. Подача воздуха идет в верхнюю часть топки. К задней стенке такой топки приваривается металлическая пластина, в отверстие между стенкой топки и этой пластиной подается воздух с помощью трубок. Это помогает охладить заднюю стенку и подать вверх горячий воздух, где сосредоточены дымовые газы. При их смешивании вещества воспламеняются. Благодаря этому нагреваются камни до больших температур, хотя дров идет намного меньше.
Для компактной парилки
Такую печь соорудить совсем несложно. Для ее постройки понадобится металлический лист толщиной до пяти миллиметров. Если взять лист потоньше, печка быстро прогорит. Размеры ее составляют 90 см в длину, 80 см в высоту и 60 см в ширину. Для создания дымохода подойдет кусок трубы диаметром в 11,5 см. Внизу должен находиться зольник с дверкой, между этой частью печки и топкой размещаются колосники из чугуна и каменки для осуществления вывода отходов, оставшихся после сгорания. Для этого одна треть задней стенки каменки заваривается прочным, где по центру вваривается патрубок для дымоотвода, опущенный вниз на 10-12 сантиметров.
Сверху печь накрывается крышкой из металла до одного миллиметра толщиной. Именно она не дает остыть камням, а также не допускает попадания отходов и пепла в парилку. Крышка открывается только когда это нужно, а именно перед походом в баню.
Простая каменка
Это самая лучшая самодельная печь, которая подойдет и для сауны, и для простой баньки. Высокая температура достигается приблизительно за полтора часа. За это время могут закипеть нужные для купания 50 литров воды. Такая печь имеет не один дымоход, а два. Первый подходит для подогрева помещения. Второй – для выхода угарного газа и едкого дыма. Конструкция состоит из листов железа толщиной в 3-4 миллиметра, а вот сам топливник изготавливают позже. Делают его из металла толщиной до 6 миллиметров. Также в комплект входят маленькая и крупная задвижки и две металлические решетки.
Каменку делают из стали до трех миллиметров, которая крепится на «горловину» самой топки. Сверху ставятся два патрубка, к которым привариваются фланцы с нужными отверстиями для фиксации выводной трубы и для крепления колена.
С кирпичной кладкой
В таком варианте используют двойную технологию, то есть кладка из кирпича плюс корпус из металла. Сюда подойдет сталь до двух миллиметров, а кирпич должен быть жаростойким.
Сначала делается основание, к которому привариваются ножки, нужные для устойчивости конструкции. Потом выкладывают ряд кирпича. Остальные ряды выстраивают возле топки в полкирпича. Устанавливают колосник и решетку для камней. Необходимо также установить окошко для задвижки, где будет сохраняться тепло после окончания топки. Последние два ряда делаются сплошными, оставляется только место с окошком для дымохода.
Окончив кладку кирпича и подождав, пока он застынет, можно приступать к привариванию корпуса из металла, играющего роль футляра. Необходимо вырезать металл под зольник и окна для загрузки. Устанавливается дверца, обязательно с уплотнителем. Дополняется металлическая основа холодной рукояткой.
Последней приваривается крышка с отверстием под дымоход. Когда печь установится на отведенное под нее место, можно закладывать камни. Их закладка играет не последнюю роль. Ведь от этого тоже зависит эффективность работы. Камни лучше брать округлой формы и разного размера приблизительно от 50 до 100 килограмм.
Рассмотрев виды и конструкции самодельных печей для бани, можно с уверенностью сказать, что изготовить ее своими руками – вполне выполнимая работа, если при ее установке учесть все требования по безопасности. Это позволит сэкономить деньги для семьи, а сама печка станет достоянием и гордостью хозяина.
Простая печь для бани своими руками. Особенности
Занимаясь строительством бани, основное внимание надо обратить на печь. Сооружая ее, человек берет на себя большую ответственность, особенно если строит ее сам. Судя по отзывам, это экономно, выгодно, к тому же всегда есть возможность сделать все по индивидуальному проекту.
Самодельная печка для бани выделяет тепло и горячий пар в процессе сгорания топлива. При этом прогревает она не только парилку, но и предбанник. Поэтому установив такую печь, остается только хорошо натопить ее и с удовольствием помыться.

Любая печь, будь она самодельная или купленая в готовом виде, имеет в наличии каменку – емкость, куда складываются камни, топку и тару для воды.
В топке имеется дверца, через которую загружаются дрова , и зольник, где после сгорания топлива остается зола. Из топливной камеры горячий воздух поднимается в емкость для камней, где они раскладываются на специальной решетке, которая соединяет топку и каменку. Дальше, отдав часть тепла камням, горячий воздух поступает в емкость, где нагревает воду.


Вне зависимости от того, из какого материала выполнена печь, у нее будут и недостатки, и преимущества.
Преимущества
Для начала стоит рассмотреть преимущества самодельных металлических печей:
- изделие легкое, поэтому его можно перемещать с одного помещения в другое;
- материал отличается прочностью, поэтому она может прослужить намного дольше, чем заводская печь, металлическая основа которой существенно тоньше;
- легко переносит температурный режим и обладает хорошей теплопроводностью, что позволяет быстро прогреть помещение;
- проста в сборке и установке.
Такую конструкцию может соорудить любой человек, умеющий пользоваться сваркой.
Недостатки
Но все идеально быть не может, поэтому такая печь имеет и ряд недостатков:
- Смена температур. Хотя металл быстро нагревается, он так же быстро и остывает.
- Также горячий воздух, исходящий от металла, неравномерно распространяется по всему помещению.
Но эти недостатки не столь существенны и их можно вытерпеть, ведь плюсов намного больше.
Металлическая печь своими руками: чертежи. Достоинства
Металл – куда более податливый материал, чем керамика, но сопоставим с ней по прочности. Металл можно плавить и лить, сверлить, резать, гнуть, ковать, он после формовки детали не требует обязательных дополнительных расходов энергии на ее обжиг. Способов производства и обработки металла известно множество, а их научная и производственная база огромна. Поэтому, создавая металлическую печь, можно практически без ограничений применять разнообразные теоретико-конструкторские ухищрения для улучшения ее технико-эксплуатационных параметров без существенного увеличения цены. Если предельный в среднем за сезон КПЛ кирпичных печей составляет около 70%, то для металлической 85-90% не диковина.
Примечание: исходя из современных экологических условий, нужно стремиться получить КПД печи не менее 70%
Удельная, на единицу поперечного сечения, прочность кирпича и вообще керамики с уменьшением толщины детали резко падает, а у металла наоборот, возрастает. В результате такие важные показатели печи, как вес и себестоимость на единицу генерируемого тепла, у металлических печей в 10-20 раз и более ниже, чем у кирпичных. Хорошую новую металлическую печь для обогрева 100 кв. м жилой площади можно приобрести за $250-300, а б/у за $50.
Кроме того, металлическая печь – цельная конструкция, ее можно транспортировать готовой к употреблению, наклонить, толкнуть, ударить, даже уронить, не приведя в негодность. Т.е., металлическая печь мобильна. На месте эксплуатации она не требует фундамента, а ее установка сводится к выводу дымохода в дымовой канал здания. По миновании надобности печь можно убрать и определить на хранение до следующего случая.
Теплопроводность металла высока, а общая теплоемкость печи из него вследствие ее небольшой массы невелика. Поэтому металлическая печь быстро прогревается и так же быстро нагревает помещение. Этот же фактор дает высокий КПД: в кирпичной печи до 20% энергии топлива вылетает в трубу во время протопки, пока в массивном теле печи не наладится внутренний теплообмен и она не начнет аккумулировать тепло.
Далее, металлическое изделие физически более однородно, чем кирпичная кладка, и не пористо. Металлическая печь не отсыревает, не боится долгих перерывов в топке, не требует разгонных протопок после простоев. Фактическое отсутствие, вследствие высокой теплопроводности металла, внутренних тепловых потоков в теле печи, обуславливает быстрое догорание в ней дымовых газов в малом объеме пространства, что облегчает встраивание в печь варочной поверхности и водогрейных устройств.
Наконец, что немаловажно для частных владельцев, заводскую печь из металла можно заранее сертифицировать по пожарной безопасности как готовое изделие. Получить разрешение пожарников на ее использование в таком случае неизмеримо проще как по нервам, так и по деньгам. Есть модели металлических печей промышленного производства, вообще не требующие оформления в МЧС, лишь бы в здании имелся отдельный от вентиляции газоход.
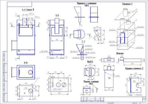
Как сварить печь для бани чертежи. Процесс изготовления
Для начала необходимо сказать о том, что существует целый ряд подобных изделий, которые отличаются своей конструкцией и принципом работы. Поэтому чертежи печей для бань из металла бывают разными. Однако все они обладают приблизительно одинаковым принципом действия ( см.также статью «Печь для бани из трубы: советы по изготовлению» ).

Простейший чертеж банной печи
Топка
- Прежде всего, необходимо изготовить топку. Ее размеры каждый определяет сам, но профессионалы советуют при ширине 0.5 метра делать такую же высоту.
- Многие чертежи самодельной печи для бани из металла предполагают использование некоторых готовых элементов. К ним относятся решетки и дверцы. При этом мастера советуют выбирать эти детали, изготовленные именно из металла, поскольку чугунные изделия придется фиксировать особенным образом.
Проект изготовления металлической конструкции с детальным указанием необходимых элементов и их размеров
- Типовой чертеж печи для бани из металла предполагает, что топка будет состоять из двух секций. В первой из них происходит сжигание топлива, а вторая нужна для сбора золы. Учитывая это, их разделяют решеткой и делают отдельные дверцы.
- Стоит отметить, что окно секций для сбора золы часто используют для создания тяги, которая необходима для горения.
- Если чертеж банной печи из металла предполагает размещение каменки, то верхнюю часть топки также изготавливают из решетки
Совет! Для изготовления печи стоит использовать толстый металл. Так конструкцию не поведет при нагреве, и она сможет выделять больше тепла.

Подробный чертеж в правильном оформлении
Каменка и бак с водой
- Над топкой необходимо сделать отдельную камеру с дверцей, которая будет отделяться решеткой.
- В нее помешают специальные камни для длительного поддержания температуры.
- При этом чертежи банной печи из металла рекомендуют делать закрывающее окно, которое можно использовать для подачи воды и создания пара.
- Необходимо отметить, что обычные камни для таких печей не подходят. Особенно это относится к материалу, содержащему кремний или другие включения.
- Верх данного отсека делают с отверстием для трубы. Она будет отводить дым, и при этом подогревать воду.

Принцип действия подобных печей
- Емкость для жидкости устанавливают сверху. При этом чертежи печей для бани из металла советуют, чтобы печная труба проходила через ее середину. Так вода будет нагреваться и от дымохода и от верхней поверхности банной каменки .
- Профессиональные мастера рекомендуют установить на низ такого бака кран. При этом нужно приобрести специальные устройства, цена которых может быть велика, но именно они смогут работать длительный срок в условиях постоянного перепада температуры.

Два варианта создания горизонтальных устройств
Отдельное внимание уделяют крышке емкости. Ее можно изготовить из древесины, но тогда нужно защитить область соприкосновения с дымоходом. При этом инструкция по монтажу советует делать в ней небольшие прорези для свободного выхода пара .
Совет! Подобную конструкцию обычно изготавливают из толстостенной трубы. Это помогает решить вопрос о дешевых материалах, поскольку такие изделия можно найти на пунктах приема вторсырья по сходной стоимости.

Проект металлической печи для бани с правильной установкой и организацией дымохода
Дымоход
Когда создают чертеж печки для бани из металла, то отдельное внимание уделяют дымоходу, а именно местам, где он будет проходить через крышу. Дело в том, что трубы при топке имеют довольно большую температуру и во избежание возгорания их нужно дополнительно изолировать. Также они должны располагаться на определенной высоте, чтобы создавать постоянную тягу.

Правильная организация дымохода
Создавая печи своими руками, многие мастера советуют для организации подобных проходов приобретать готовые изделия, которые делаются специально для данных целей. При этом их довольно часто выпускают в виде цельного комплекса с наружной трубой и грибком.
Также нужно подумать и о защитном экране, в задачу которого входить предотвращать воздействие высокой температуры на стены из древесины. Их лучше всего создавать со светоотражающей поверхностью, чтобы осуществлять отвод инфракрасного излучения. Данные изделия довольно часто продаются в готовом виде и имеют относительно небольшую стоимость.

Банная печь жара чертеж. Печи для бани Жара: фото, характеристики, чертежи, схемы +ВИДЕО
Дополнительная информация о банных печах «Жара» (ранее мы опубликовали отзывы о печах «Жара»). Указаны марки печей и их вид в разрезе — это может пригодиться тем, кто планирует делать самодельную печь из трубы.
- 1 Жара-стандарт 500
- 1.1 Чертеж печи «Жара-стандарт 500»
- 2 Жара-малютка 700
- 2.1 Схема печи «Жара-малютка 700»
- 3 Жара-стандарт 650
- 3.1 Схема печи «Жара-стандарт 650»
- 4 Жара-супер 800
- 4.1 Схема печи «Жара-супер 800»
У печи есть топочный короб шириной 250 мм.
Печь «Жара-стандарт 500»
Технические характеристики печи «Жара-стандарт 500» Объем парилки 8-22 м. куб Ширина 530 мм Глубина 250 мм Высота 400 мм Толщина свода8 мм Масса 112 кг Масса камней 100 кг Цена 13600 руб. Чертеж печи «Жара-стандарт 500»Чертеж печи «Жара-стандарт 500»
Поскольку печь малогабаритная, то она хороша подойдет для маленькой парной.
Жара-малютка 700Бак для нагрева воды устанавливается на печь сверху.
Печь «Жара-малютка 700»
Технические характеристики печи «Жара-малютка 700» Объем парилки 4-10 м. куб Мощность 16 кВт Ширина 470 мм Глубина 710 мм Высота 690 мм Толщина свода топки 8 мм Масса 90 кг Масса камней 60 кг Объем топки 82,6 литра Объем каменки 28 литров Объем бака для воды 40-50 литров Цена 12600 руб. Схема печи «Жара-малютка 700»Схема печи «Жара»
Жара-стандарт 650Печь с навесным баком.
Печь «Жара-стандарт 650»
Технические характеристики печи «Жара-стандарт 650» Объем парилки 12-18 м. куб Мощность 28 кВт Ширина 530 мм Глубина 665 мм Высота 795 мм Толщина свода топки 8 мм Масса 125 кг Масса камней 80 кг Объем топки 117 литров Объем каменки 35 литров Объем бака для воды 60-80 литров Цена 14400 руб. Схема печи «Жара-стандарт 650»Схема печи «Жара-стандарт 650»
Жара-супер 800Визуально, печь мало чем отличается от печи «Жара-стандарт 650». Что касается толщины металла трубы-топки, то у Жара-супер, она на 2 мм больше (10 мм).
Печь «Жара-супер 800»
Технические характеристики печи «Жара-супер 800» Объем парилки 18-32 м. куб Мощность 34 кВт Ширина 530 мм Глубина 815 мм Высота 795 мм Толщина свода топки 10 мм Масса 160 кг Масса камней 120 кг Объем топки 140 литров Объем каменки 46 литров Объем бака для воды 60-100 литров Цена 25500 руб. Схема печи «Жара-супер 800»Схема печи «Жара-супер 800»
Внимательные читатели, глядя на схемы, наверняка заметили, что для увеличения мощности печей, производится сдвиг выхода дымоходной трубы относительно выхода горячих газов из топки. Благодаря такому несложному трюку, удается увеличить площадь интенсивного нагрева верхней части топки, над которой расположена каменка.
Металлическая печь для бани своими руками чертежи. Печь для бани из металла: ТОП-136 фото-примеров банных печей с чертежами и популярными размерами железных конструкций
Для отопления бани и получения пара применяются различные виды печей. Это может быть и дровяная из чугуна, а также металлическая для разного вида топлива. Вот именно о печи из металла пойдет речь далее.
В статье будет рассказано об особенностях данного агрегата. И показан пример, как изготовить металлический агрегат самостоятельно.
Характеристика печи для бани из металла
Самое простое, что можно сказать о таких печах, что они изготовлены из металла. И в отличие от кирпичных агрегатов, быстрее нагреваются, но так же и быстро остывают.

При этом монтаж такого изделия не сложен, как с финансовой, так и с физической стороны.

Считается, что металлические печи практически невесомы. Для продления работы нужно выбирать топливо, которое будет гореть как можно дольше времени.
- Топка в таких агрегатах изготовлена из стали. При большой температуре материал начинает сильно нагреваться, а значит и терять свои физические свойства.
- Считается, что уже при + 250 С, сталь становится уязвима. Хотя внешне, это никак не будет отражаться.

При + 550 С, металл становится коричневым. Выше температура сделает сталь красного накаленного цвета.

И печка уже не будет первоначальной формы. А иногда даже и пригодна для дальнейшего использования. Но решение проблемы есть всегда.
Температурное расширение печи из металла
По мнению мастеров печной отрасли, полностью изменить влияние высоких температур на сталь не получится. Но можно снизить такие показатели до необходимой точки. Для этого применяют два варианта. Это подготовка металла к монтажу печки для бани. Или же изменение расположения топки в агрегате.

Подготовка металла
После того как все детали печи вырезаны, необходимо взять элементы боковых частей, верхней и дверку топки. Все это хорошенько накалить до огненного состояния, не боясь деформации.
- Все можно быстро выпрямить молотком, так как металл при таком нагревании становится мягким как пластилин.
- Охладить и сравнить с первоначальными размерами печки. Если все нормально приступить к сбору агрегата.

Таким образом раскаленное железо уже не будет плавиться до такой степени (как плавка элементов) и сохранит изделие целым и невредимым, продлив срок службы на максимальный период.

Подготовка топки
Любители банной релаксации, наверное в курсе, что для обустройства топки обычно используется колосниковый элемент. Он представляет собой железную решетку, на которую кладутся полена.
Сами решетки сделаны из листового металла или литого чугуна. И отличаются размерами отверстий. Это идеальный вариант для каменных печей.
Для металлических же агрегатов – это лишняя трата времени на подкладывание отопления. А также средств на покупку такого оборудования с колосниковой системой.
- Что же предлагают специалисты? Они настаивают на том, что вместо колосникового элемента использовать просто дно металлической печки, как основу для переработки топлива.
- Единственное, что нужно предусмотреть относиться к подвижной заслонке. Она поможет контролировать подачу кислорода к топке. Также для герметичности агрегата, стоит воспользоваться минеральной ватой или асбестовым шнуром.
- Этими деталями можно закрыть периметр дверцы топки. Таким образом топлива потребуется в два раза меньше, чем с колосниковой системой. Т.е. полена нужно будет подкладывать раз в 2 часа. При этом комната будет прогрета по максимуму, как и камни в каменке.

Размеры печи для бани из металла
При самодельном изготовлении печки применяют любые размеры, как ее бака, так и ее сторон. Также учитывают площадь парной и количество человек, которые будут париться за раз в помещении.
Далее будет приведен пример универсального варианта, который поможет сделать печь своими руками.
- Внешняя емкость для камней шириной 50 см и аналогичной длиной. Высота будет 80 см;
- Внутренняя каменка с шириной 40 см, такой же длиной. А высотой уже 50 см (расстояние между внутренней и внешней равно 5 см);
- Печь с шириной 50 см, длиной 90 см и высотой 50 см. Длина может отличаться от предполагаемого варианта. Неизменной остается внешняя каменка (50 см), но бак крепится со стороны на упорах;
- Бак. Можно взять шириной 40 см длиной 50 см и высотой 60 см. Вместимость бака будет до 120 литров. Этого хватит для 4 человек. Или же больше, так как речь идет об уже нагретой воде.

Изготовление печи из метала своими руками (пошагово)
Если есть желание, металлическую печь можно сделать самостоятельно. Для этого необязательно иметь какие-то специальные навыки, достаточно изучить систему изготовления такого оборудования в интернете или в книжном формате. И конечно же запастись хорошим настроением.

Инструкция
Для начала подготавливают необходимый материал. В данном случае листовая сталь чем толще, тем лучше.