Сколько нужно кирпича на банную печь. Этапы облицовки
- Сколько нужно кирпича на банную печь. Этапы облицовки
- Печь для бани из кирпича на 3 помещения. Виды кирпичных печей
- Сколько нужно кирпича на печь-шведку. Отопительная варочная печь шведка: особенности, преимущества
- Как сложить печь для бани из кирпича
- Сколько нужно шамотного кирпича на топку. Пример расчета
- Калькулятор расчета кирпича на печь. Калькулятор расчета кирпича для печи
Сколько нужно кирпича на банную печь. Этапы облицовки
Общие принципы облицовки аналогичны для печей любой конструкции. Различия же возможны в зависимости от их расположения относительно помещений и стен бани. Например, если нужно решить, как обложить печь в бане кирпичом своими руками с предбанника, в который выходит только топка, то часто кирпичной делают всю перегородку между предбанником и парилкой. А затем обкладывают заднюю часть.
Если место для отопительного агрегата ещё не выбрано, сэкономить на облицовочном материале можно, установив его в угол. Но деревянные стены при этом обязательно изолируют от печи, оставляя расстояние между ними не менее 15 см и защитив деревянные конструкции огнеупорными базальтовыми плитами.
Подготовка основания
Если буржуйку можно просто поставить на пол, то для облицованной печи требуется более серьёзное основание. Обойтись без него можно при совокупности следующих условий:
- полы крепкие и лежат на мощных лагах либо представляют собой монолитную железобетонную плиту;
- печь имеет небольшие габариты и будет обкладываться только её основная часть, без дымохода. А общий вес конструкции не превысит 600-700 кг.
В остальных случаях прежде чем обложить печь в бане кирпичными стенками требуется сделать фундамент. Его площадь должна превышать площадь облицовки на 10-15 см во все стороны.
Это важно! Печной фундамент нельзя связывать с фундаментом основного строения. У них разная степень усадки, что может вызвать деформацию основания печи.
Печь для бани из кирпича на 3 помещения. Виды кирпичных печей
За свою тысячелетнюю историю человечество создало несколько видов печей для бани, которые работают по разным схемам и на основании разных принципов.
При этом даже если у вас кладётся небольшая печь для бани, порядовка её будет индивидуальная. Что же касается наиболее распространённых конструкций, то они следующие:
Чёрные печки в принципе не имеют дымохода, и дым здесь выходит наружу из помещения через дверь. Они считаются самыми древними и существуют на свете уже не одно столетие. Их плюс – возможность получить большое количество пара при малом количестве топлива. К недостаткам же можно отнести необходимость ожидания полного прогорания топлива в топке.
Серая печь каменка для бани из кирпича, а также порядовка для неё предполагают наличие дымохода. При этом в качестве плюса таких печей можно назвать их высокую экономичность при достаточно быстром прогреве помещения парной. Однако такие печки так же, как и чёрные, требуют от их владельца время на ожидание полного прогорания в них дров.
Наиболее распространёнными же в наше время являются так называемые белые печи, для которых характерно наличие полностью закрытого дымохода, не выпускающего наружу продуктов сгорания. Однако у них также есть свои недостатки, например, они очень долго нагревают баню. Кроме того, белая кирпичная печь каменка для бани и её порядовка сложны в исполнении, и выполнить их под силу далеко не каждому домохозяину.
Что же касается печек с плитами, то в бане они обычно не используются, а выкладываются в подсобных помещениях в том случае, когда оно, например, совмещено с летней кухней. Кроме того, такие печи могут быть возведены в мойке и используются они для нагрева воды необходимой для мытья или стирки белья.
Существуют и необычные схемы, например, печи для бани Кузнецова и порядовки к ним. Автор такой печки заявляет, что КПД его детища превышает 80%, однако, если вы строите баню в первый раз и не имеете достаточного опыта в этой сфере, лучше не рисковать и отдать предпочтение традиционной дровяной каменке.
Сколько нужно кирпича на печь-шведку. Отопительная варочная печь шведка: особенности, преимущества
Шведку часто сравнивают с русской печью, однако по размерам и расходу топлива эти два устройства отличаются. Она компактная, чего нельзя сказать о русской печи, именно поэтому многие жители частных домов делают выбор в ее пользу. Модель была разработана в Швеции, согласно тонкостям местного климата. В функции входит:
- обогрев помещения;
- приготовление пищи.
В зависимости от модели, она может быть оснащена камином, отделением для выпечки. Главное преимущество состоит в возможности самостоятельно оборудовать такое изделие в своем жилище. Выбрав нужный вариант, можно выложить кирпичную печку своими руками. Для этого необходимо начертить подробную схему порядовки и подобрать все нужные материалы.
Чем печь шведка отличается от голландки и финки
На данный момент существует множество видов кирпичных печей, но особенно выделяют три похожие между собой конструкции: шведку, голландку и финку. Неопытный пользователь должен узнать, что лучше из этих трех вариантов и какие отличия между ними существуют:
Голландка. Имеет прямоугольную форму и вертикальные дымообороты. Используется для отопления и приготовления пищи. Особенность заключается в простоте выкладки и неприхотливости. Если перетопить модель, то есть опасность возникновения угарного газа. Из-за особенностей конструкции: можно установить печь на 2 этажа.
Финка. Имеет одно отличие от шведской – она делается с хлебной камерой. Проекты могут быть разными, но отличительная черта остается неизменной.
Шведка. Для обустройства потребуются определенные умения и навыки
Если работу выполняет новичок, важно учитывать все нюансы. Обустройство агрегата для дачи требует соблюдения порядка схемы и всех норм.
Важно! Шведка отличается от других отопительно-варочных конструкций тем, что кладется со щитком в задней части
Шведская печь – компактный и удобный вариант сооружения, предназначенный для отопления жилья и приготовления еды
Выбирая между тремя представленными вариантами, стоит обратить внимание на габариты и предназначение
Виды шведских печей
В зависимости от строения выделяют несколько разновидностей шведок:
- Без духовки с варочной поверхностью. Самая распространенная конструкция, зачастую выполняется кладка с тремя режимами топки: порядовка рассчитана на кладку для трех времен года. В зависимости от желаемой температуры она будет нагреваться больше или меньше. При желании можно сделать печь-мини с одной конфоркой для небольших помещений.
- С водяным контуром. В топку или дымоход встраивается теплообменник, который нагревает проходящую через регистр воду и пускает ее по трубам к радиаторам.
- С камином и варочной плитой. Такое устройство имеет название печь Рязанкина. Печь-камин шведка выглядит красиво, ее устанавливают на фундамент. Размеры — 102х102х217 см, что говорит о возможности применения в частном построении. Можно соорудить с одной стороны печь с другой камин, тогда пользователь сможет одновременно любоваться каминным пламенем и использовать топку по назначению.
- Без плиты. Особый вид конструкции, когда шведка исполняет роль отопительного прибора без возможности приготовления пищи.
Важно! Желающих самостоятельно соорудить конструкцию интересует вопрос, какие бывают изделия по форме. Их можно сделать круглыми, прямоугольными или угловыми
Тип выбирается согласно месту расположения.
Также мастера могут соорудить вариант с сушильной камерой, где можно будет предварительно высушить древесину для растопки. Отдельное место занимает шведка с лежанкой – такая простая конструкция предполагает дополнительное место для отдыха.
В зависимости от особенностей строения устройства, оно может иметь несколько колпаков. Например, печь Бацулина двухколпаковая имеет духовку и плиту, вариант с пятью колодцами, размер и схема которых поможет выложить материал правильно, оснащена 5 секторами для движения дыма. Вариант 2-х колпаковый из кирпича считается универсальным.
Как сложить печь для бани из кирпича
Невзирая на многообразие дровяных отопителей для бани из металла и чугуна, предлагаемых на рынке, традиционная конструкция печи из кирпича остается актуальной и востребованной. Это неудивительно, ведь она хорошо прогревает парную, долго сохраняет тепло и обеспечивает ее сухим паром. Также кирпичная печка помимо парилки может обогревать и 2—3 смежных помещения (моечную, предбанник). В данной статье мы расскажем, как правильно сложить печь для бани из кирпича своими руками, поделимся опытом в части подготовительных работ и устройства фундамента.
Виды печей для бань
В первую очередь нужно подобрать подходящий готовый проект печи. Опытные печные мастера умеют разрабатывать собственные схемы применительно к условиям кладки и эксплуатации. Значит, нужно воспользоваться их опытом и взять готовую схему, а для этого надо понимать, какие существуют кирпичные печи для бани.

Четко классифицировать отопители по видам весьма затруднительно, их слишком много, но условно все разработки можно разделить на группы по таким критериям:
- способ передачи тепла в помещение;
- расположение каменки;
- способ подогрева воды.
Эффективность теплоотдачи во многом зависит от конструкции и принципа действия отопителя. По данному критерию существующие виды печей можно поделить на:
- канальные: название явствует о том, что печка имеет один или множество каналов (газоходов) для дымовых газов. Последние, проходя по этим каналам, отдают тепло кирпичным стенкам. Газоходы могут проходить в теле печи как вертикально, так и горизонтально;
- колпаковые печи И. В. Кузнецова: здесь принцип теплоотдачи иной, продукты горения отдают теплоту, скапливаясь в пространстве под специально сделанным колпаком. Причем выйти оттуда они могут только после остывания, поэтому печь выходит очень теплоемкой.
Совет. Колпаковые печи весьма сложны в исполнении, домашнему мастеру без опыта построить такой вряд ли удастся. Поэтому новичку лучше начинать осваивать кладку кирпичных печей канального типа.
Засыпка из камней (каменка) может располагаться как внутри печи, так и быть открытой. На качество работы этот критерий особо не влияет. А вот способ подогрева воды может повлиять на длительность протапливания парной. Здесь существуют такие технические решения:
- регистр из стальных труб или бак из нержавейки, встроенный в тело печи, а точнее, в газоход;
- варочная плита: вода подогревается на ней в больших емкостях.
Нужно учесть, что хорошая печка из кирпича с варочной плитой хоть и прогреет парилку быстрее, но неудобства с горячей водой в кастрюлях не сравнить с проточным теплообменником внутри газохода, соединенным с накопительным баком.
Проекты печей для бань
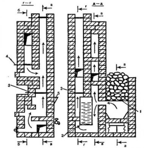
Как уже говорилось, различных проектов кирпичных печей существует великое множество. Мы предложим несколько типовых схем, вы можете воспользоваться ними либо найти что-то подходящее в технической литературе. Итак, первая — схема печи для бани из кирпича с открытой каменкой и встроенным баком для нагрева воды:



Примечание. На этой схеме и в дальнейшем используются следующие условные обозначения:

Для возведения данной печи понадобится 415 шт. кирпича и такие комплектующие, как:
- дверца топки 210 х 250 мм и поддувала – 140 х 140 мм;
- дверки для прочистки 140 х 70 мм – 2 шт.;
- бак из нержавейки 200 х 300 х 490 мм;
- плита чугунная 410 х 410 мм;
- решетка колосниковая 175 х 255 мм;
- задвижка 120 х 230 мм и 2 задвижки 130 х 130 мм.
На следующей схеме показана порядовка банной печи:



Печь-каменка с греющей плитой
Данный отопитель для бани вместо встроенного бака оборудован плитой на 2 конфорки, а каменка находится в теле печи, прямо над топкой. Хотя конструкция предусматривает возможность установки внутреннего водогрейного котла, это отображают соответствующие схемы кладки печей для бань:


На строительство отопителя потребуется 650 кирпичей, а также печная фурнитура:
- дверца топки 210 х 250 мм и поддувала – 140 х 140 мм;
- дверки для прочистки 140 х 70 мм – 4 шт.;
- плита чугунная 410 х 710 мм;
- решетка колосниковая 175 х 255 мм;
- круг стальной Ø20 мм – 3 м;
- бак для воды из нержавеющей стали 220 х 380 х 630 мм – при необходимости.
В этом варианте порядовка кладки для печей выглядит следующим образом:

Банная печь с нижним прогревом
Это небольшая кирпичная печка, в силу особенностей конструкции требующая хорошего фундамента. По сути, на его устройство уйдет больше времени, чем на выполнение самой кладки. Вот схема отопителя в разрезе:

Помимо 260 шт. кирпичей на строительство еще понадобится:
- дверца топки 210 х 250 мм и поддувала – 140 х 140 мм;
- дверки для прочистки 140 х 140 мм – 2 шт.;
- дверцы камеры для камней 210 х 250 мм – 2 шт.;
- плита чугунная 410 х 410 мм;
- решетка колосниковая 175 х 255 мм;
- задвижки 130 х 240 мм и 130 х 130 мм.


Сколько нужно шамотного кирпича на топку. Пример расчета
Чтобы разобраться в методике расчета, стоит рассмотреть ее на примере – это позволит в дальнейшем рассчитать, сколько кирпичей надо на печь, но уже для индивидуального проекта. Независимо от периметра печки, ее первый ряд все равно выкладывается полностью – допустим, 4х4 кирпича, т.е. для монолитного первого ряда потребуется 32 кирпича.
Чтобы продолжать расчет кирпича на печь, нужно определить количество рядов, для чего должна быть известна высота помещения. Стандартный одинарный кирпич имеет высоту 65 мм, а толщина шва между рядами – 5 мм. В итоге получается, что суммарная толщина одного ряда составляет 7 см. При высоте помещения в 2,8 м от этой величины отнимается 30 см на противопожарную конструкцию, и расчетная величина печки в результате составляет 2,5 м.

Полученное значение нужно разделить на толщину одного ряда, и в данном случае получится 36 рядов. Умножив рассчитанное количество кирпичей, требуемых для полной укладки одного ряда, на количество рядов, получится 1152 кирпича. Конструкция печи на треть полая, поэтому от общего количества кирпичей высчитывается 2/3 – а это 768 кирпичей.
Следующий шаг, позволяющий узнать, сколько кирпича надо на печь в доме – расчет количества кирпичей для дымохода. В стандартной трубе с квадратным сечением каждый ряд состоит из 6 кирпичей – и для 4-метровой трубы, состоящей из 57 рядов, потребуется 342 кирпича. Здесь методика расчета точно такая же, как и в случае с основной частью печи. Разумеется, такой метод не подойдет для определения количества кирпичей в случае с круглыми или прямоугольными дымоходами.
Решая, сколько нужно кирпича на печь, нужно обязательно учесть количество кирпичей, которое уйдет на разделку. Это количество напрямую зависит от конструкции печи, ее расположение и толщины стены, если печь в нее встраивается. Для одинарной стены минимальная ширина разделки составляет 25 см, поэтому с каждой стороны печи выкладывается одинарная разделка. Итого получается 36 рядов с двух сторон, или 144 кирпича. Если же печь не примыкает к стене, то разделка нужна только возле потолка и элементов кровли. В таком случае количество кирпичей будет варьироваться от 30 до 50 штук.

Считая, сколько нужно кирпича на русскую печь, нужно обязательно оставлять небольшой допуск по количеству кирпичей. Все дело в том, что при транспортировке и работе часть кирпича обязательно приходит в негодность. Как правило, в расчетах на допуск приходится около 10% от расчетного количества кирпича.
Калькулятор расчета кирпича на печь. Калькулятор расчета кирпича для печи
Способы расчета диаметра дымохода для печи на дровах
От оптимального размера сечения и высоты дымохода зависит экономичность и производительность работы печи. Правила СНиП и несколько вариантов расчета помогут вам правильно подобрать размер для дровяной печи в доме.
- Зачем нужно знать диаметр?
- Какой должен быть диаметр дымохода для печи?
- Способы расчетов
- Точный метод + формула
- Шведский метод расчета
- Что делать если сечение дымохода квадратное?
- Какая должна быть высота трубы дымохода для печи?
- Зачем нужен этот параметр?
- Требования СНиП
- Методика самостоятельного расчета
- Таблица “Высота печной трубы над коньком”
- Вывод
Калькулятор расчета нагрузки на пол от обложенной кирпичом металлической печи
Одним из основных аксессуаров любой бани является печь. Чаще всего в парных устанавливают металлические (чугунные или стальные) печки-каменки – они достаточно компактны, быстро прогреваются, хорошо отдают тепло в помещение. Но мест с тем излучающийся жар от металлической поверхности – слишком «жесткий», после прогорания дровяной закладки металл достаточно быстро остывает (особенно это свойственно стали), а случайное прикосновение к раскаленной стенке чревато серьезным ожогом. Эти обстоятельства очень часто подвигают хозяев к возведению дополнительной кирпичной облицовки вокруг печи.
Калькулятор расчета нагрузки на пол от обложенной кирпичом металлической печи
В отличие от кирпичных печей, металлические часто не требуют фундамента – их можно устанавливать и на прочный деревянный пол, предусмотрев необходимую термоизоляцию его поверхности. Но как быть, если планируется возведение еще и кирпичного «футляра»? Выдержит ли конструкция возрастающую нагрузку, или придется все же проводить трудоемкую подготовительную стадию с заливкой бетонного основания? Ответ на этот вопрос поможет получить калькулятор расчета нагрузки на пол от обложенной кирпичом металлической печи.
Цены на огнеупорный кирпич
Ниже будут приведены некоторые пояснения по проведению вычислений.
Калькулятор расчета нагрузки на пол от обложенной кирпичом металлической печи
Пояснения по проведению вычислений
Если затевается обкладка кирпичом печи, стоящей на деревянном полу, в любом случае начать необходимо в ревизии основания. Проверяется состояние досок настила (их толщина должна быть не менее 35÷40 мм) и несущих деталей – балок или лаг. Все элементы конструкции должны быть прочными, не тронутыми разложением, стоять абсолютно стабильно, без люфта. При необходимости – стоит провести ремонт или даже замену отдельных деталей. Есть смысл сразу замерить сечение и длину лаг (между точками опоры) – оно потребуется для последующих вычислений.
Внесение данных в поля калькулятора:
- Размеры печи – в метрах. Если печь имеет сложную конфигурацию, то принимаются максимальные габариты изделия. При внесении высоты следует иметь в виду, что это часто бывает не размер самой печки, а высота планируемых кирпичных «экранов».
- Масса печи – в килограммах. Для заводских моделей этот параметр указан в паспорте, для самодельных – придется измерить самостоятельно.
- Если печь оснащена каменкой, то необходимо учесть и массу каменного заполнения.
- Аналогично и с водогрейным баком – при его наличии учитывается масса вмещающейся в него воды.
- Кирпичные стенки никогда не укладываются вплотную к самой печи – обязательно оставляется воздушный зазор. Это несколько увеличивает и занимаемую прибором площадь, и размеры стенок облицовки.
- От способа кладки зависит количество необходимого кирпича и, соответственно, общая масса конструкции. Предпочтительнее видится кладка в полкирпича – она проще в возведении, эффективнее в теплоотдаче и намного надежнее.
- Нередко отопительный прибор обкладывается кирпичом не всплошную, а только по некоторым сторонам. Аналогично, может выкладываться сплошные ряды сверху и снизу, или же обходятся без них. Все эти варианты учтены в программе расчета.