Какая толщина металла для печки бани. Чертежи самодельных банных печей из металла
- Какая толщина металла для печки бани. Чертежи самодельных банных печей из металла
- Из какого металла сварить печь. Достоинства
- Толщина стенки печи. Поделиться 1 17-01-2013 17:37:30
- Лучшая самодельная печь для бани. Делаем фундамент
- Толщина нержавейки для банной печи. Нужен ли в бане нержавеющий бак под горячую воду
- Почему прогорает банная печь. Как и чем заделать дыру в металлической печке, если проржавела?
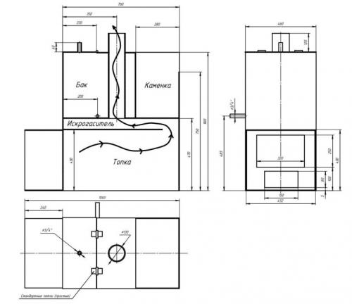
Какая толщина металла для печки бани. Чертежи самодельных банных печей из металла
Эта печь разработана для парной 2*3*2,3 м. Варилась из листового металла толщиной 3 мм.

Печь из металла для бани с закрытой каменкой
Для активизации горения предусмотрено подключение дополнительного воздуховода, проложенного с улицы. Из других решений — ребра жесткости (уголки) приваренные к бокам топки в верхней части топки для того, чтобы при сильном нагреве металл не выгибало.
Следующая схема металлической печи для бани сделана с подачей воздуха в верхнюю часть топки. Это так называемые печи с дожиганием газов. На задней стене приварена пластина из металла. В щель между этой пластиной и задней стенкой топки при помощи трубок-воздуховодов подается воздух из-под колосников. Это нехитрое, вроде, устройство решает сразу две задачи. Во-первых, охлаждает заднюю стенку, снижая вероятность ее прогорания. Во-вторых, воздух подается в верхнюю часть разогретым. Там сосредоточены разогретые до высоких температур дымовые газы, большая часть которых горючая (до 80%). Когда эти газы смешиваются с подогретым воздухом, горючие вещества воспламеняются, температура в верхней части топки становится еще выше, камни нагреваются до более высоких температур. При этом (при использовании сухих дров) топлива требуется намного меньше. На этом принципе построены многие печи длительного горения, но в банных печах он стал использоваться недавно.

Печь с подачей вторичного воздуха
Примерно та же модель, но без дожига, выполнена в другом формате. Тут размеры не указаны, зато проще понять пропорции и расположение различных элементов.

Объемная модель самодельной печи-каменки из металла
В данном случае объем топки составляет около 130% от объема каменки. Нормальное соотношение. Дымоход смещен назад, что не всегда хорошо — могут возникнуть сложности при устройстве дымохода — он может упереться в потолочную балку — придется дымоход изгибать, что нежелательно. Так что насчет расположения трубы — подумайте.
Еще в среде любителей бани постоянно ведутся споры: бак для нагрева воды в парилке — это хорошо или плохо… Одни регулируют влажность открывая/закрывая крышку бака. Их такой вариант устраивает. Другие говорят, что этот пар «тяжелый», и выносят бак в моечное отделение, а воду в нем греют, встроив в топку теплообменник и соединив его с баком трубами. Следующая схема — печь в баню из металла с баком для воды.

Чертеж печи для бани с баком для воды
Конструкция грамотная — при помощи «искрогасителя» путь прохождения дымовых газов длиннее, дольше он остается в топке, лучше нагревает стенки. Если вы не хотите бак, на его место можно уложить камни.
Интересный вариант с баком, который находится в задней части печи. Дымоход сдвинут назад, и проходит через бак. Высота бака большая, теплосъем будет эффективным — температура дымохода на выходе из бака большой не будет точно.

Вариант небольшой печи с большим баком
Интересно устроена каменка. Она не очень большая, но для небольших и средних парилок ее объема хватит. Закрывается она крышкой, что с одной стороны не очень удобно: закрывать крышку после подачи воды на камни будет проблематично. С другой стороны, это удобно в обслуживании.
Металлические печи для бани: проекты и чертежи
В этом разделе мы рассмотрим проекты и чертежи металлических печей для бани, которые могут быть использованы для создания эффективных и безопасных печей для парной.
Печь из металла для бани с закрытой каменкой
Эта печь разработана для парной размером 2*3*2,3 метра. Она была сделана из листового металла толщиной 3 мм.
Для активизации горения предусмотрено подключение дополнительного воздуховода, проложенного с улицы. Ребра жесткости (уголки) приварены к бокам топки в верхней части топки для предотвращения выгибания металла при сильном нагреве.
Печь с подачей воздуха в верхнюю часть топки
Это тип печи, также известный как печь с дожиганием газов. Она имеет схему подачи воздуха в верхнюю часть топки.
На задней стене приварена пластина из металла. В щель между этой пластиной и задней стенкой топки при помощи трубок-воздуховодов подается воздух из-под колосников. Это устройство решает сразу две задачи: охлаждает заднюю стенку, снижая вероятность ее прогорания, и подает воздух в верхнюю часть, где разогреты до высоких температур дымовые газы.
Печь с подачей вторичного воздуха
Это пример печи, которая работает на похожем принципе, но без дожигания. Размеры не указаны, но это поможет вам понять пропорции и расположение различных элементов.
В этом проекте мы использовали листовой металл толщиной 3 мм. Ребра жесткости (уголки) приварены к бокам топки в верхней части топки для предотвращения выгибания металла при сильном нагреве.

Из какого металла сварить печь. Достоинства
Металл – куда более податливый материал, чем керамика, но сопоставим с ней по прочности. Металл можно плавить и лить, сверлить, резать, гнуть, ковать, он после формовки детали не требует обязательных дополнительных расходов энергии на ее обжиг. Способов производства и обработки металла известно множество, а их научная и производственная база огромна. Поэтому, создавая металлическую печь, можно практически без ограничений применять разнообразные теоретико-конструкторские ухищрения для улучшения ее технико-эксплуатационных параметров без существенного увеличения цены. Если предельный в среднем за сезон КПЛ кирпичных печей составляет около 70%, то для металлической 85-90% не диковина.
Примечание: исходя из современных экологических условий, нужно стремиться получить КПД печи не менее 70%
Удельная, на единицу поперечного сечения, прочность кирпича и вообще керамики с уменьшением толщины детали резко падает, а у металла наоборот, возрастает. В результате такие важные показатели печи, как вес и себестоимость на единицу генерируемого тепла, у металлических печей в 10-20 раз и более ниже, чем у кирпичных. Хорошую новую металлическую печь для обогрева 100 кв. м жилой площади можно приобрести за $250-300, а б/у за $50.
Кроме того, металлическая печь – цельная конструкция, ее можно транспортировать готовой к употреблению, наклонить, толкнуть, ударить, даже уронить, не приведя в негодность. Т.е., металлическая печь мобильна. На месте эксплуатации она не требует фундамента, а ее установка сводится к выводу дымохода в дымовой канал здания. По миновании надобности печь можно убрать и определить на хранение до следующего случая.
Теплопроводность металла высока, а общая теплоемкость печи из него вследствие ее небольшой массы невелика. Поэтому металлическая печь быстро прогревается и так же быстро нагревает помещение. Этот же фактор дает высокий КПД: в кирпичной печи до 20% энергии топлива вылетает в трубу во время протопки, пока в массивном теле печи не наладится внутренний теплообмен и она не начнет аккумулировать тепло.
Далее, металлическое изделие физически более однородно, чем кирпичная кладка, и не пористо. Металлическая печь не отсыревает, не боится долгих перерывов в топке, не требует разгонных протопок после простоев. Фактическое отсутствие, вследствие высокой теплопроводности металла, внутренних тепловых потоков в теле печи, обуславливает быстрое догорание в ней дымовых газов в малом объеме пространства, что облегчает встраивание в печь варочной поверхности и водогрейных устройств.
Наконец, что немаловажно для частных владельцев, заводскую печь из металла можно заранее сертифицировать по пожарной безопасности как готовое изделие. Получить разрешение пожарников на ее использование в таком случае неизмеримо проще как по нервам, так и по деньгам. Есть модели металлических печей промышленного производства, вообще не требующие оформления в МЧС, лишь бы в здании имелся отдельный от вентиляции газоход.
Толщина стенки печи. Поделиться 1 17-01-2013 17:37:30
- Участник
- Откуда: Луганск
- Приглашений: 0
- Сообщений: 80
- Уважение: +2
- Позитив: 0
- Пол: Мужской
- Возраст: 61
- Провел на форуме:
1 день 18 часов - Последний визит:
Варю печь и задумался о теме сообщения. В народе бытует устойчивое мнение, что чем толще - тем лучше. Мол, чем толще, тем дольше не прогорит.
Я, например, слышал рекомендации 4мм нержавейка или 8 мм черная сталь.С точки зрения долговечности с этим доводом трудно не согласиться. Но давайте подойдем с функциональной стороны. Для чего вообще нужна печка? Понятное дело, что бы нагревать.
Допустим, мы хотим нагреть парилку до 100гр. Для этого нам нужно сильнее топить печку. Допустим у нас есть 2 печки одинаковой конструкции, но одна сделана из толстого железа, другая из тонкого. Какая печь сможет быстрее нагреть до 100 гр?
Однозначно можно сказать, что печь тонкая. А нагреет ли толстая печка до 100гр. Что бы это случилось, нужно что-бы определенное к-во тепла передалось сначала от топки к печке, а потом уже печка должна передать нужное количество тепла парной. Для этого нужно время. И чем металл толще, тем это время больше.
В реальности, если металл будет очень толстым, из-за теплопотерь самой парилки, температуры в 100гр. можно вообще не достигнуть.
Температура 100гр. для окружающей нас среды запредельная температура. Что бы ее достигнуть нужно приложить усилия. И похоже большая толщина металла печки может препятствовать достижению этой температуры.
Ps Кстати, производители печей используют тонкую сталь, хотя черная немного более толстая сталь дешевле. !
В связи с вышесказанным, считаю металл 8мм не пригодным для достижения в парилке высоких температур.
Своим сообщением я хочу сказать, что во всем нужна мера и толщиной металла увлекатся не стоит. Потому что это палка о двух концах.
Уважаемые парильщики! Попрошу вас, как людей знакомых с процесом не только в теории (как я), но и на практике, согласиться с моей точкой зрения или опровергнуть ее.
Лучшая самодельная печь для бани. Делаем фундамент
Бани чаще всего делают из дерева: бруса или бревна. Так что, как и в любой другой постройке из дерева, несколько лет в бане идет усадка древесины. Бани из бревен теряют при усадке 8–12 см за 3–5 лет, а из бруса — до 6 см за 3 года. Усадка — это уже довольно ощутимая сила, а теперь представьте, что ей противостоит еще одна — вес печи. Даже небольшая кирпичная печь весит около 3 тонн, она тяжелее самой бани. Вот и получается, что все эти годы усадка давит в одно место, а кирпичная печь — в другое. Нагрузка распределяется неравномерно, и баню со временем перекашивает. Если баня и дом стоят на одном фундаменте, может «повести» весь дом.
Именно поэтому печь планируют еще на этапе проектирования бани, и если масса печи превышает 700 кг, то для нее делают отдельный фундамент — монолитную плиту на песчаной подушке. Высота печного фундамента должна быть такой же, как и высота фундамента бани.

Как сделать отдельный фундамент для печи:
- Обозначьте площадь будущего фундамента, вбив колышки в землю по его углам и периметру. Между колышками натяните веревку, чтобы было проще ориентироваться.
- На этом месте выройте котлован глубиной около 60 см. Нижние 10–15 см расширьте на 5–10 см в каждую сторону для устойчивости.
- На дно положите слой геотекстиля для гидроизоляции и насыпьте 15 см песка. Утрамбуйте его, проливая водой и досыпая песок так, чтобы толщина слоя осталась неизменной.
- Проложите еще слой геотекстиля и насыпьте несколько сантиметров песка. Этот слой нужен для того, чтобы последующий слой щебня не повредил ткань. На песок насыпьте 10 см щебня и также утрамбуйте.
- По контурам котлована постройте опалубку из досок и скрепите их гвоздями или саморезами.
- Положите на щебень армирующую сетку с ячейками размером 15 х 15 см. Арматура не должна касаться щебня, для этого используйте подставку-фиксатор «стульчик» , чтобы между щебнем и сеткой остался зазор в 5 см. Сетку свяжите из арматурных прутов диаметром 1 см и зафиксируйте места соединения прутов проволокой. Между стенками котлована и арматурной сеткой также оставьте зазор в 5 см.
- Приготовьте бетонный раствор. Смешайте 1 часть цемента маркировки от М400, 3 части песка , 5 частей щебня . Сухие компоненты добавьте в бетономешалку и постепенно разбавляйте водой — по инструкции на упаковке цемента.
- Залейте бетон в опалубку так, чтобы он оставался на 15 см ниже грунта. Выровняйте его по уровню и оставьте на 10 дней или больше, чтобы фундамент набрал прочность. После снимите опалубку, а в пустоты засыпьте гравий.
- Покройте фундамент горячим битумом , а сверху положите рубероид — затем повторите слои, чтобы защитить печь от грунтовой влаги.
Толщина нержавейки для банной печи. Нужен ли в бане нержавеющий бак под горячую воду
Ответ на вопрос не так очевиден, как может показаться на первый взгляд. Большинство владельцев парилок, прежде чем покупать баки для воды из нержавейки для бани, долго сомневались в правильности выбора, и дело даже не в высокой цене на бак из нержавейки, пугали именно недостатки, о которых мало кто знает.
О преимуществах использования нержавейки для бани знают все:
- Бак не гниет и не ржавеет, как в случае использования обычного черного металла;
- Замечательный внешний вид полированной стали, декоративные качества;
- Простой уход и обслуживание бачка из нержавейки. Корпус можно мыть и чистить щеткой, моющими средствами и даже ортофосфорной кислотой;
- Емкость из легированной стали не боится термических и механических ударов, механической нагрузки, на поверхности не бывает сколов покрытия, как у эмалированных изделий.
К сведению! Нержавейка — крайне капризный и неудобный материал.
Особенно сложно сваривать из тонколистовых заготовок из нержавейки бак для банной печи. Поэтому хороший баллон из легированной стали под горячую воду обычно заказывают на фирмах, имеющих хорошее оборудование, а главное, – высококлассных сварщиков.

Понятно, что емкость для горячей воды в баню получается недешевой, дороже тех 70-100 долл., за которые можно купить бак из нержавейки в любом салоне, продающем оборудование для бани и печей. Разумеется, это не означает, что делать бак из нержавейки для бани нужно только своими руками, вовсе нет, можно купить отличную модель из легированной или нержавеющей стали с дополнительными функциями, которая прослужит несколько десятков лет без единого замечания. Нужно только постараться правильно выбрать качественное изделие.
Почему прогорает банная печь. Как и чем заделать дыру в металлической печке, если проржавела?
На стыке с трубой печка местами проржавела до дырки. Раньше текло по трубе, поэтому скапливалась вода. Можно ли как-то заделать дырку?
Если да, то как и чем?

Сварка не ляжет, так как металл истончал и прихватиться будет не к чему. Асбест после первого же обжига (мало того что навоняет) распадется на части и уйдет в порошок. Реально можно заделать глиной с песком. Но надо знать соотношения как на керамику или на кирпич. Иначе растрескается и осыплется. Для верности следует этот глиняный бандаж поместить в этакий металлический хомут, который пусть будет немного больше диаметра трубы. По прикидке сантиметра на 2 вокруг трубы и столько же по высоте. Глину можно заменить смесью гашеной извести, золы из той же печки, гипса или цемента и асбестового наполнителя. Я обычно им плиту шпаклюю - держит намертво.
автор вопроса выбрал этот ответ лучшим комментировать в избранное ссылка отблагодарить sprin g9483 74 9 месяцев назадПечка уже старая, металл расслаивается не только в районе присоединения трубы. Лучшим выходом здесь будет, конечно, поменять печку полностью на новую. А совсем хорошо - поменять вместе с дачным домиком) В качестве временной меры дыру можно замазать, например, глиной потолще. Ещё можно взять полоску из жести, согнуть полоску посредине повдоль на 90 градусов, сделать по обе стороны сгиба надрезы и обернуть этой жестяной полоской место прикрепления трубы вокруг. Закрепить латку можно проволокой, обвязав вокруг трубы. Дырку закрыли - искры уже точно не будут лететь в дом. И - выбирать новую печку!
комментировать в избранное ссылка отблагодарить СТЭЛС 9 месяцев назадЭто же потенциальный очаг пожара! По уму только капитальный ремонт!
Но на вопрос отвечать надо.
Для начала устраните течь воды со стороны потолка по трубе (судя по всему не все хорошо с гидроизоляцией кровли и потолочного перекрытия)
Теперь приступаем к ремонту. По уму лучше вообще заменить трубу, да и саму печку - по фото видно что все хлам (это опять я подхожу радикально, и не спроста!)
Но если уж желаете оставить как есть (даже не взирая на довольно серьезную пожароопасность такого состояния) и при этом не имеете рядом мужика с руками растущими от головы, и сварочным аппаратом, то запасайтесь сухой сваркой, зачищайте до "живого" металла трубу и печь, обезжиривайте, и накладывайте толстый-толстый жгут этой сварки (уйдет не один тюбик, и даже не пять - больше) И все это делается на холодной печке.
После этого обогните саму трубу жестью, с перекрытием (наложением сторон листа) вертикального шва не менее чем на 1\2 диаметра трубы, с уширяющимся раструбом к поверхности плиты (закрывающим сварочную замазку) и закрепите хомутами по все длине трубы.