Печь для бани с топкой из предбанника. Установка своими руками
- Печь для бани с топкой из предбанника. Установка своими руками
- Печь для бани с подогревом предбанника. Почему стоит устанавливать печь в бане с топкой в предбанник?
- Как установить печь в бане с топкой из предбанника. Особенности: преимущества и недостатки
- Печь для бани с топкой из парилки. Лучшие производители печей для бани
- Печь для бани из трубы 600 мм топка из предбанника. Схема и размеры
- Установка печи в бане через стену. Требования, предъявляемые боковому дымоходу
- Кирпичная печь для бани с топкой из предбанника. Рекомендации по монтажу
- Проект бани с топкой с улицы. Установка печи в баню с выносной топкой
Печь для бани с топкой из предбанника. Установка своими руками
Чтобы самостоятельно произвести установку кирпичной печи для бани с топкой из предбанника, следует выполнить следующие подготовительные работы:
- место для монтажа печи лучше продумать на этапе строительства помещения;
- перед началом работ обустраивается фундамент под печь. Для этого вырывается котлован. Дно его засыпается щебнем, затем песком и покрывается гидроизоляционным материалом. Укрепляется фундамент кусками арматуры и заливается бетоном;
- укладывается кирпичами площадка под печь;
- в районе дверцы топки на полу крепится металлический лист;
- конструкция печи, проходящая через проем в деревянной стене, обкладывается кирпичной кладкой;
- перед укладкой печи кирпичи погружают в воду, чтобы поры материала заполнились влагой;
- между металлом печи и кирпичом прокладывается изоляционный материал.
После подготовительных работ следует приступить непосредственно к возведению печи:
- Первым этапом выкладывается кирпичом сама печь. Кирпич, которым выкладываются стены дома, не подойдет. Для банной печи нужен тот, что обладает повышенной жаростойкостью. Он должен быть обязательно идеальной формы, без трещин и сколов.
- Сначала каждый ряд выкладывается без использования раствора. Это делается, чтобы подобрать идеальные по форме и размеру кирпичи. Кладка любого из рядов начинается с углового кирпича.
- Первый ряд выкладывается от углов по периметру. Сначала наносится раствор, потом укладывается ряд заранее подобранных кирпичей. Перед укладкой каждый кирпич окунается в воду на 20 секунд. Толщина шва должна быть не больше 5 мм.


- Второй ряд выкладывается со смещением. Швы второго ряда должны быть посередине первого. Аналогично выкладываются следующие ряды.
- На уровне четвертого ряда устанавливается поддувальная дверца. Ее нужно зафиксировать оцинкованной проволокой. Со стороны парной печь обкладывается каменным экраном для защиты от ожогов.
- Вторым этапом устанавливается топочная дверца. Она фиксируется скрученной в несколько раз оцинкованной проволокой.
- Далее, сооружается камера для камней. Размер рассчитывается исходя из количества камней. В завершение ее отделывают стальными листами.
- После возведения печи нужной высоты, сверху кладется стальной лист, на котором предварительно прорезано отверстие.


Печь для бани с подогревом предбанника. Почему стоит устанавливать печь в бане с топкой в предбанник?
Печи в баню с выносной топкой изготавливаются из прочных металлических сплавов, таких как сталь и чугун. Выносная топка изготавливается либо цельной частью каменки, либо присоединенной, чаще из более легких и нержавеющих материалов.
- Топка (внутренняя).
- Конвектор.
- Выносной топливный канал.
- Дымоход.
- Коллектор.
- Перегородка.
- Дверца.
- Зольник, регулятор горения.

Выносной топливный канал производят прямоугольной или пирамидной формы, изготавливают модели с панорамным стеклом, для наблюдения и контролирования топлива.
Наблюдательное стекло придает красоты каменке. Обычно такие стекла охлаждаются, из-за чего комната меньше прогревается. Однако подобный вариант исключает образование копоти в печи.
Когда нужно ставить такую печь?
Такую печь можно ставить, чтобы:
- Когда используют топливо в виде угля не загрязнять парилку угольной крошкой. Уголь горит дольше дров, баня становится экономичнее.

Как установить печь в бане с топкой из предбанника. Особенности: преимущества и недостатки
Разумеется, установка стандартной каменки более проста, чем сложное обустройство такого дополнительного аксессуара, как топка, вынесенная в предбанник или в другое помещение. Это более затратно, но с уверенностью можно сказать, что все это будет перекрыто тем комфортом, который этот вариант создаст при его использовании. Особенно такая конфигурация печки скажет свое слово в зимнее время.
Еще одно из преимуществ – можно обойтись без обустройства системы вентилирования в парной из-за того, что выгорания кислорода в парилке не будет, так как металлические детали печи вынесены за ее пределы.


Исходя из практических соображений, габариты кирпичной печи в первую голову зависят от величины парилки, количества людей, сезонности использования бани, целей использования самой печи.
Вывод топки кирпичной печки в предбанник удобен тем, что
- всегда есть возможность вычистить золу, растопить печь;
- дрова всегда под рукой, они всегда хорошо высушены;
- режим нагрева печи проще контролируется;
- отопление предбанника всегда обеспечивается теплом печи;
- угарный газ в случае неплотного прилегания дверцы топки поступает в предбанник, а не в парилку;
- железные части топки не перегреваются, не выжигают в парилке кислород, не сушат пар.


Недостатки расположения топки печи в предбаннике:
- кирпичная печь долго прогревается;
- печь расходует большее количество дров, чем металлическая;
- для подбрасывания дров приходится выбегать в предбанник.

Печь для бани с топкой из парилки. Лучшие производители печей для бани
В этом рейтинге представлена продукция 6 самых крупных и известных производителей лучших печей для бани. Их выбирают как для коммерческой эксплуатации, так и для использования в домашних условиях. Каждая компания в ТОПе имеет хорошую репутацию и множество положительных отзывов.
В список 6 лучших фирм по производству печей для бани вошли:
- Гефест – компания занимается производством, продажей и установкой печей и каминов для бань и домов. В ее ассортименте есть топки каминные и чугунные, более дешевые и модели дизайнерские, премиум-класса. В основном здесь представлены устройства, для работы которых нужны дрова. Ее изделия отлично сохраняют тепло в помещениях, удобны в обслуживании, позволяют экономить на сырье. Продукция создает идеальный микроклимат в бане и поддерживает оптимальный уровень влажности.
- Harvia – каждая каменка от этого бренда представляет собой дизайнерский шедевр ручной работы. Она создает дровяные и электрические печи для отопления саун. Ее конструкции быстро нагреваются и в течение длительного времени сохраняют тепло, делая посещение парной комфортным. Здесь есть варианты как с прозрачной стеклянной дверцей, так и закрытые модели. Продукция изготавливается из чугуна или стали.
- TMF – основу ассортимента этой фирмы составляют каменки, газовые и дровяные печи для парилки. В среднем, их мощность равна 16 кВт, что позволяет обогревать баню площадью до 20-25 кв. м. Они имеют грамотно продуманную систему парообразования, что делает их применение эффективным и комфортным для человека. Изделия компактны в размерах, не занимают много места в помещении и доступны в плане цены.
- Ферингер – одним из видов продукции этой компании являются печи для бани и сауны. В основном, здесь идет речь о дровяных моделях, являющихся экологичными. Они совершенно просты в эксплуатации и обслуживании, а также имеют длительный срок службы, поскольку изготавливаются из качественных материалов. Тут есть варианты как с глубокой топкой, так и с не очень вместительной, что позволяет воздуху прогреваться быстрее.
- Везувий – фирма предлагает лучшие по соотношению цены и качества дровяные печи для бани и сауны. Они предназначены для получения теплой воды, комфортного пара и поддержания тепла в помещении. Большинство моделей изготовлены из стали, выдерживают повышенную влажность и устойчивы к коррозии. Минимальное количество сварных швов исключает теплопотери и делает эти банные печи лучшими на рынке.
- Вулканкомплект. При разработке печей для парного помещения компания уделяет внимание прежде всего потребностям покупателей. Тут есть варианты как для коммерческого использования, с большой вместимостью камней и высокой мощностью, так и более простые модели для домашнего применения. Производитель предоставляет продукцию, прошедшую тщательную проверку. Некоторые конструкции подходят для установки на площадях до 30 кв. м. В среднем, их вес составляет 100 кг.
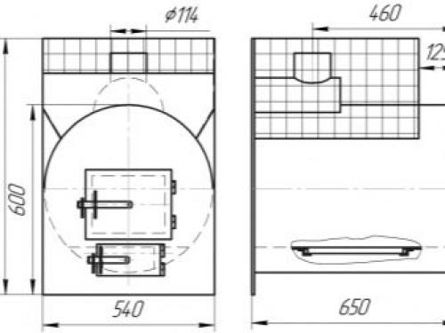
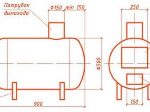
Печь для бани из трубы 600 мм топка из предбанника. Схема и размеры
При выборе наиболее предпочтительного варианта трубы нужно учитывать внутреннее сечение и толщину стали. Для этого смотрим маркировку: например, указано «400*7», что означает 400 мм – диаметр, 7 мм – толщина стенки профильной трубы. Для банных печей рекомендуется применять трубы диаметром 500-600 мм и толщиной – 7-13 мм, но это не является обязательным, выбор размера металлической трубы зависит от площади парилки и требуемого объема воды.


Самый распространенный размер трубы для бани — 530 мм, такие установки считаются оптимальными для стандартных парилок. Некоторые бани не могут похвастать просторными парными, они используются, скорее, действительно, для мытья, а не для длительного отдыха, и тогда здесь размещают небольшие печки, например, диаметром 426 мм. Если пространство парной позволяет, то подойдет и труба диаметром 630 мм.
Вертикальная
Печи вертикального типа обычно обладают компактными размерами. Колосники и каменка находятся друг под другом, и потому диаметр печи представляет собой диаметр трубы. Изготовление этой разновидности не является сложным.


Горизонтальная
Сборка горизонтального варианта требует более трудоемкой работы. Для парных применяют трубчатые печи, они отличаются высокими показателями прочности и создают условия для эффективной теплоотдачи в воздух банного помещения.
Отличия вертикального и горизонтального типов печей:
- пламя в вертикальной трубе проходит короткий путь до дымохода в верхней части конструкции, раскаленные газы мало касаются боковин корпуса, а расположены большей частью в середине;
- горизонтальная разновидность допускает потоки горячего газа к верхней части установки, после чего газ за счет разрежения воздуха выходит в дымоход;
- конструкция вертикальной печи качественно прогревает стены парильни, но пол и воздух вверху помещения не способна прогреть эффективно;
- горизонтальный вариант прогревает все части пространства, кроме области, прилегающей к полу, и места под топкой.


Перед созданием печи любого типа, но особенно горизонтального, требуется сделать грамотный чертеж будущего устройства. Нарисуйте схему изделия, укажите на ней все размеры, и четко следуйте этой инструкции. Ошибки, допущенные на этапе изготовления печи, могут повлиять не только на работоспособность установки, но и угрожать здоровью отдыхающих. К тому же это значительно упростит процесс монтажа.


Мастеру, который впервые решил заняться данной работой, лучше воспользоваться готовым чертежом или установить типовую модель.
Источник: https://dachnayazhizn.info/novosti/pech-dlya-bani-zharstal-osobennosti-konstrukcii
Установка печи в бане через стену. Требования, предъявляемые боковому дымоходу
По статистике, предоставляемой ежегодно МЧС, возгорания бани происходят в основном по вине дымохода. Поэтому к нему предъявляются повышенные требования:
- места соединения различных элементов дымохода герметизируются жаростойким герметиком;
- проход в стене выполняется только сэндвич-трубой. При этом делается дополнительная защита от возгорания с помощью минеральной ваты или специального короба из оцинкованного металла (см. фото);
Сэндвич-труба в стене.
Прохождение стены с помощью металлического короба.
Изоляция базальтовой ватой.
- разрешается выполнять отвод труб под углом до 30 градусов с уходом оголовка дымохода от вертикали не более чем на 1 м;
- подсоединение к патрубку печки проводится с помощью трубы из нержавейки (подсоединять сэндвич-трубу к печке категорически запрещается). Обычная или оцинкованная сталь активно образуют сажу (оседает на стенках), что может привести к самовоспламенению сажевого налета. Это, в лучшем случае, прогорание трубы, в худшем — пожар;
- длина простой трубы, как и всего дымохода, внутри помещения не должна превышать 1,5 м (оптимальное расстояние от печки до стены — 1 м). Связано это с сажей (оседает и на нержавейку, но не так активно) и потерей тяги (при увеличении горизонтального расстояния она падает);
- дымоход не должен проходить над полком — можно случайно сильно обжечься;
Смотрится красиво. Но не соблюдены сразу два требования СП: длина внутренней части дымохода превышает 1,5 м, к тому же проходит над полком.
- окно в стене для вывода дымохода должно располагаться на высоте 1,2-1,5 м (можно выше, если соблюдены другие расстояния) над землей и на расстоянии не менее 500 мм от свеса крыши бани;
- внутренняя часть дымохода изолируется вначале базальтовой ватой (можно использовать и огнеупор из шлаковаты), а поверх оцинкованным металлическим листом;
- строительные правила (СП) категорически запрещают прохождение трубы дымохода через коридор, балкон, лоджию (требование относится к баням внутри частного дома или в подвале);
- не допускается вывод дымохода рядом с окнами, при наличии второго этажа у бани;
- труба в бане через стену может резко повернуть не более трех раз (оптимально 2 — около печки и на улице). В противном случае тяга в ветреный день может вообще отсутствовать;
У дымохода должно быть не более трех поворотов.
- вертикальный участок трубы монтируется от стены на удалении не менее 15 см;
- рядом стоящее здание должно отстоять от дымохода на 1,5 м и более;
- общая высота дымохода не менее 5 м — так обеспечивается нормальная тяга;
- оголовок дымохода должен быть выше коньков крыш рядом стоящих зданий на 15 см и более.
Результат несоблюдения противопожарных правил.
Кирпичная печь для бани с топкой из предбанника. Рекомендации по монтажу
Защита пола при установке печи.
Перед тем как сложить печь для бани, необходимо ознакомиться с правилами техники безопасности. Это позволит в дальнейшем избежать возникновения пожаров, вызванных неправильной установкой печей. Начальный этап монтажа требует подготовить все необходимые чертежи либо сделать их самостоятельно. Ниже приведены рекомендации, которые следует соблюдать, чтобы построить печь для бани, отвечающую всем требованиям безопасности эксплуатации топки:
- нельзя монтировать металлические либо кирпичные печи для бани непосредственно на деревянном полу, поскольку он должен быть защищен теплоизоляционным «пирогом» как в парной, так и перед топкой в предбаннике;
- труба каменки должна быть изолирована от горючих материалов кровли и перекрытия;
- нагретая поверхность кирпичной каменки от стены парной, выложенной из горючего материала, должна располагаться на расстоянии не меньше 32 см;
- металлическая каменка обычно находится от деревянной стены на расстоянии около 1 м;
- топка каменки должна быть расположена от противоположной стены предбанника на расстоянии не менее 1,5 м.
Перед тем как сделать печь, указанные выше значения иногда уменьшают. При этом необходимо позаботиться о специальных защитных экранах с целью безопасного расположения каменки в бане. Перед устройством печи пол покрывают базальтовым картоном, на который сверху необходимо настелить лист металла, выступающего за пределы корпуса каменки минимум на 5 см с каждой стороны. Металлический лист должен служить защитой пола от вылетающих искр из топки.
Устройство дымохода банной печи.
Труба каменки из кирпича для бани, сделанная своими руками, обычно изолируется от горючих материалов, с помощью которых обустроено помещение. Проекты кирпичных печей предусматривают подключение дымохода в последнюю очередь. Отверстие для дымохода необходимо сделать так, чтобы его стенки находились от балок перекрытия на расстоянии не меньше 25 см.
В отверстие вставляется защитный короб, который не должен выступать в парную. К нижней части короба крепят влагостойкий гипсокартон с отверстием под трубу. После устройства дымохода ящик заполняется минеральной ватой. Если печь для бани из кирпича планируется оборудовать железным дымоходом, то можно воспользоваться тем же стальным коробом с изоляцией. Смонтированный на баню из кирпича дымоход должен возвышаться над кровлей не менее, чем на 80 см.
Проект бани с топкой с улицы. Установка печи в баню с выносной топкой
Печь с выносной топкой может быть кирпичной, металлической заводской или металлической самодельной. Мы остановимся на наиболее дешевом ми быстром варианте – печь с выносной топкой будет сделана из металла и обложена кирпичом.
Установка печи в баню с выносной топкой
Почему мы остановились именно на таком варианте?
- По стоимости наш вариант на несколько порядков дешевле все остальных.
- Не требует выполнения большого объема строительных работ.
- По своим эксплуатационным показателям удовлетворяет даже самых требовательных пользователей.
Заводскую металлическую печь обкладывать кирпичом не нужно, она имеет надежную защиту от получения ожогов, это упрощает работы, но ухудшает комфортность пребывания в бане. Дело в том, что печь очень быстро остывает, нужно постоянно подкладывать дрова. Дрова разгорелись в полную силу – в парной слишком жарко, огонь начал угасать – становится прохладно. Самодельную металлическую печь можно обложить кирпичом – не только повышается безопасность пользования, но и значительно стабилизируются показатели температуры.
Каменка с выносной топкойПечь, обложенная кирпичомЕще один важный момент. На многих сайтах рекомендуется использовать во время печных работ шамотный кирпич. Это правильно. Но только при одном условии – используется только «тяжелый» шамот. Дело в том, что есть еще и «легкий» шамот. Он тоже выдерживает значительные температуры, но имеет одну особенность – не пропускает тепло. Такой «легкий» шамот применяют в плавильных печах, где нужна минимальная теплоотдача: при очень высокой температуре внутри топки температура внешних стен повышается незначительно.
Форма шамотного кирпичаХарактеристики наиболее востребованных видов шамотного кирпичаМожете себе представить, как будет греть печь в бане из «легкого» шамота? Этот тип кирпичей можно использовать во время строительства дымоходов – не понадобится их дополнительная теплоизоляция. Отличить два сорта шамотного кирпича очень просто: первый по весу тяжелее обыкновенного красного, второй намного легче.
Разновидности шамотного кирпича
В нашем варианте можно обойтись обыкновенным красным кирпичом, он намного дешевле и по всем эксплуатационным и противопожарным характеристикам полностью отвечает существующим государственным нормативным актам.
Еще несколько «вводных» данных. Выносная топка может быть как снаружи бани, так и в предбаннике (комнате отдыха). Для личной бани предпочтительнее второй вариант: одновременно обогревается комната отдыха и есть возможность в любой момент самостоятельно подкинуть дрова. Делать топку на улице рекомендуется в тех случаях, когда в бане часто моются посторонние люди и заходить в комнату отдыха не всегда возможно.
Топка выведена на улицуВыносная топка в комнату отдыхаНесколько практических советов по выбору проекта металлической печи с выносной топкой
Следует кратко остановиться на этом вопросе, знание некоторых подробностей позволит вам избежать неприятностей во время ее эксплуатации.
СоветФотоОписание| Нагрев воды. | Теплообменник-регистр для печи внутренний Бак-теплообменник на трубу | Существует два варианта – вода нагревается дымовой трубой или непосредственно в специальном отсеке печи. Второй вариант предпочтительнее – нагрев воды происходит намного быстрее. Бывают случаи, когда вы не желаете париться, а хотите только помыться. Со вторым вариантом печи к «водным процедурам» можно будет приступать уже через несколько минут, а с первым придется печь топить длительный период времени. |
| Устройство каменки. | Каменка открытого типа Банная печь с закрытой каменкой | Первый вариант – камни нагреваются на поверхности печи, второй вариант – камни находятся в широком канале дымохода. Здесь также значительная разница во времени нагрева. Но мы должны дать важный совет – осторожно подходите к варианту нагрева камней в канале дымохода. Абсолютное большинство существующих проектов делает каменку открытой в надежде, что большая тяга дымохода не допустит выхода дыма в помещение. Категорически не советуем так делать, каменка во время топки должна закрываться. Сделать крышку несложно, крышка может быть на петлях или съемной. Дело в том, что в период растопки печи или в силу неблагоприятных погодных условий есть большая вероятность попадания дыма в помещение, о последствиях рассказывать не стоит. |
