Водяной котел своими руками. Сварка дровяного котла – самостоятельный монтаж
- Водяной котел своими руками. Сварка дровяного котла – самостоятельный монтаж
- Экономичный дровяной котел своими руками. Как увеличивается длительность горения твердого топлива
- Самодельный котел для отопления дома. Домашняя технология производства отопительного оборудования
- Котел из трубы своими руками. Твердотопливный котел своими руками
- Твердотопливный котел своими руками чертеж. Котлы шахтного типа
- Водяной котел для отопления дома. Устройство и принцип работы
- Котел отопления своими руками чертеж. Особенности изготовления газовых котлов
- Водяной котел на дровах своими руками. Особенности сооружения
Водяной котел своими руками. Сварка дровяного котла – самостоятельный монтаж
Простота процесса заключается ещё и в доступности материалов и инструментов для работы. Потребуются навыки сварного дела. Итак, что нужно:
- Старая бочка из-под ГСМ или самостоятельно сваренный короб. Тару предварительно выжигают от остатков масел – заполняют дровами и растапливают будущий котёл.
- Листовой, толстостенный металл. Из него будет изготавливаться теплообменник. Кстати, альтернативная замена этому – старые, отжившие своё чугунные радиаторы. Пять-шесть секций будет вполне достаточно для корпуса.
- Трубы профильные. Они потребуются для изготовления дымохода и сборки станины, на которую будет монтироваться котёл. Диаметр и толщина стенок должна быть внушительной, чтобы выдержать вес котла, заполненного топливом и водой.
- Приобретаются колосники, заслонки, дверцы. Если помещение внушительное или объект в два этажа, то потребуется циркуляционный насос – без него носитель не поднимется на высоту, и есть риск размораживания системы в морозы. Недурно установить на готовый котёл манометр и термометр, чтобы контролировать давление и температуру носителя.
- Для трубной разводки потребуются металлопластиковые патрубки и радиаторы – котлы отопления на дровах с водяным контуром без этого неприемлемы.
Будущий корпус должен быть обязательно герметичным – это проверяется ещё на стадии выжигания. Если имеются незначительные дефекты в виде дыр, то их заваривают и заполняют бочку водой – течи быть не должно.
Чугун примечателен тем, что долго не остывает. Но если подпитывать горячий котёл холодной водопроводной водой, то теплообменник неминуемо лопнет. Перед монтажом секции разбирают, вымачивают в кислоте и собирают, используя асбест-шнур, вымоченный в олифе.

Экономичный дровяной котел своими руками. Как увеличивается длительность горения твердого топлива
Мечта многих домовладельцев – поставить котел на твердом топливе , к которому не придется бегать с дровами каждые 4—6 часов. Пользуясь этим, производители и продавцы отопительной техники применяют приставку «продолжительность горения» ко всем подряд теплогенераторам, в том числе и пеллетным, работающим самостоятельно до 7 суток.

Разновидности классических котлов с увеличенной топливной камерой
Продолжительность процесса горения принято обосновывать использованием режима тления при ограниченной подаче воздуха. Но сжигать дрова и уголь подобным способом неэффективно, и вот почему:
- Дровяные и угольные котлы достигают своего КПД 70—75% во время максимального горения. При тлении эффективность агрегата снижается до 40—50% (как у обычной буржуйки).
- Тлеющие дрова выделяют мало тепловой энергии. Кому нужен «долгоиграющий» теплогенератор, не обогревающий дом в полной мере?
- Свежесрубленное дерево определенных пород (например, тополь, ива) и низкокалорийное топливо невозможно нормально сжечь в режиме тления.

Заводской котел с увеличенным топливником, где дрова горят сверху вниз
В действительности, твердотопливные котлы длительного горения – это те, что имеют увеличенную топливную камеру, только ее размер влияет на продолжительность процесса при прочих равных условиях. Принцип прост: чем больше в топке дров, тем дольше они горят и выделяют тепло.
Бытовые котлы, способные работать с одной закладки 8—12 часов на дровах и до 24 часов на угле , бывают таких видов:
- классические, с принудительной подачей воздуха;
- действующие по принципу верхнего горения (типа прибалтийской «Стропувы»).
Эти конструкции ТТ-котлов вполне реально изготовить в домашних условиях при наличии необходимого инструментария и практики в сварочном деле. Еще на просторах интернета можно встретить чертежи шахтных котлов на твердом топливе и опилках, но такие отопители довольно громоздкие и непростые в изготовлении, а потому заслуживают отдельной темы.
Самодельный котел для отопления дома. Домашняя технология производства отопительного оборудования
В поисках ответа на вопрос, как сделать котел отопления своими руками достаточно быстро приходишь к убеждению, что ничего особенно сложного в этом нет. При условии грамотной организации производственного процесса. Удобнее отдельные детали делать на верстаке в оборудованной мастерской или ином месте, где можно сделать рабочий стол.
Изготовление деталей корпуса
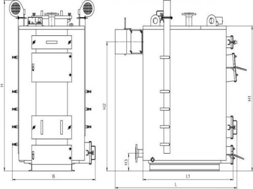
Основу любого твердотопливного котла для отопления частного дома составляет топка, где температура достигает 1000 ⁰С и для ее сборки потребуются материалы с соответствующими характеристиками. Порядок изготовления корпуса следующий:
- При отсутствии жаропрочных сталей можно обойтись и обычной, но для обеспечения долговечности узла его стенки делаются двойными. Передняя, задняя, боковые и нижняя стенки вырезаются из стального листа при помощи угловой шлифовальной машинки;
- Чертежи котлов отопления имеют обозначения точных размеров всех деталей, которые переносятся на металлопрокат при помощи измерительного инструмента и большой линейки. Помимо стенок камеры из стальной профильной трубы нарезается необходимое количество для использования их в качестве ребер жесткости. Из стального уголка изготавливаются усилители для стыков между отдельными частями печи;
- В передней стенке необходимо проделать прямоугольное отверстие, соответствующее по размерам дверцам топочного и зольного бункеров.
Полезный совет: для выполнения сквозного прямоугольного отверстия нужной конфигурации наносим на металл разметку, по углам производим сверление листа при помощи электродрели. Угловой шлифовальной машинкой делаем сквозной порез в средней части и ведем его от центра к краю. Это позволит избежать лишних повреждений листа.

Изготовление емкостей для воды и теплообменников
Эффективная конструкция отопительного котла предусматривает наличие двух баков для воды. Их делают из нержавеющего стального листа, для сварки которого необходимо специальное оборудование и определенная квалификация. Тут лучше довериться профессионалам и заказать эти емкости в специализированной мастерской.

Конструкция теплообменника представляет собой набор из водопроводных труб. При помощи сварочного аппарата они соединяются таким образом, чтобы образовать проточный контур с максимально большой внешней поверхностью. Это обеспечит быструю и наиболее полную теплоотдачу от сгораемого топлива к теплоносителю.
Котел из трубы своими руками. Твердотопливный котел своими руками
Рассмотрим на примере наиболее популярного котла с верхним горением (рис.3). В случае необходимости размеры можно менять пропорционально указанным в чертеже. Отличительной особенностью конструкции является труба, которая служит регулятором подачи воздуха и теплообменником одновременно. Газы, выделяемые в процессе тления топлива, поднимаются вверх и воспламеняются в верхней топке.
Для изготовления необходимы материалы, описанные в разделе 2: трубы, листовая сталь, уголок, утеплитель, асбокартон, электроды.
Первый этап самодельного котла включает следующие шаги:
- Сваривают цилиндрический корпус из трубы диаметром 45 см длиной 150см.
- Днище закрывают вырезанным из листовой стали кругом с помощью сварки.
- В трубе нижнего диаметра (нижняя часть) вырезают прямоугольное отверстие под дверку зольника. Ее можно изготовить также из стального листа или приобрести готовую под размер.
- Топка располагается в верхней части, под ее дверку также вырезают прямоугольник. Дверку обязательно изолируют асбокартоном и асбошнуром по периметру. Все дверки должны закрываться задвижками.
- Из профильной трубы сваривают патрубок для выхода дыма, который будет вставляться в дымоход.
Важно! На поверхности патрубка из-за перепада температур будет образовываться влага (конденсат), ведущая к коррозии, поэтому сварочные швы должны быть высокого качества
- К корпусу котла приваривают ножки из равнополочного уголка.
- Вырезают верхнюю крышку диаметром 46 см, которая будет одеваться сверху на цилиндрический корпус.
Теплообменник для твердотопливного котла своими руками
Второй этап – производство теплообменника:
- Из металлического листа сваривают трубу теплообменника диаметром 40 см длиной 130 см.
- Вставляют ее в цилиндрический корпус, фиксируют зазор в 5 см между трубами, благодаря чему будет образовываться «водяная рубашка».
- Разница в длине труб теплообменника и наружной должна быть не менее 20см. Трубу в трубе фиксируют сваркой, используя заготовленные металлические кольца.
- В верхней и нижней зоне водяной рубашки устанавливают патрубки: один – для подачи, другой – для выхода теплоносителя. Для их изготовления используют трубу диаметром 5 см, на внешней стороне накручивают резьбу, через которую они будут подсоединены к трубам отопительной системы.
- Распределительную трубу, через которую будет подаваться воздух, сваривают из металла большей толщины, чем для корпуса и теплообменника (не менее 5 мм диаметром 6 см). Длину трубы делают на 10 см меньше длины трубы теплообменника (120 см).
Важно! Распределительная труба находится в зоне высоких температур и со временем деформируется и прогорает, поэтому для ее изготовления используется металл толщиной 5 мм и более
- Труба вставляется в подготовленный диск с готовым отверстием. Металлический стальной диск диаметром 38 см приваривается к трубе.
- К основанию диска приваривают минимум 4 уголка, выполняющие роль крыльчатки.
- К верхней части трубы устанавливают задвижку для порционной подачи воздуха и приваривают петлю, на которой фиксируют цепь для поднятия трубы.
Внимание! Чтобы улучшить теплообмен в верхней части трубы устанавливают вентилятор для принудительного наддува
Как правильно собрать котел
После выполнения двух основных этапов приступают к завершающему.
Третий этап – сборка котла:
- Выбирают место установки котла, проверяют уровнем, чтобы не было никаких перепадов, которые могут ухудшить работу теплогенератора.
- Крышку с распределительной трубой натягивают на корпус, предварительно проложив асбошнур. Крышку можно также приварить к корпусу.
- Дымовой патрубок вставляют в дымоход.
- Через выходящие патрубки с резьбой котел подсоединяют к системе отопления дома.
- Систему заполняют водой и выполняют проверку работы котла при неполной его загрузке.
- Если тест прошел нормально, котел загружают на полную мощность.
Твердотопливный котел своими руками чертеж. Котлы шахтного типа
Как уже упоминалось особенностью таких котлов является наличие двух камер: большой вертикальной загрузочной камеры (шахты) и камеры с теплообменником. Топливо поджигается снизу в первой камере и пламя через отверстие попадает в другую, где и отдает свою энергию теплоносителю через теплообменник.
Такие котлы могут быть, как с обычным сжиганием топлива, так и с пиролизным. В первом случае весь необходимый воздух подается через нижнюю дверку, а продукты горения, пройдя через теплообменник, удаляются в дымовую трубу. Во втором случае к месту горения подается ограниченное количество первичного воздуха, где дрова сгорают с выделением пиролизного газа. Кроме того такие конструкции оборудуются дополнительной камерой дожига, куда подается вторичный воздух и осуществляется сжигание газа. В верхней части теплообменной камеры расположена задвижка, которая отрывается при розжиге и позволяющая дымовым газам напрямую выходить в дымовую трубу.

Чертеж-схема котла шахтного типа с камерой дожига
1 — заслонка подачи первичного воздуха; 2 — нижняя дверка для поджига и чистки; 3 — решетка; 4 — дрова; 5 — загрузочная дверка (может располагаться и сверху); 12 — труба с нагретой водой (подача); 13 — пусковая заслонка; 14 — заслонка дымовой трубы; 15 — теплообменник; 16 — подача вторичного воздуха; 17 — камера дожига; 18 — обратка; 19 — слив; 20 — чистка; 21 — заслонка; 22 — колосниковая решетка; 25 — зольник.

Водяной котел для отопления дома. Устройство и принцип работы
Принципиально двухконтурные модели мало чем отличаются от классических твердотопливных одноконтурных котлов. Единственное отличие заключается в наличии дополнительного контура ГВС, санитарная вода в котором не смешивается с технической в контуре отопления. Организован второй контур может быть по-разному, ранее водяную рубашку просто разделяли на две части.
Более соверешенным вариантом является помещение внутрь водяной рубашки с теплоносителем первого контура отопления змеевика из труб для второго контура горячего водоснабжения. Такое взаимодействие контуров предохраняет от перегрева трубки змеевика ГВС, и они дольше работают, не образуя накипь внутри себя.
Устройство двухконтурного твердотопливного котла на примере модели Wirbel ЕСО СКB со встроенным накопительным баком.
Сейчас же наиболее распространены контуры ГВС, подогреваемые ТЭНами (трубчатыми электронагревателями). В режиме отопления котел работает как самый обычный классический энергонезависимый твердотопливник, но если нужно подогреть контур ГВС, имеется встроенный сменяемый блок ТЭНов, обычно мощностью 3-9 кВт. В остальном отличий от классического, известного всем тт котла нет.
Двухконтурные твердотопливные котлы длительного горения
Благодаря камере шахтного типа и горению сверху вниз можно достигнуть горения одной закладки топлива до 24 часов или даже 7 суток. Однако сделать такую конструкцию двухконтурной сложно, а ее стоимость будет сравнима с двумя отдельными, часто более надежными, твердотопливными котлами. Поэтому, несмотря на спрос, на сегодняшний день не существует двухконтурных твердотопливных моделей длительного горения, производством таковых не занимаются даже локальные малоизвестные производители. Тем не менее, если вам удалось найти двухконтурные модели длительного горения, просьба сообщить об этом в комментариях.
Котел отопления своими руками чертеж. Особенности изготовления газовых котлов
Теоретически сделать котел отопления газовый своими руками не представляет особой сложности для людей, которые умеют работать с металлом и имеют необходимые навыки и инструменты. Газовые котлы относятся к изделиям повышенной опасности, поэтому на
самодельные газовые котлы отопления нужно получить разрешение для установки в газовой службе, для которого необходим сертификат на изделие.
Следует учитывать, что получение сертификата дело довольно затратное и малейшее отклонение от установленных норм и правил ведет к отказу. Стоит ли рисковать? К тому же современными СНИиП изготовление своими руками котлов отопления работающих на газе запрещено!
- Как залить воду в открытую и закрытую систему отопления?
- Популярный напольный газовый котел российского производства
- Как грамотно спустить воздух из радиатора отопления?
Водяной котел на дровах своими руками. Особенности сооружения
Самодельный отопительный котел для кирпичной печи может быть выполнен в различных вариациях, в зависимости от применения. Подобная конструкция может быть установлена не только в жилом доме, но и в служебных или хозяйственных помещениях, например, в теплице.
Самым важным этапом является правильная установка котла. Он должен находиться непосредственно в печи. Самодельный водяной котел отопления в кирпичную печь на дровах или угле устанавливается в виде буквы «П». Чертежи для данного процесса можно легко найти во всемирной паутине. Оптимальным материалом для его сооружения станет труба или листовой металл.
Для сооружения отопительного агрегата также пойдут неиспользуемые чугунные радиаторы, которые использовались в старых системах отопления многоэтажных жилых помещений. Перед монтажом радиатор нужно хорошо очистить, промыть и обработать соляным раствором. Это позволит значительно продлить срок службы самодельного водяного котла.
Сварить водяной котел для печи можно самостоятельно. Это несложно сделать при наличии чертежей и небольших навыков в этой сфере. Если же опыт отсутствует, то сварку оборудования для печи нужно доверить специалисту.
Несмотря на явные преимущества, подобное водяное отопление для печи имеет и свои недостатки:
- Работа печи требует постоянной диагностики и контроля.
- Зольная камера печи должна регулярно чиститься.
- Подобная конструкция с печью используется преимущественно в холодное время года.
- Износ конструкции котла в связи с высокой температурой внутри печи.
- Отсутствие системы аварийного контроля, что обусловлено особенностями конструкции кирпичной печи.
Однако, при отсутствии других вариантов и при качественно выполненной работе, отопление с использованием печи будет неплохим вариантом.