Как сделать мини-буржуйку своими руками. Изготавливаем мини-буржуйку самостоятельно
- Как сделать мини-буржуйку своими руками. Изготавливаем мини-буржуйку самостоятельно
- Буржуйка своими руками чертежи самая эффективная. Другие варианты печей
- Буржуйка своими руками из трубы. Пошаговая инструкция по изготовлению
- Буржуйка своими руками чертеж. Буржуйка своими руками: обзор самой эффективной и экономной буржуйки, инструкция, схема, чертежи, фото
Как сделать мини-буржуйку своими руками. Изготавливаем мини-буржуйку самостоятельно
Собрав такую печь самому, вы недорого сможете отопить любое небольшое помещение. Мини-буржуйка своими руками собирается просто. Для этого необходим определенный перечень инструментов:
- уровень для строительства, сантиметровая лента;
- сварочник;
- балгарка;
- зубило;
- листовой металл для составных частей;
- дымоходный канал;
- бочка (для цилиндрической модели);
Распространенным вариантом котла, является дровяной. Благодаря высокому КПД, этот прибор может равномерно отапливать помещение до тех пор, пака горят дрова. Ниже следует подробная инструкция сборки дровяной буржуйки.
Пример простой буржуйки из бочки или пустого газового баллона
Ход работы
Будущая печь должна представлять собой камеру, разделенную на 2 отсека. Верхний предназначен для сгорания топлива, нижний нужен для накопления золы. Отделения разделяются решеткой. Готовое изделие должно иметь 2 дверцы, одну для топочного окна, другую для зольника. В верхней части буржуйки оборудуется патрубок для отвода продуктов горения. Ниже приведены несколько вариантов изготовления буржуйки. Советуем подробнее прочитать на нашем сайте инструкцию по буржуйке длительного горения .
Ёмкость будущей печи будет стоять горизонтально. Для этого возьмем старый газовый баллон. Это почти готовая мини-буржуйка на дровах. Не нужно делить его на 2 части, вместо этого, камеру для золы можно приварить снизу, что сэкономит рабочий объём устройства. Далее следует вырезать топочное окно.
В корпусе баллона высверливаются отверстия, через которые в зольник будет попадать отработанное горючее.
Топочная дверца покупается отдельно и врезается в подготовленное отверстие. Когда отсек для золы приварен, можно начинать делать опоры для печи. Для этого, сварочным аппаратом к днищу камеры крепятся металлические трубы. Длина труб выбирается индивидуально. С обратной стороны делается отверстие для патрубка дымовой трубы.
Когда свободного пространства мало, можно сконструировать вертикальную модель. Делить баллон на 2 части обязательно. К внутренним стенкам баллона привариваются крепления, на них будет опираться решетка. Верхняя часть закрывается стальным листом. Он может служить варочной поверхностью.
Вертикальный вариант мини-печки занимает меньше места и позволяет разогревать пищу
Совет: Не делайте дно топочной камеры из тонкого, легкоплавкого металла. Он быстро придет в негодность. Идеальным вариантом будет использование старой чугунной решетки. Чугунный котелок подойдет в качестве заглушки, которая может стать емкостью для подогрева воды.
Буржуйка своими руками чертежи самая эффективная. Другие варианты печей
Конечно, далеко не все выбирают буржуйки. Многие автовладельцы в поисках самых экономных способов обогрева гаража зимой останавливаются на вариантах, работающих на отработке или от газовых баллонов. Несмотря на то, что схема работы таких печей приблизительно схожа, все же остановимся подробнее на альтернативах, чтобы вы смогли выполнить проект своими руками без какой-либо помощи специалистов.
На отработанном масле
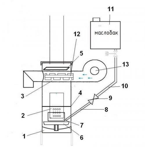
Главное отличие такой конструкции от стандартной буржуйки — она состоит из 2 камер. Их между собой соединяют металлической трубой с отверстиями: из них как раз и выходит пламя.
- нижняя камера — предназначен для отработанного топлива, здесь оно сгорает и превращается в газ;
- верхняя камера — для смешивания образовавшегося газа с воздухом, чем оптимальнее конструкция — тем лучше теплоотдача.




Порядок работы:
- берем листовой металл и придаем ему нужную конфигурацию, этот этап можно пропустить, если у вас есть готовая круглая либо прямоугольная металлическая емкость;
- делаем из него нижний отдел, в который заливается отработанное топливо, изготавливаем заслонку, чтобы можно было регулировать поступающий в камеру воздух;
- приделываем ножки снизу из толстой проволоки или любого подручного материала — обеспечат устойчивость печи;
- в отверстие сверху вставляем перфорированную трубу с толстыми металлическими стенками — она служит опорой для верхнего отсека и постоянно подвергается воздействию высокой температуры, поэтому должна быть надежной;
- для изготовления верхней камеры берем металлическую заготовку цилиндрической формы;
- финальный штрих — дымоход, устанавливается сверху.
Длительного горения
Такую печь легко изготовить из старого газового баллона. Либо металлической бочки с прочными стенками. Обязательные условия:
- цилиндрическая форма;
- вертикальное расположение.
Для изготовления необходимо сварить между собой металлический круг, выполняющий функцию груза, и небольшую трубу. Они помещаются непосредственно в заготовку и обеспечивают равномерное горение топлива за счет стабильной подачи воздуха.
Буржуйка своими руками: самая эффективная схема и альтернативы
Конечно, далеко не все выбирают буржуйки. Многие автовладельцы в поисках самых экономных способов обогрева гаража зимой останавливаются на вариантах, работающих на отработке или от газовых баллонов. Несмотря на то, что схема работы таких печей приблизительно схожа, все же остановимся подробнее на альтернативах, чтобы вы смогли выполнить проект своими руками без какой-либо помощи специалистов.
Альтернативы буржуйки: работающие на отработке и газовых баллонах
Главное отличие такой конструкции от стандартной буржуйки — она состоит из 2 камер. Их между собой соединяют металлической трубой с отверстиями: из них как раз и выходит пламя.
Изготовление печи из газового баллона
Такую печь легко изготовить из старого газового баллона. Либо металлической бочки с прочными стенками. Обязательные условия:
- Для изготовления необходимо сварить между собой металлический круг, выполняющий функцию груза, и небольшую трубу.
- Они помещаются непосредственно в заготовку и обеспечивают равномерное горение топлива за счет стабильной подачи воздуха.
Таким образом, с помощью простых инструментов и материалов вы сможете создать эффективную печь для обогрева гаража зимой.


Буржуйка своими руками из трубы. Пошаговая инструкция по изготовлению
Приготовив для работы весь набор инструментов и материалов, приступаем к процессу изготовления буржуйки из трубы своими руками:
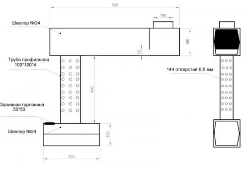
- Готовый отрезок трубы помещаем на ровную поверхность, выставляем защитный экран на расстоянии 5 мм от лицевой стороны и прихватываем его к трубе. Здесь важно иметь опыт выполнения потолочных прихваток, хотя на экран нагрузка практически отсутствует. Прихватки ставим через 60-80 мм.

- Внизу печи отступаем на 50 мм, размечаем продольные линии по всей длине трубы и прихватываем уголки для укладки колосниковой решетки. Для ее изготовления размещаем длинные детали из арматуры, вставляем по краям перемычки и прихватываем их. Теперь, отступая от перемычки 10 мм, стыкуем следующую перемычку. Таким образом, набираем решетку из арматуры, размером 600/400 мм. После этого перевернув решетку, ставим прихватки с обратной стороны.
- Укладываем решетку колосника на место и стыкуем листы металла с лицевой и задней стороны. Нельзя допускать перекос и большие зазоры между листом и трубой. Если труба отрезана криво, придется выравнивать заготовку, обтачивая стенки болгаркой. Проверив правильность сборки, приступаем к обварке стыков. Шов должен быть герметичным, поэтому после сварки оббейте шлак и проварите места прожига, раковины и непровар.

- Существует еще один вариант установки колосниковой решетки более практичен. Внизу трубы вырезается прямоугольник с небольшими отступами по краям, снизу трубы приваривается заготовка из профильной трубы (для сбора золы). Сверху кладется колосник. Вот как это выглядит:

- Обтачиваем выступающие углы и место соединения деталей зачистным камнем. Затем переворачиваем заготовку лицом вверх и размечаем проем для закладки дров. Ставим на болгарку отрезной диск и вырезаем паз по разметке.

- Напильником убираем заусеницы, выкладываем дверцу с приваренной ручкой и шпингалетом и устанавливаем ее на готовые петельки. На листе выставляем и прихватываем ответную часть замка, а на дверце выставляем самодельный замочек – шпингалет.

- Переворачиваем и располагаем буржуйку донышком вверх, размечаем и привариваем ножки из профильной трубы, предварительно зарезав углы для лучшей стыковки к корпусу. Внизу ножки зарезаем под небольшой угол и привариваем пятаки из листа, для лучшей устойчивости буржуйки.

- Устанавливаем печь на ножки и накладываем сверху печи заготовку с отверстиями для трубы дымохода и конфорки. Разместив ее загнутыми кромками вниз и проверив правильность установки, прихватываем пластину.

- Электросваркой прожигаем отверстия в трубе и устанавливаем трубу, диаметром 120 мм для вытяжки и блина для кастрюль.

- Детали обвариваются по кругу, стыки должны быть герметичными. На конце трубы вентиляции привариваем шиберную заслонку для регулирования тяги.
Буржуйка своими руками чертеж. Буржуйка своими руками: обзор самой эффективной и экономной буржуйки, инструкция, схема, чертежи, фото
Отличная печь-буржуйка является довольно известной конструкцией, которая способна эффективно и быстро обогреть небольшое по площади помещение.
Самостоятельное строительство подобных печей не является новинкой в кругах мастеров, ведь конструкция буржуйки идеально подойдет для отопления гаражей, мастерских, сараев и подсобных помещений.
Для создания самодельной буржуйки, зачастую используется большое количество разнообразных материалов, но схема работы устройства примерно одинакова для всех моделей.
Особенности строения буржуйки
Любая модель буржуйки, собранной своими руками, независимо от модели и используемого материала, представляет собой конструкцию со следующими комплектующими:
- Цельный корпус, который располагается на опорных ножках.
- Экран.
- Дверца зольника, через которую производят чистку нагоревшей золы и удаление остатков несгоревших дров, угля, опилок.
- Важный элемент буржуйки – это дымоходная печь. От её устройства и качества исполнения зависит сила тяги в печи.
- Отдельно обустраивается дверца топки.

Для печей, на которых предполагается разогревать пищу, готовят удерживающие решетки. Выделяют также парогенераторные конструкции, где обязательно должны быть раздельные камеры для накопления пара. В различных типах устройств могут наблюдаться различные изменения, и могут потребоваться в работе дополнительные детали.

Требования к созданию буржуйки
Наличие печи-буржуйки, несомненно, позволяет существенно сэкономить на отоплении и финансовых расходах. Однако, в процессе строительства необходимо помнить, что конструкция должна соответствовать ряду критериев:
- Правильность сборки всех комплектующих. Малейшие дефекты в устройстве приведут к сбоям в работе печи. Например, некачественная тяга неизбежно приведет к задымлению в помещении.
- Достаточный обогрев помещения. Для соблюдения данного параметра мастера должны заранее готовить проект и чертеж будущей печи, рассчитывать предполагаемую мощность конструкции.
- Относительная изолированность буржуйки. Вокруг самодельной печи не должно быть легко воспламеняющихся предметов, горючих жидкостей и газа. А само устройство лучше установить на огнеупорную площадку, например, из бетона.

Сама конструкция должна быть максимально устойчивой, для чего особое внимание уделяют монтажу опорных ножек. Самая эффективная самодельная буржуйка в полной мере отвечает всем поставленным требованиям.
Виды топлива, используемого в буржуйках
От вида используемого топлива зависит количество выделяемого тепла, площадь, подлежащая обогреву, возможность задымления в помещении. Наиболее известными признаны следующие виды топлива:
- Дрова. В качестве самой эффективной моделью печи признана буржуйка на дровах.
- Уголь является более дорогим топливом. К плюсам использования относят длительное горение и большее количество выделяемого тепла. Ограничивает практическое применение достаточно высокая стоимость.
- Торф и опилки широко используются для отопления небольших по площади помещений. Однако, для подобного топлива следует соблюдать особые условия хранения, чтобы брикеты не намокли. В случае попадания влаги, материал не будет гореть или будет подавать слишком мало тепла.

Абсолютно запрещено использовать в качестве основного источника обогрева жидкие горючие смеси (бензин, масла), которые могут стать причиной пожара.

К тому же, в процессе горения образуются насыщенные пары и едкие смолы, которые вызывают раздражение глаз и дыхательных путей у человека.

Идеи для создания буржуйки
Мастера и домашние умельцы научились строить печи для обогрева вспомогательных помещений из различных подручных материалов. Из чего можно сделать буржуйку:
- Металлический бидон.
- Кирпичная кладка.
- Сделать буржуйку в гараж можно из использованной железной бочки.

Наиболее часто применяется в самостоятельном строительстве листовое железо, которое имеет удобную форму для окончательной сборки конструкции.
Делаем буржуйку пошагово из листового железа
Самым практичным способом изготовления печей считается сборка конструкции из листового железа.

Материал является достаточно прочным, легко поддаётся обработке, при правильной обработке антикоррозийным составом может длительно выполнять свои функции.

Подготовка инструментов для работы
Сборка печи предполагает работу со сварочным аппаратом, а значит, необходимо заранее подготовить рабочее место достаточного размера без воспламеняющихся предметов. Также пригодится мастеру:
- Сварочный аппарат.
- Болгарка для резки металла.
- Рулетка и строительный уровень.
- Труба для организации дымохода.

Для крепления деталей между собой необходимы стальные уголки.












