Как делается железная печь для бани своими руками. Положительные и отрицательные стороны банных печей, изготовленных их металла
- Как делается железная печь для бани своими руками. Положительные и отрицательные стороны банных печей, изготовленных их металла
- Кирпичная печь для бани своими руками. Возведение кирпичной печи в бане – основные детали процесса
- Лучшая самодельная печь для бани. Полезная информация
- Металлическая печь своими руками: чертежи. Особенности конструкции, чертежи
- Простая печь для бани своими руками. По расположению топки
Как делается железная печь для бани своими руками. Положительные и отрицательные стороны банных печей, изготовленных их металла
Для бани существует два вида печей – металлические и кирпичные.
Основным преимуществом печей из металла является их компактность и мобильность. Они отлично подходят для помещений небольшого размера. Самодельные устройства славятся удобством в использовании. Их необязательно фиксировать на одном месте и при необходимости всегда можно передвинуть.
Железные печи быстро нагреваются, что уменьшает возможность отравления угарным газом.
Конструкции металлических печей делятся на два типа:
- Печка холодного типа. Применяется для монтажа в хорошо прогреваемых помещениях. Возможность перегрева исключается, потому как у нее имеется система контролирования температуры. Обжечься об нее практически невозможно, поскольку стенки не нагреваются свыше пятидесяти градусов.
- Печь горячего типа используется для монтажа в помещениях с нерегулярным использованием. Эта разновидность также быстро нагревается и хорошо отдает тепло. В таких печах отсутствует возможность контролировать температуру.
Положительными сторонами железных печей являются:
- компактные размеры и возможность их транспортировки или перемещения в другую часть комнаты;
- им не нужен огромный фундамент, достаточно чтобы поверхность, где будет находиться печь, была ровной и с огнеупорным покрытием;
- особенностью работы железной печи для бани является ее постоянное горение, поэтому перед походом в баню нужно обязательно ее протопить;
- доступная цена – на изготовление печи из металла не нужны дополнительные расходы; инструкцию, как сделать печь самостоятельно, можно найти в Интернете или журналах, посвященных самодельному изготовлению различных устройств для дома;
- срок службы зависит от качества изготовления и толщины металла, он составляет от 5до 25 лет.
Железная печь для бани имеет также и негативные стороны:
- она не может отапливать большие помещения;
- не накапливает тепло, поэтому для поддержания температура нужно следить за горением топлива;
- обязательным условием являются двойные стенки, которые сохраняют между собой воздушную прослойку. Именно она предотвращает тепловой удар при нахождении в небольшом помещении;
- небольшой уровень пожаробезопасности, поэтому обязательно нужно обеспечить интенсивную защиту внутренней обшивки.
Кирпичная печь для бани своими руками. Возведение кирпичной печи в бане – основные детали процесса
Долговечной и красивой декоративной альтернативойстанет кирпичная печь для бани. Хоть ее возведение требует немало сил, времени, денежных затрат, но прослужит она десятилетия, не теряя привлекательности и рабочих свойств.
Кладка может быть выполнена с нуля на заказ с выбором индивидуального дизайна, размеров. Гораздо дешевле обойдется самостоятельное строительство. Важно просто придерживаться пошаговых инструкций опытных печников.
Пользователи часто ищут:
- Интерьер бани из бревна
Конструкция банных каменок
Печное оборудование устанавливают в парилке. Его основная функция – отопление помещения, выработка пара. Постоянный диапазон температур в парной – от 40 до 100 градусов.
В каменке есть топливник для дров, закрытая камера, куда сверху свода топливника кладут каменные булыжники, чугунные чушки. Средняя толщина слоя – до 22 см. Чугунные чушки быстрее камней набирают температуру, что ускоряет нагрев каменки. В своде специально оставляют щели. Через эти зазоры потом сквозь булыжники проходят дымовые газы и по дымооборотам выходят в трубу наружу.
Чтобы получить пар, раскаленные камни через специальное отверстие поливают водой. В этот же проем выходит пар.

Для парных в маленьких банях под аркой сверху топливника крепят змеевик, где будет нагреваться вода. В больших русских банях, где вода подается централизовано из котельных, змеевик не монтируют.
Чтобы повысить прочность каменки, можно поместить ее в каркас из металла.
Различные проекты: фотогалерея
На фотографиях наглядно показаны способы оформления, кладки печей для бань разной площади, техники укладки кирпичей, идеи красивой отделки.
Плюсы и минусы банных печей из кирпича
В пользу кирпичной печи стоит выделить следующее:
- Экологичность сырья, что безопасно для здоровья.
- Длительный срок службы. Она может служить до 100 и более лет.
- Износостойкость и прочность материала.
- Возможность долгое время удерживать и отдавать тепло. Вода в баке, нагретая с вечера, будет теплой до утра.
- Выработанный пар получается хорошего качества.
- Продукты горения не проходят через внутреннюю каменку.
- Печка способна обогреть большие помещения.
- Кирпич относится к пожаробезопасным материалам.

Из минусов пользователи отмечают то, что:
- Построить конструкцию быстро и без опыта не выйдет. Здесь нужно правильно составить чертеж, провести расчеты, понимать принципы кирпичной кладки.
- Печь имеет большой вес. Поэтому под нее в обязательном порядке заливается надежный фундамент.
- Конструкция нагревается долго, в сравнении с металлическим аналогом.
- Длительный нагрев влечет за собой повышенный расход древесного топлива.
- Высокая стоимость работ (при заказе у печника). Большие денежные траты на покупку материалов.
Несмотря на такое количество недостатков плюсы конструкции гораздо весомее, из-за чего спрос на строительство кирпичной печи с баком для воды только растет.
Виды топки
Печи различают по тому, как сложена топка. От это зависит способ использования устройства, качество пара.
По-черному
Старинный вариант оборудования. Дымоход отсутствует. Таким способом возводили печи наши предки.

В топке бани по-черному расход дров для отопления минимален, но весь дым и сажа попадают внутрь помещения. Из-за чего стены быстро покрываются копотью.
Конструкция относится к ряду с повышенной пожарной опасностью.
Большинство печников отказалось от этого способа кладки топки.
По-серому
В сером варианте устройства печь оснащена дымоходом. Но он построен так, что часть отходов от горения (сажа, копоть) оседают внутри кирпичных стенок дымоходной трубы. Поэтому всегда есть риск возгорания внутри печи и перехода пламени на помещение.

При такой топке нужен постоянный контроль. Не рекомендуется оставлять баню без присмотра до тех пор, пока полностью не прогорят все дрова.
По-белому
Имеется полноценный дымоход, через который весь дым выходит наружу, не попадая внутрь помещения.
В таких печах камни закрыты плотной крышкой из металла, дверцей (на выбор). Их открывают только после того, как прогорели все дрова.
Встречаются изделия, где камни отделяются от дымовых газов варочной плитой. Печь работает постоянно (для принятия бани выполняют подогрев) или периодически (тщательная единоразовая топка перед принятием бани).

Для отопления банных каменок рекомендуется пользоваться дровами лиственных пород. Они не выделяют смолянистой гари после прогорания. Дровяную печь проще регулировать и поддерживать ее температуру на одном уровне.
Применять уголь не рекомендуется. Он быстро нагоняет высокую температуру, которую сложно регулировать. Дым очень вреден для дыхательной системы. Стенки перегреваются и со временем начинают лопаться.
Лучшая самодельная печь для бани. Полезная информация
Традиционно самодельные печи для бань возводят из кирпича
Этот материал способен равномерно прогреваться и медленно отдавать тепло, что важно для образования целебного пара. Если парная имеет малую площадь, всю конструкцию стараются располагать в моечной, а в парилку выводить только бок печи
Более простые конструкции печей выполняют из металла. Универсальный вариант — печи, в которых используется как кирпич, так и металл.
Между печью и стеной (а также любой другой деревянной банной конструкцией) должен быть отступ. Для кирпичной печи это расстояние составляет 30-40 см, для металлической (обложенной кирпичом) – 60-70 см, для металлической печи или трубы из металла -100 см.
Вышеприведенные расстояния могут быть уменьшены только в том случае, если стены или другие деревянные конструкции, которые находятся в непосредственной близости к печи, защищены от случайного возгорания фольгой с асбокартонном.
Самодельная печь из металлической трубы: схема расположения конструктивных элементов.
Самодельная печь выкладывается из обычного кирпича. Дырчатый, щелевой и силикатный кирпичи использовать не стоит, поскольку они не дают равномерного прогрева и быстро разрушаются под воздействием высоких температур. Не используют также плохо обожженный кирпич. Можно брать кирпич б/у, если он достаточно крепкий и на нем отсутствуют сколы и трещины. Обычно это кирпичи от старых разобранных стен и печей. Перед использованием его очищают от раствора и сажи.
Размер кирпича, который может использоваться, должен соответствовать 250х120х65 мм
Очень важно, чтобы все его углы и грани были прямыми, форма – правильной, а различные дефекты – отсутствовали. Чаще всего самодельная печь в баню выкладывается кирпичом марок 75-150 с плотностью 1700-1850 кг/м³ и массой 3,6-3,8 кг
Качественно обожженный кирпич издает звонкий звук при простукивании.
Металлическая печь своими руками: чертежи. Особенности конструкции, чертежи
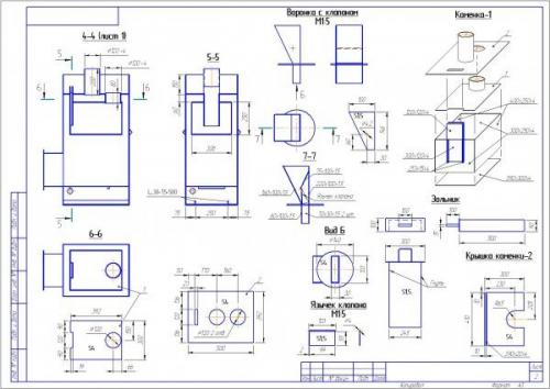
Существуют различные типы отопительных устройств такого вида, их объединяют общие элементы конструкции:
- Корпус — изготавливается чаще всего из листовой стали, в которой удобно вырезать отверстия для дымохода и дверец топки, зольника.

Фото 1. Чертёж металлической печи для бани (вид спереди, сбоку) и изображение устройства в готовом виде.
- Топочная камера — обычно выполняется отдельный короб из стали достаточной толщины ( не менее 5 мм ), состоящий из самой топочной камеры и приваренной снизу конструкции выдвижного зольника. От топки он отделяется стальной решеткой с крупными ячейками. Помимо сбора сажи, зольник выполняет функцию подачи воздуха в топочную камеру, то есть создает тягу.
- Каменка — металлическая корзина для камней, чаще всего располагается прямо над топкой для лучшего прогревания. Каменка бывает двух типов: открытая, обеспечивающая удобное создание пара, или закрытая, расположенная внутри корпуса печи.
- Бак для воды — может располагаться как рядом с каменкой, так и над ней. Обычно бак с водой снабжается специальным краном, подающим воду на раскаленные камни, это обеспечивает формирование пара.
- Дымоход — отводит продукты сгорания, дым и горячий воздух на улицу, также создает тягу.

Фото 2. Чертёж банной печки из металла: проработана каждая деталь устройства, указаны размеры.
Металлические печи имеют свойство сильно нагреваться при эксплуатации, интенсивный жар может приносить дискомфорт находящимся в парилке, а раскаленная поверхность стать причиной ожогов. Поэтому такой тип устройств обычно облицовывают камнем или кирпичом — помимо защиты от жара, экран наряду с каменкой выступает как накопитель тепла. После того как печь погаснет, кирпичный экран еще долго будет обогревать воздух, просушивая парную после ее использования.
Существует еще один распространенный способ снизить чересчур сильный жар от печи: топочная камера выкладывается изнутри шамотным (огнестойким) кирпичом . Этот способ называется футеровкой и имеет свои минусы. Перегретый воздух, попадая в дымоход, может стать причиной возникновения пожара. Поэтому если выполняется футеровка топочной камеры, рекомендуется обязательно установить над ней каменку для поглощения части жара.
Простая печь для бани своими руками. По расположению топки
Есть много чертежей, как сделать печь для бани своими руками из металла или кирпича. Главное отличие состоит в расположении топки.
Самый простой вариант, когда вся печь находится внутри парилки. Оттуда же подбрасываются дрова. Такая конструкция значительно дешевле и пользоваться ей довольно просто. Но есть недостатки: в маленьком помещении трудно создать большой запас топлива. Пользоваться такой печкой нужно аккуратно, ведь в тесноте можно случайно обжечься о горячую топочную дверку.
Для удобства и безопасности топочную дверцу можно вынести в предбанник. При этом в парилке остаётся каменка и бак для нагрева воды.
По принципу нагрева каменки
В современном мире наиболее распространены печи постоянного нагрева. Их принцип действия не предполагает контакта камней с выходящими продуктами сгорания. Каменка располагается или в решётчатых кузовах, которыми покрыта поверхность корпуса, или в приваренной металлической ёмкости. Больше всего здесь подходят камни средней фракции, например, крупный гравий. Такая система позволяет нагреть каменку до температуры 300-400 градусов, не подвергая её налёту из сажи.
Но одно из главных преимуществ таких печей в том, что они более чувствительны к нагреванию. Поэтому регулировать и поддерживать температуру можно во время принятия водных процедур. При подбрасывании новой порции дров камни разогреются уже через несколько минут.
Есть и так называемые печи периодического нагрева. Их принцип работы заключается в отведении раскалённых газов через каменку, которая находится между топкой и дымоходом. Таким способом можно разогреть камни аж до 1000 градусов. Но растапливать такие печи нужно заблаговременно, а купаться можно только после полного прогорания топлива и выхода продуктов горения.
Конструкция предварительного нагрева – это классическая схема, по которой испокон веков строились банные печи в России. Для каменки отбирались круглые серые камни, массой не менее 50 кг. Время от времени их приходилось чистить от сажи.
Существуют и гибридные варианты. Каменка в них разделена на две части. Одна находится на пути выходящих газов, а другая расположена снаружи корпуса.
Хотя это довольно сложная схема, она объединяет достоинства двух основных типов. Гибридные печи:
- Хорошо аккумулируют тепло.
- Позволяют подбрасывать дрова во время мытья.
- Дают сухой пар.
Как сделать металлическую печь периодического нагрева для бани
Здесь мы представим простейший вариант, как сделать печку для бани. Для изготовления такого прибора потребуется электросварка и навыки работы с ней. В качестве материала лучше всего взять листовую сталь марки СТ-3, толщиной не менее 5 мм. Более тонкий метал будет плохо удерживать температуру и быстро прогорит.