Конструкция металлической печи для бани. Особенности
- Конструкция металлической печи для бани. Особенности
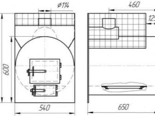
- Чертежи печи для бани из трубы. Схема и размеры
- Лучшая самодельная печь для бани. Кирпичную печку
- Размеры железной печи для бани. Размеры печи для бани из металла
- Металлическая печь своими руками: чертежи. Изготовление агрегата для бани
- Чертеж печи для бани из кирпича. Виды
Конструкция металлической печи для бани. Особенности
Высокая деловая интенсивность утомляет человека. Чтобы восполнить силы необходимо вернуться к природе, её истокам. Теснота ванных комнат, синтетика душевых кабинок не способствуют умиротворению и расслаблению. Есть только одно место, где смывается не только грязь, но и усталость – это загородная банька.
Главный атрибут отечественной бани – это печь индивидуальной конструкции, сделанная своими руками. Обычно это экономичное устройство, обильно выделяющее тепло.
Металлические отопители отвечают этим требованиям и значительно превосходят электрические и газовые теплогенераторы.


Плюсы самодельных металлических печей являются следующими:
- выполняются своими руками, при этом достаточно иметь базовые навыки электросварки;
- являются гораздо дешевле кирпичных аналогов;
- не требуют специальных знаний при выполнении кладки;
- при обкладке кирпичом не уступает кирпичным аналогам по теплообмену;
- малогабаритность, что критично для небольших помещений;
- простота пользования, эксплуатация не требует навыков;
- можно топить любыми видами твёрдого топлива;
- быстрота подготовки – обычно в пределах часа.


К минусам металлических печей относятся следующие:
- ограниченное количество модификаций;
- неизбежные деформации под действием температуры;
- малая теплоёмкость, которая компенсируется обкладкой кирпичом;
- пересушенный воздух;
- при отсутствии калорифера существует возможность теплового удара;
- эффективность только в небольших помещениях.


Железные печи появились на исходе XIX века. Прототипом таких устройств является так называемая буржуйка, оснащённая стальным баком, дверцей и средством дымоотвода. Этот необычный термин появился довольно давно и существует два предположения его возникновения.
Первый вариант заключается в том, это название образовалось из-за естественной «прожорливости» конструкции и малый КПД. Народная фантазия объединила эти качества понятием «буржуй», который «ест» много дров и даёт мало тепла. Только истинная народность может объяснить совершённую полярность второй трактовки. Известно, что эта печка стала популярной во время буржуазной революции, поскольку она была нетребовательная к топливу и работала довольно эффективно.

Стоит подробнее рассмотреть её конструкционные особенности. Сегодня представлена масса аналогичных печей, но их связывает практичность. Это первое, что приходит на ум при знакомстве с процессом их работы, независимо от того, что перед нами – вариант в стиле ретро или современный высокотехнологичный экземпляр, созданный с использованием нанотехнологий и композитов.
Несмотря на то что буржуйка – это самый простой нагревательный прибор, её конструкция чётко соответствует принципам теплообмена.
Сегодня металлическая печь для бани пользуется большой востребованностью благодаря исключительным свойствам и преимуществам. Современные технологии позволяют добиться оптимального теплообмена и длительного горения.


Следует подробно рассмотреть устройство этого нагревательного прибора. Конструкция обеспечивает реализацию двух функций – это разогрев каменки и пространства.
Обычная печь для бани из железа включает несколько функциональных блоков, такие как:
- топка – это зона для сжигания энергоносителя;
- теплообменное устройство обеспечивает обмен теплом с каменкой и нагревает пространство;
- каменка – это специально подобранные камни, которые являются источником тепла в парилке;
- дымоотвод выводит летучие продукты сгорания из помещения;
- бак для нагрева воды обычно изготовлен из нержавеющей стали.


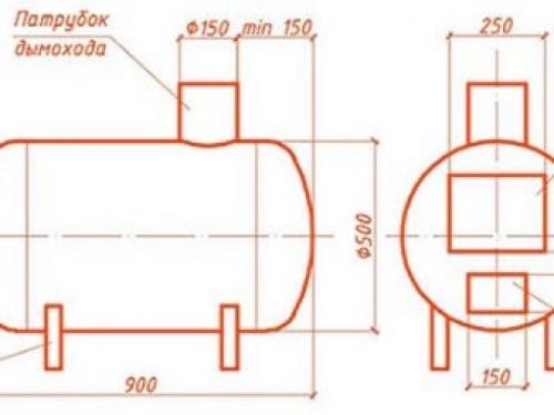
Чертежи печи для бани из трубы. Схема и размеры
При выборе наиболее предпочтительного варианта трубы нужно учитывать внутреннее сечение и толщину стали. Для этого смотрим маркировку: например, указано «400*7», что означает 400 мм – диаметр, 7 мм – толщина стенки профильной трубы. Для банных печей рекомендуется применять трубы диаметром 500-600 мм и толщиной – 7-13 мм, но это не является обязательным, выбор размера металлической трубы зависит от площади парилки и требуемого объема воды.


Самый распространенный размер трубы для бани — 530 мм, такие установки считаются оптимальными для стандартных парилок. Некоторые бани не могут похвастать просторными парными, они используются, скорее, действительно, для мытья, а не для длительного отдыха, и тогда здесь размещают небольшие печки, например, диаметром 426 мм. Если пространство парной позволяет, то подойдет и труба диаметром 630 мм.
Вертикальная
Печи вертикального типа обычно обладают компактными размерами. Колосники и каменка находятся друг под другом, и потому диаметр печи представляет собой диаметр трубы. Изготовление этой разновидности не является сложным.


Горизонтальная
Сборка горизонтального варианта требует более трудоемкой работы. Для парных применяют трубчатые печи, они отличаются высокими показателями прочности и создают условия для эффективной теплоотдачи в воздух банного помещения.
Отличия вертикального и горизонтального типов печей:
- пламя в вертикальной трубе проходит короткий путь до дымохода в верхней части конструкции, раскаленные газы мало касаются боковин корпуса, а расположены большей частью в середине;
- горизонтальная разновидность допускает потоки горячего газа к верхней части установки, после чего газ за счет разрежения воздуха выходит в дымоход;
- конструкция вертикальной печи качественно прогревает стены парильни, но пол и воздух вверху помещения не способна прогреть эффективно;
- горизонтальный вариант прогревает все части пространства, кроме области, прилегающей к полу, и места под топкой.


Перед созданием печи любого типа, но особенно горизонтального, требуется сделать грамотный чертеж будущего устройства. Нарисуйте схему изделия, укажите на ней все размеры, и четко следуйте этой инструкции. Ошибки, допущенные на этапе изготовления печи, могут повлиять не только на работоспособность установки, но и угрожать здоровью отдыхающих. К тому же это значительно упростит процесс монтажа.


Мастеру, который впервые решил заняться данной работой, лучше воспользоваться готовым чертежом или установить типовую модель.
Лучшая самодельная печь для бани. Кирпичную печку
Несмотря на выгоды при монтаже и простоту банной металлической печи, несмотря на быстроту прогрева, практически любой опытный печник посоветует только кирпичную печку . Практика показывает, что только такая печь создаст комфортную атмосферу парилки, дышаться будет свободно, не затруднительно, тепло будет мягким. Создание мягкого тепла – это несомненное преимущество любой банной печи, сложенной из кирпича.
Отдельно можно выделить возможность оригинального дизайна подобных печей – выдумка хорошего печника не знает границ.


Печь бани из кирпича — это классическое печное искусство.
Основательная, зато простая печь классической конструкции должна приблизительно состоять таких элементов:
- топка, выложенная огнеупорами (кирпичом) или вся построенная из них;
- зольник, располагающийся под топочным отделением;
- чугунная или стальная решетка, на которую кладут камни;
- дымоход;
- змеевик;
- дверца.


Масса самодельной кирпичной банной печки весьма солидна, поэтому она устанавливается на отдельное основание. Кирпичи кладут не на раствор, здесь используют только чистую глину и песок , поскольку стойкость раствора к перепадам температур невысока, и это развалит банную печку не дольше, чем за год-два. Чтобы сделать всю конструкцию еще более прочной, фундамент кладут особым способом.
Есть возможность выложить печь с использованием бута или тщательно обожженного кирпича. Толщина стенки в этом случае оказывается в пределах 13–25 см. Используют куски породы массой от 1 до 5 кг.


Важно! Для камней в каменку берут гранитную, бутовую породу, голыши. Кремни использовать нельзя, они от перепада температур трескаются и могут нанести серьёзные травмы разлетающимися осколками.
Самодельная каменка как следует должна накапливать и держать температуру. Для этого рекомендуется добавление чушки из чугуна в пропорции до 20% на 80% каменной породы.


Котел, или водяной бак в банной печи может иметь опору или на стену печки, или на опоры/столбики внутри топки, еще вариант – подвесить его.
Решетку для печки либо можно сделать стальной, из стали значительной толщины, либо приобрести готовую, отлитую из стандартного чугуна.

Размеры железной печи для бани. Размеры печи для бани из металла
Как сделать металлическую печь для бани
Металлических печей для бани в продаже много, но хорошие стоят немалых денег. Если есть достаточный опыт сварки металла, можно изготовить печь самому, по своим размерам. О том, как сделать печь для бани из металла (листового), чертежи и фото — дальше.
Печь из металла для бани и сауны — в чем разница
Между режимами парения в бане и сауне есть существенная разница. В сауне температура воздуха очень высокая — от 85C и намного выше. При такой температуре влажность высокой быть просто не может — сразу получите ожог, а веник осыпется за пять минут. И она действительно небольшая, порядка 5-15%. В русской же парной температура держится в пределах 55-65°C, изредка поднимаясь до 70°C. При таких температурах влажность «нагоняют» большую — 50-60%.
Один из вариантов сварной печи для сауны
Для обеспечения таких разных задач требуются разные подходы для построения печи. В сауну требуется наибольшая площадь соприкосновения корпуса печи с окружающим воздухом и ускорение прохождения воздушных потоков вдоль стенок. Все подчинено задаче как можно скорее нагреть воздух в парилке. Каменка есть, но она небольшая, открытая, находится, как правило, над топкой. Камни в ней прогреваются максимум до 200-250°C, так как много тепла отдают окружающему воздуху. С такой каменки получить можно немного пара. Но в сауне много и не надо — один/два ковшика дадут 15% влажности. Больше просто не вытерпеть.
В русской парной задача другая — не перегреть помещение и добиться большого количества пара. Причем пар должен быть определенной кондиции — он должен состоять из очень мелких капелек. Его еще называют «сухим» и имеет он высокую температуру — порядка 130-150°C. При таком условии после парения в теле ощущается легкость и прилив сил. Такой пар получают только с раскаленных камней, температура которых не менее 500°C. Чтобы достичь ее камни «упаковывают» внутрь топки — в ней размещают ящик — закрытую каменку.
Тут каменка расположена внутри а сверху приделан бак
Как видите, есть солидные конструктивные отличия. Их надо иметь в виду.
Самодельные печи для русской бани
Что еще надо иметь ввиду при конструировании печи для режима русской парной? То, что имея нагретые металлические стенки удержать температуру в пределах требуемых 60-65°C нереально. Обязательно перетопите. При этом от стенок печи идет жесткое ИК излучение и рядом находится тяжело. Проблема решается двумя способами:
- Футеровкой топки. Внутри топка обкладывается жаростойким кирпичом (шамотным на шамотный раствор). Положить его можно на ребро, тогда толщина футеровки 6 см, а можно найти узкий шамот с ребром 3 см. В любом случае металлические стенки греются незначительно, основная энергия направлена на обогрев каменки. В этом случае надо сразу проектировать топку увеличенных размеров, учитывая, что значительный объем ее занят футеровкой. Минус этого варианта — очень высокая температура дыма, а следовательно — высокая пожарная опасность. Выход — отобрать у дыма большую часть энергии. Самый простой вариант — каменка или бак для воды на трубе. Вариант сложнее — отопительный щиток, в который подается дым непосредственно из печи, а остыв в лабиринте щитка, на выходе он имеет не более 80-120°C.
Футеровка — обложить топку изнутри жаропрочным кирпичом
- Кирпичный экран или саркофаг вокруг металлической печи. Экран складывают из обычного керамического кирпича, в стенке делают окошки или устанавливают дверки чтобы была возможность регулировать степень нагрева воздуха в помещении. Как видим, для поддержания температуры в заданном режиме этот вариант более удобен. Но с практической точки зрения он хуже. Дело в том, что за экраном стенки топки перегреваются (конвекции почти нет и они не остывают). В результате, через некоторое время металл перегорает. Выход — ставить жаропрочную сталь или конструкционную, но большой толщины. В данном случае, чем больше будет толщина металла, тем дольше будет служить печь. По статистике самая проблемная зона — верхняя и задняя поверхность топки. Вот тут постарайтесь поставить самый толстый металл, который найдете.
Металлическая печь своими руками: чертежи. Изготовление агрегата для бани
Одним из лучших вариантов отопительного устройства для бани является металлическая печь из листовой стали, обложенная кирпичом. Такая самодельная печь для бани не мобильна, но пожаробезопасна, а значит, ее можно устанавливать в жилом доме и даже в деревянной банной постройке.
Для ее сооружения из инструментов понадобятся:
- сварочное оборудование;
- болгарка;
- диоды 3-4 миллиметра.
Также нужно иметь листы железа толщиной 2 –3 миллиметра, и арматуру 8 –10 миллиметров.
Важным моментом является то, что при обустройстве такой печи необходимо правильно подобрать для дымохода сечение, поскольку от этого зависит сила тяги, на которую также влияют погодные условия: чем теплее и влажнее воздух, тем она слабее.
В недостаточно широком дымоходе газы и воздух начнут смешиваться, не успев выйти наружу. Это создает дымовую пробку. Если диаметр трубы слишком большой, тогда в ней газы будут двигаться чересчур медленно, а поверхность внутренний стенок быстро засорится.
Банные печи из железа своими руками строят так:
- В первую очередь обустраивают фундамент. Для него строят деревянную опалубку высотой 20 сантиметров так, чтобы образовался квадрат размером 1х1 метр.
- Арматуру монтируют в один слой, делая сетку из прутьев с ячейками величиной 20х20 сантиметров. Надо, чтобы арматура не касалась земли, поэтому ее опирают на заранее установленные колышки и связывают на весу.
- Подготавливают цементно-песчаный раствор в пропорции 1:3. Для него берут 1 часть цемента не ниже марки М400 и 3 части мелкого речного песка. С целью придания прочности в смесь добавляют часть щебенки.
- Раствор выливают в опалубку, накрывают пленкой из полиэтилена и оставляют сохнуть на 4 недели. Один раз в день бетон нужно сбрызгивать холодной водой и вновь накрывать, иначе он начнет покрываться трещинами.
- Далее надо взять задний обод для колес и заварить на нем все отверстия, оставив только центральное.
- Со второго обода срезают выпуклую верхушку, вставляют в него первый и сваривают. Главное, это создать герметичное соединение, ведь внутри будет горячая жидкость.
- На внутренней части второго обода на равном удалении один от другого с трех сторон наваривают арматуру. Нужно, чтобы она упиралась в трубу для придания конструкции жесткости.
- Внизу первого обода создают круглое 25-миллиметровое отверстие и к нему приваривают трубу соответствующего сечения. В нее вкручивают кран, чтобы сливать воду.
- Далее делают точные копии двух ободов. Копию второго из них насаживают на трубу, переворачивают копию первого обода и приваривают его к концу трубы. Сверху приделывают второй экземпляр второго обода и для жесткости усиливают арматурой.
- Когда раствор для фундамента застынет, опалубку снимают и выкладывают кирпич, используя смесь на основе глины.
- Месторасположение печи для защиты от возгорания полностью обкладывают кирпичом.
- Основание делают кирпичным, а со второго ряда начинают выкладывать зольник с поддувалом. Посредством него удаляют золу и тем самым обеспечивают поступление воздуха внутрь, который помогает появлению хорошей тяги. Длина зольной камеры должна быть меньше, чем у топки.
- Устанавливают дверцу поддувала, обкладывают кирпичом и укладывают еще один ряд. На шахту зольника помещают колосниковую решетку.
- После колосника выкладывают два ряда кирпичей, оставляя место для дверцы топки. Поверх создают еще два ряда.
- Кладке дают высохнуть в течение 2-х недель, обеспечив циркуляцию воздуха. Затем печку нужно протопить щепками в течение 1,5 — 2 часов.
- На кирпичную конструкцию устанавливают готовую трубу. На ней расположена каменка и емкость для горячей воды.
- Вес и размеры печи довольно большие, поэтому ее лучше разделить на составляющие части и собрать внутри бани на месте.
- Верх дымохода укрепляют прутьями арматуры, приварив один ее конец к трубе, а второй уперев в стену. Для крепления к стене задействуют металлическую пластину или уголок из стали.
Чертеж печи для бани из кирпича. Виды
Печь из кирпича для бани можно разделить на две категории:
- постоянного действия;
- периодического действия.


В первом варианте место для камней будет на настиле из металла или в ящике. В этом случае нагревание каменной засыпки происходит не огнем, а тепло передается от одного материала к другому. А вот в другом случае огонь будет проходить непосредственно через камни.


Выбирая печь для бани, многие не совсем понимают разницу между русской и финской баней.
Для русской бани оптимальной будет температура 60 градусов при влажности 50%. Больше подойдет печка из кирпича с закрытой каменкой. В финской бане температура достигает 90 градусов при влажности 5-15%. Чем выше влажность, тем ниже будет температура; при ее увеличении пара будет значительно меньше.
Важно понимать, что отопительно-варочная кирпичная печь не сможет использоваться для бани . Конструкция из кирпича для бани очень сильно отличается от бытовой домашней топки. Для бытовой печи главной задачей является нагревание самой конструкции и использование ее для получения и поддержания тепла.


Для банной печи основной задачей становится максимальное нагревание и использование каменной засыпки для поддерживания необходимой температуры в помещении и для создания пара.
Разделение печей на виды обуславливается и выбором необходимого для нее топлива. Можно остановить свой выбор на агрегате, который работает от электросети, на дровах или на газу.
У каждого агрегата есть как преимущества, так и недостатки. Дровяные печки считаются недорогими и надежными. Агрегат, который работает только на дровах, больше подойдет для местностей, где возможны перебои с электричеством или газом . При установлении в бане конструкции, которая работает только на дровах, нужно понимать, что разогреть парилку быстро будет сложно. К тому же следует поддерживать необходимую температуру самостоятельно, так же как и удалять пепел из печки. Кирпичная печь позволяет использовать различное топливо.


Даже самая маленькая простая печка для русской бани не должна строиться без подробной схемы. Перед началом работы следует написать подробный план, начертить чертежи, указать нужные размеры.
При изучении всех вопросов важно понимать, что обустройство печи для бани невозможно без соблюдения правил по пожарной безопасности.
Изделие из кирпича стоит возводить возле стены, противоположной полочкам в парилк е. При создании проекта нужно учитывать, что . При выборе специальной защиты, например, из асбестового картона, расстояние можно уменьшить до 20 см.